No board interview! Eastmore Condop-Spacious Studio-76st & 2nd Avenue


Property

Website:https://www.nestseekers.com/2402035
Address:
240 e 76st apt 2W Apt: 2W
New York, NY 10028
Cross street:3rd Avenue
Floor:2nd
Type:Mid-rise
Era:Post-war
Floors:17
Ownership: Condop
Rooms: 1
Bedrooms: Studio
Bathrooms: 1

Financials

Price:$420,000
Maintenance:$1,024
Common charges:$1,016
Financing Allowed:90%
Minimum down:$42,000

Description

No board interview required, this is a Condop!

Parents can co-purchase apartments for their children!!

The Eastmore is the ‘Most well known Condop’ in the heart of the upper Upper East side. Located on 76th street and 2nd Avenue, it is a 24-hour full service building with a live-in super. A well trained staff are on hand all the time to assist residents residing on the premises.

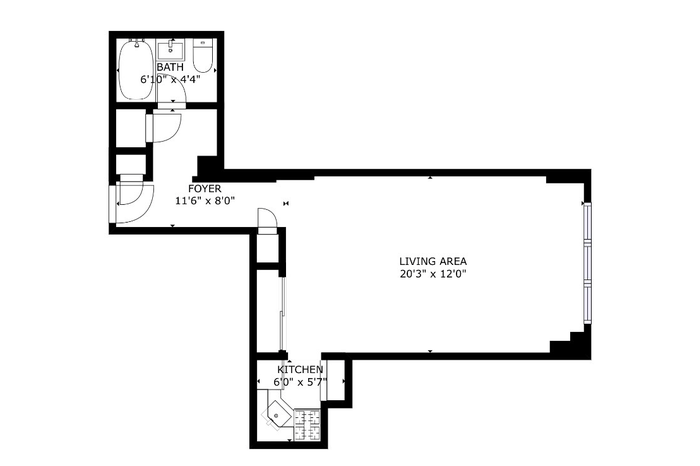
There is now a new one studio apartment that has just been placed on the market. It features a long gallery hallway along with lots of closet and storage space. This spacious unit has lots of sunlight due to its south west facing view.

The kitchen is petite, but has all the amenities one expects. There are beautiful hardwood floors throughout the apt. Close to the subway, it is located in a great place in the East Side.

No board interview requirement and the building does not have a flip tax. Subletting and pied-a- terre are permitted. Parents can purchase apartments for their children. Not an investment building.
Sublet after one year of living in the apt in two year increments.

Amenities

  • Abundant Closets
  • A/C units
  • Full Time Doorman
  • Roof Deck
  • Doorman

Exposures

  • South
  • West

Contact

!TEMPLATE!group.thumb!VAR!
Phone: 9179681365
!TEMPLATE!agent.thumb!VAR!!TEMPLATE!agent.summary!VAR!
505 Park Ave, New York, NY 10022

240 E 76th St, New York, NY 10021, USA