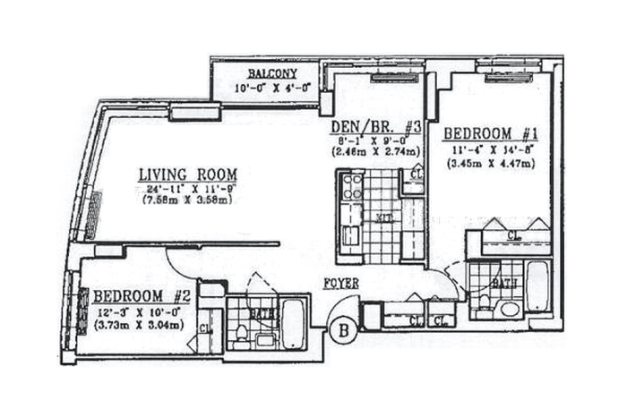
Panoramic city and water views from this stunning 2 bed/2 bath with a balcony
| Website: | https://www.nestseekers.com/437393 |
|---|---|
| Address: | 4-74 48th Avenue Apt: B Queens, NY 11109 |
| Cross street: | Center Boulevard/5th Street |
| Floor: | 34th |
| Ownership: | Condop |
|---|---|
| Type: | High-Rise |
| Rooms: | 4 |
| Bedrooms: | 2 BR |
| Bathrooms: | 2 |
| Pets: | Pets Allowed |
| Area: | 1050 sq ft |
Financials
Description
APARTMENT
Rare chance to own an elegant and gracious newly renovated 2 bed/2 bath with stunning eye-level city and water views and your own private balcony. This gorgeous sun-filled home boasts a gracious living room with west, north and southern exposure to enjoy the most amazing panoramic views. Open chef's kitchen with a corner dining area, high-end appliances and all new spacious custom-made cabinets. The large master bed faces west and has an enormous brand-new en-suite bath with top-of-the-line stainless steel fixtures, Italian marble. Extra large closets. There's a second bedroom that also faces west, a full second bath and a roomy coat closet. All new hard-wood floors throughout.
BUILDING
The Citilights residence is fully equipped with all the modern amenities such as; 24-hour doorman/concierge service, Fitness center, on-site spa/sauna, tennis courts, outdoor terrace, indoor garage and a huge laundry room.
NEIGHORHOOD
Come be a part of this amazing neighborhood pulsating with great energy! It's proximity to Manhattan is a skip and a hop, 5 minutes into Grand Central Station, 4 blocks away from the 7 train. The Gantry State Park is a few steps away, walking distance to great restaurants and shops.
.
- Bella Via
- Chocolate Factory Theater
- Casa Enrique
- Laughing Devil Comedy Club
- Riverview Restaurant & Lounge
- Food Cellar & Co.
Amenities
- Balcony
- Central Air Conditioning
- Fitness Facility
- Hardwood Floors
- Park View
- Sauna
- Tennis court
- Water front
- Waterfront Property
- Water view
| !TEMPLATE!agent.thumb!VAR! | !TEMPLATE!agent.summary!VAR! |
415 Madison Avenue New York, NY 10017 Phone: +1 212-252-8772 Fax: +1 212-252-9347 |









.jpg)

