** BRING YOUR ARCHITECT **MOTIVATED SELLER *****PENTHOUSE TRIPLEX with Unobstructed City views on Fifth avenue**
| Website: | https://www.nestseekers.com/469686 |
|---|---|
| Address: | 445 5th Avenue PH-33/B Apt: PH-B New York, NY 10016 |
| Cross street: | East 39th &40th Street |
| Floor: | 33rd |
| Type: | High-Rise |
| Era: | Post-war |
| Floors: | 33 |
| Ownership: | Condo |
|---|---|
| Bedrooms: | 2 BR |
| Bathrooms: | 3 |
| Pets: | Pets Allowed |
| Area: | 2700 sq ft |
Financials
Price:$2,495,000
Common charges:$4,627
Financing Allowed:90%
Minimum down:$249,500
Description
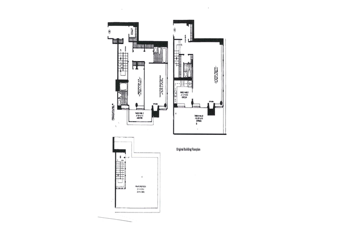
** BRING YOUR ARCHITECT **MOTIVATED SELLER *** Incredible unit Can be converted to 2-3 bedrooms 2.5 baths Condo in full time doorman Building on Fifth 39 Street. The 34 story Condo has only 175 Apt. In need of some repairs and TLC, this home has a lot of upgraded moldings, windows and features. Priced for its condition, this 2700 square foot home is a great value and will clean up beautifully. Gorgeous views of the city & amp skyline from every room! Originally two bedroom, three full bathroom spacious triplex with amazing 1100 SF of outdoor space with a private roof top deck on third level. Presently apartment is converted to one bedroom and two luxury bathrooms residence with a great potential to change it to its originally layout. Oversized windows, parquet floor, fully fitted kitchen, glass staircase, two working fireplaces. Penthouse is located in the full service Fifth Avenue Tower Condominium with a 24HR doorman/concierge, a unique 2 floor roof top garden with chairs and shower during summer season, a new state-of-the art gym, playroom, central laundry room, private storage and bike. room in the building. The most Prime location in Murray Hill, steps to Bryant Park. Close to Grand Central Station and other transportation, Fashion District, Shopping, and Theaters. This unit is not to be missed! Please call for private showing today-Easy showing!!! |
Amenities
- Abundant Closets
- Balcony
- Bar
- Central Air Conditioning
- corner-apartment
- Dishwasher
- Dish Washer
- Elevator
- Fireplace
- Fitness Facility
- Garden
- Hardwood Floors
- high-ceiling
- Jacuzzi
- Live Work
- Multi-Level
- Parquet Floors
- Patio
- Skyline View
- Terrace
- Walk-in Closet
- Concierge
- Doorman
- Elevator
- roof-deck
| !TEMPLATE!agent.thumb!VAR! | !TEMPLATE!agent.summary!VAR! |
415 Madison Avenue New York, NY 10017 Phone: +1 212-252-8772 Fax: +1 212-252-9347 |



