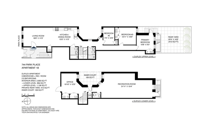
Measuring 2000 sq. ft, Apartment 1B is a duplex with 3 bedrooms, 2.
| Website: | https://www.nestseekers.com/4925378 |
|---|---|
| Address: | 744 Park Place Apt: 1B Brooklyn, NY 11216 |
| Cross street: | Bedford Avenue |
| Type: | Low-rise |
| Era: | Post-war |
| Floors: | 4 |
| Ownership: | Condo |
|---|---|
| Rooms: | 5 |
| Bedrooms: | 3 BR |
| Bathrooms: | 2½ |
| Pets: | No Pets Allowed |
Financials
Price:$1,895,000
Common charges:$467
Real estate tax:$353
Financing Allowed:90%
Minimum down:$189,500
Description
Measuring 2000 sq. ft, Apartment 1B is a duplex with 3 bedrooms, 2.5 baths, a backyard, an office, and a huge rec room. On the main floor of this stylish apartment, an open-plan living and dining area flows seamlessly into a well-appointed chef’s kitchen. This is not the tiny kitchen typical of many condos. This one boasts ample Cambria quartz countertops, abundant cabinetry for storage, and top-of-the-line Bertazzoni appliances, including a fully integrated fridge, induction stove, and a properly vented range hood. The generously-sized dining area has room for a large dining table. * Photos are representative of finishes only. Actual layout may vary.*
There are three nicely sized bedrooms and two gorgeous full baths, one with a walk-in shower, one with a deep soaking tub. Spa-like finishes include Italian marble floor and wall tiles and chic terrazzo-like flooring. The gorgeous, private backyard can be accessed from both the main floor and lower level. It is your oasis for alfresco dining and relaxing.
A chic modern staircase leads down to an office, a 30-foot-long rec room, a half bath, a washer/dryer, and a 106 sq. ft private outdoor courtyard. The interior space is far brighter than you would expect due to multiple large windows. Additional highlights of the apartment include multi-zoned heating and cooling and designer lighting, all complemented by elegant brushed white oak engineered flooring.
The combined common charges and taxes are LOW! Only $820/month. That’s less than half the cost of most similarly-sized units.
744 Park Place is an 8-unit boutique condo building featuring 3- and 4-bedroom residences with extremely low monthly charges. With its elegant brick façade accented by carved stone details, the building has been thoroughly and luxuriously updated in a modern style to create the chic and comfortable living experience you’ve been searching for.
Located in vibrant Crown Heights, this condo places you just a block away from the various restaurants and shops on Franklin Avenue. It’s close to the 2/3/4/5 and S trains and convenient to the Brooklyn Botanic Garden, the Public Library, Grand Army Plaza Greenmarket, and Prospect Park.
The complete offering terms are in an offering plan available from the sponsor 744 Park LLC. File CD230318
Amenities
- Washer / Dryer
- Air Conditioning
- New Development
- Voice Intercom
- Walk-up
1107 Bedford Avenue Phone: +1 718-302-0900 Fax: +1 212-252-9347 | |
| Listing Courtesy of Compass | |