Springwater L9X 1K3
Canada

Property

Ownership: For Sale
Type: Unknown
Bathrooms: 4

Financials

Price:C3,950,000
($2,855,900)
(€2,436,900)
Annual Taxes:C18,181.39
505 Park Ave, New York, NY 10022

OWNER USER OPPORTUNITY in Snow Valley Minesing.

Description

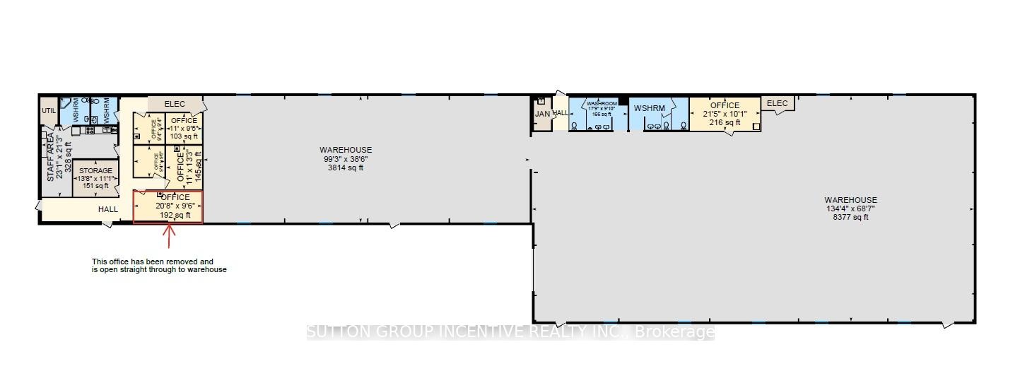
OWNER / USER OPPORTUNITY in Snow Valley / Minesing. This stand-alone 15,450 SF building (approx. 12,406 SF warehouse + 3,004 SF office) on just over 1 acre. Warehouse has two large bay areas - 99'3"x38'6" and 134'4"x68'7", shipping office, multi-stall washrooms, 3 electrical panels (600/400/200), 10 ceiling fans, natural gas radiant heating, all new LED lighting, 2 drive in doors, 1 dock level door (all 12'x12') and 19.5' clear, 22.1' to pitch. Newly finished office area with 4 private offices, 2 washrooms, storage room and kitchen / lunchroom. Current Tenant set to vacant on April 30th, 2026 -- allowing for owner/operator use or a new industrial lease for your preferred tenant. March 2021 Phase 1 ESA available upon execution of CA and accepted APS. M1-2 zoning allows for most industrial uses including Manufacturing, Assembly, R&D, Warehousing, Storage and other accessory uses.

Amenities

  • Greenbelt/Conservation
  • Skiing

All information furnished regarding property for sale, rental or financing is from sources deemed reliable, but no warranty or representation is made as to the accuracy thereof and same is submitted subject to errors, omissions, change of price, rental or other conditions, prior sale, lease or financing or withdrawal without notice. International currency conversions where shown are estimates based on recent exchange rates and are not official asking prices.

All dimensions are approximate. For exact dimensions, you must hire your own architect or engineer.