Building
Type: | Townhouse |
---|---|
Era: | Post-war |
Floors: | 4 |
Property
Ownership: | Multi-Family |
---|---|
Rooms: | 16 |
Bedrooms: | 2 BR |
Bathrooms: | 2 |
Pets: | Pets Unknown |
FinancialsPrice:$3,400,000
Price:$3,400,000
Listing Courtesy of Corcoran Group
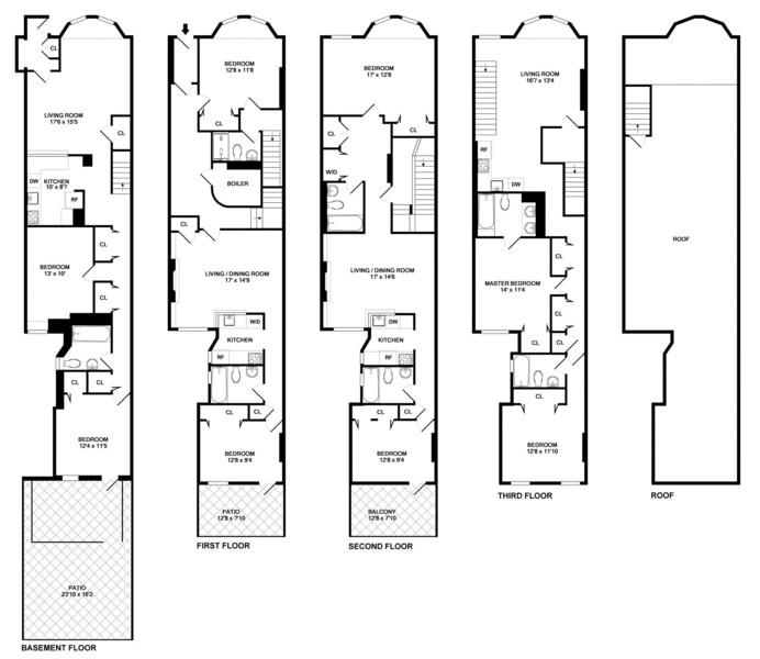
Description4 Unit Townhouse in historic Hamilton Heights is one of a row of ornate townhouses on this quiet residential street just opposite the north end of the beautiful Henry B Post designed CCNY campus. The 3888 square foot building is 18' Wide x 72' long with over 1400 square feet of additional FAR available to add on and sits on a 100' deep lot. The building is distinguished by its front projecting curved bays that help add space and light to the south facing front rooms.
The four apartments all currently rented are as follows:
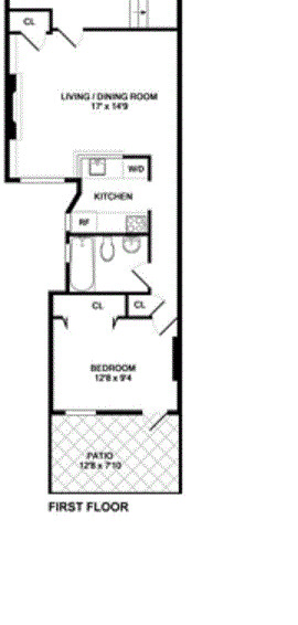
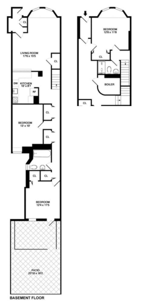
- Unit 1 is a 3 bedroom/ 2 bath duplex with a two level private patio that is floor through on the lower level;
- Unit 2 is a 1 bedroom/ 1 bath rear facing apartment with its own rear facing balcony;
- Unit 3 is a 2 bedroom/ 2 bath floor through apartment with its own rear facing balcony;
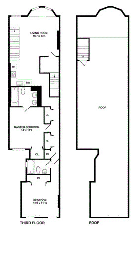
- Unit 4 is a 2 bedroom/ 2 bath floor through apartment with private roof access that has recently been decked.
All of the apartments feature hardwood floors, large bedrooms, newly installed central air conditioning, updated kitchens with stainless steel appliances, and stone countertops, modern renovated bathrooms, washer/ dryers, and generous closet space and all have outdoor space. Extra storage has been built into many of the rooms above the closets taking advantage of the high ceilings on the upper floors.
A new Mini-split air conditioner heating system has been installed in each of the apartments with all new electrical wiring, copper pipes and compressors for each of the units. In addition, recent upgrades include a new bathroom vanity and vanity and a new microwave in apartment 1; new ceiling fans in apartment 2; new stove and dishwasher in apartment 3; and a bathroom vanity and sink in Apartment 4.
The house is across the street from CCNY and an easy commute to the main Columbia Campus and its new graduate center campus just west of Broadway at 125th Street. Commuting elsewhere is easy with the 145th Street A/B/C/D and the 1 train at 137th Street and bus lines on Amsterdam Avenue, Broadway and 145th Street. St. Nicholas Park and Hamilton Grange are just a block to the east and Riverbank State Park with its athletic fields and spectacular views of the Hudson is just a few blocks west.
AmenitiesGarden; Roof Deck;- Air Conditioning
- Garden
- Roof Deck
- Voice Intercom
Neighborhood
4 Unit Townhouse in historic Hamilton Heights is one of a row of ornate townhouses on this quiet residential street just opposite the north end of the beautiful Henry B Post designed CCNY campus. The 3888 square foot building is 18' Wide x 72' long with over 1400 square feet of additional FAR available to add on and sits on a 100' deep lot. The building is distinguished by its front projecting curved bays that help add space and light to the south facing front rooms.
The four apartments all currently rented are as follows:
A new Mini-split air conditioner heating system has been installed in each of the apartments with all new electrical wiring, copper pipes and compressors for each of the units. In addition, recent upgrades include a new bathroom vanity and vanity and a new microwave in apartment 1; new ceiling fans in apartment 2; new stove and dishwasher in apartment 3; and a bathroom vanity and sink in Apartment 4.
The house is across the street from CCNY and an easy commute to the main Columbia Campus and its new graduate center campus just west of Broadway at 125th Street. Commuting elsewhere is easy with the 145th Street A/B/C/D and the 1 train at 137th Street and bus lines on Amsterdam Avenue, Broadway and 145th Street. St. Nicholas Park and Hamilton Grange are just a block to the east and Riverbank State Park with its athletic fields and spectacular views of the Hudson is just a few blocks west.
The four apartments all currently rented are as follows:
- Unit 1 is a 3 bedroom/ 2 bath duplex with a two level private patio that is floor through on the lower level;
- Unit 2 is a 1 bedroom/ 1 bath rear facing apartment with its own rear facing balcony;
- Unit 3 is a 2 bedroom/ 2 bath floor through apartment with its own rear facing balcony;
- Unit 4 is a 2 bedroom/ 2 bath floor through apartment with private roof access that has recently been decked.
A new Mini-split air conditioner heating system has been installed in each of the apartments with all new electrical wiring, copper pipes and compressors for each of the units. In addition, recent upgrades include a new bathroom vanity and vanity and a new microwave in apartment 1; new ceiling fans in apartment 2; new stove and dishwasher in apartment 3; and a bathroom vanity and sink in Apartment 4.
The house is across the street from CCNY and an easy commute to the main Columbia Campus and its new graduate center campus just west of Broadway at 125th Street. Commuting elsewhere is easy with the 145th Street A/B/C/D and the 1 train at 137th Street and bus lines on Amsterdam Avenue, Broadway and 145th Street. St. Nicholas Park and Hamilton Grange are just a block to the east and Riverbank State Park with its athletic fields and spectacular views of the Hudson is just a few blocks west.
Garden; Roof Deck;
- Air Conditioning
- Garden
- Roof Deck
- Voice Intercom
Neighborhood
4 Unit Townhouse in historic Hamilton Heights is one of a row of ornate townhouses on this quiet residential street just opposite the north end of the beautiful Henry B ...
Description4 Unit Townhouse in historic Hamilton Heights is one of a row of ornate townhouses on this quiet residential street just opposite the north end of the beautiful Henry B Post designed CCNY campus. The 3888 square foot building is 18' Wide x 72' long with over 1400 square feet of additional FAR available to add on and sits on a 100' deep lot. The building is distinguished by its front projecting curved bays that help add space and light to the south facing front rooms.
The four apartments all currently rented are as follows:
- Unit 1 is a 3 bedroom/ 2 bath duplex with a two level private patio that is floor through on the lower level;
- Unit 2 is a 1 bedroom/ 1 bath rear facing apartment with its own rear facing balcony;
- Unit 3 is a 2 bedroom/ 2 bath floor through apartment with its own rear facing balcony;
- Unit 4 is a 2 bedroom/ 2 bath floor through apartment with private roof access that has recently been decked.
All of the apartments feature hardwood floors, large bedrooms, newly installed central air conditioning, updated kitchens with stainless steel appliances, and stone countertops, modern renovated bathrooms, washer/ dryers, and generous closet space and all have outdoor space. Extra storage has been built into many of the rooms above the closets taking advantage of the high ceilings on the upper floors.
A new Mini-split air conditioner heating system has been installed in each of the apartments with all new electrical wiring, copper pipes and compressors for each of the units. In addition, recent upgrades include a new bathroom vanity and vanity and a new microwave in apartment 1; new ceiling fans in apartment 2; new stove and dishwasher in apartment 3; and a bathroom vanity and sink in Apartment 4.
The house is across the street from CCNY and an easy commute to the main Columbia Campus and its new graduate center campus just west of Broadway at 125th Street. Commuting elsewhere is easy with the 145th Street A/B/C/D and the 1 train at 137th Street and bus lines on Amsterdam Avenue, Broadway and 145th Street. St. Nicholas Park and Hamilton Grange are just a block to the east and Riverbank State Park with its athletic fields and spectacular views of the Hudson is just a few blocks west.
AmenitiesGarden; Roof Deck;- Air Conditioning
- Garden
- Roof Deck
- Voice Intercom
NeighborhoodMore listings:
4 Unit Townhouse in historic Hamilton Heights is one of a row of ornate townhouses on this quiet residential street just opposite the north end of the beautiful Henry B Post designed CCNY campus. The 3888 square foot building is 18' Wide x 72' long with over 1400 square feet of additional FAR available to add on and sits on a 100' deep lot. The building is distinguished by its front projecting curved bays that help add space and light to the south facing front rooms.
The four apartments all currently rented are as follows:
A new Mini-split air conditioner heating system has been installed in each of the apartments with all new electrical wiring, copper pipes and compressors for each of the units. In addition, recent upgrades include a new bathroom vanity and vanity and a new microwave in apartment 1; new ceiling fans in apartment 2; new stove and dishwasher in apartment 3; and a bathroom vanity and sink in Apartment 4.
The house is across the street from CCNY and an easy commute to the main Columbia Campus and its new graduate center campus just west of Broadway at 125th Street. Commuting elsewhere is easy with the 145th Street A/B/C/D and the 1 train at 137th Street and bus lines on Amsterdam Avenue, Broadway and 145th Street. St. Nicholas Park and Hamilton Grange are just a block to the east and Riverbank State Park with its athletic fields and spectacular views of the Hudson is just a few blocks west.
The four apartments all currently rented are as follows:
- Unit 1 is a 3 bedroom/ 2 bath duplex with a two level private patio that is floor through on the lower level;
- Unit 2 is a 1 bedroom/ 1 bath rear facing apartment with its own rear facing balcony;
- Unit 3 is a 2 bedroom/ 2 bath floor through apartment with its own rear facing balcony;
- Unit 4 is a 2 bedroom/ 2 bath floor through apartment with private roof access that has recently been decked.
A new Mini-split air conditioner heating system has been installed in each of the apartments with all new electrical wiring, copper pipes and compressors for each of the units. In addition, recent upgrades include a new bathroom vanity and vanity and a new microwave in apartment 1; new ceiling fans in apartment 2; new stove and dishwasher in apartment 3; and a bathroom vanity and sink in Apartment 4.
The house is across the street from CCNY and an easy commute to the main Columbia Campus and its new graduate center campus just west of Broadway at 125th Street. Commuting elsewhere is easy with the 145th Street A/B/C/D and the 1 train at 137th Street and bus lines on Amsterdam Avenue, Broadway and 145th Street. St. Nicholas Park and Hamilton Grange are just a block to the east and Riverbank State Park with its athletic fields and spectacular views of the Hudson is just a few blocks west.
Garden; Roof Deck;
- Air Conditioning
- Garden
- Roof Deck
- Voice Intercom
NeighborhoodMore listings:

RLS Data display by Nest Seekers LLC.
All information furnished regarding property for sale, rental or financing is from sources deemed reliable, but no warranty or representation is made as to the accuracy thereof and same is submitted subject to errors, omissions, change of price, rental or other conditions, prior sale, lease or financing or withdrawal without notice. International currency conversions where shown are estimates based on recent exchange rates and are not official asking prices.
All dimensions are approximate. For exact dimensions, you must hire your own architect or engineer.