A Landmark Residence with Historic Grandeur and Modern Refinement.


Property

Website:https://www.nestseekers.com/5038049
Address:
51 East 67th Street
New York, NY 10065
Cross street:Madison Avenue
Type:Townhouse
Era:Post-war
Floors:5
Ownership: income-property
Rooms: 12
Bedrooms: 7 BR
Bathrooms:

Financials

Price:$16,000,000
Real estate tax:$66,374

Description

A Landmark Residence with Historic Grandeur and Modern Refinement.

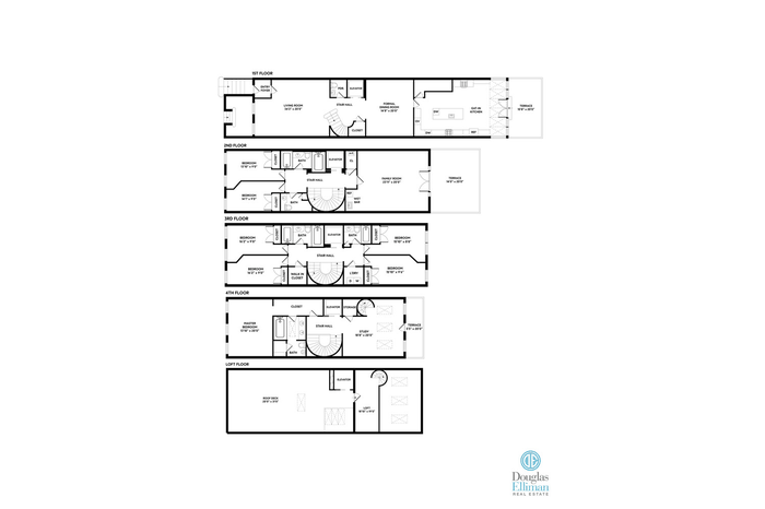
Built in 1879, this 20-foot-wide Neo-Grec masterpiece stands as a striking example of period architecture, distinguished by its commanding facade and its enviable placement on East 67th Street between Madison and Park Avenues-one of the Upper East Side's most sought-after blocks. Just a short stroll from Central Park, the home offers an extraordinary combination of historic elegance and modern comfort.

Spanning five stories plus a dramatic mezzanine, the residence encompasses approximately 8,270 square feet of interior living space, thoughtfully enhanced by 1,560 square feet of outdoor retreats spread across four private terraces. An additional 2,000-square-foot excavated lower level, complete with elevated ceiling heights, adds impressive versatility for recreation, wellness, or wine storage.

Currently configured as a single-family residence with a ground-floor professional suite, the home offers exceptional adaptability. The professional space can remain separate, continue as a revenue-producing element, or be seamlessly integrated into the main residence to expand the home's living quarters.

The interiors are designed to balance grandeur and livability. The parlor floor evokes a loft-like openness, featuring expansive living and dining areas anchored by a showpiece chef's kitchen with direct access to a large private terrace-ideal for entertaining on an intimate or grand scale. The seven-bedroom layout is crowned by a top-floor primary suite, boasting a marble-clad bathroom, abundant storage, and an adjoining double-height library/study that opens to a private terrace with roof access.

Additional features underscore the property's caliber: a sweeping central staircase, a newly installed commercial-grade elevator servicing every level, radiant heated floors, a soundproofed media room, advanced mechanical systems, and a comprehensive security system.

With its rare scale, impeccable design, and prized location, 51 East 67th Street offers an opportunity to own one of the Upper East Side's great private houses-surrounded by world-class shopping, fine dining, museums, and cultural landmarks.

Amenities

Alarm System; Roof Deck;
  • Elevator
  • Roof Deck
  • Voice Intercom

Contact

594 Broadway, New York, NY 10012, USA
Listing Courtesy of Douglas Elliman Real Estate

51 East 67th Street New York NY 10065 USA