2731 NE 5th Street
Pompano Beach, FL 33062

Property

Ownership: Single Family
Type: Single Family
Bedrooms: 3 BR
Bathrooms: 3
Pets: Pets Case By Case
Area: 3232 sq ft

Financials

Price:$1,949,900
Deborah L. Ginsburg
150 Worth Ave, Palm Beach, FL 33480
Listing Courtesy of Adache Real Estate, LLC

Updated deepwater home 80FT on protected canal 70 FT composite dock and 50 AMP power wide canal !

Description

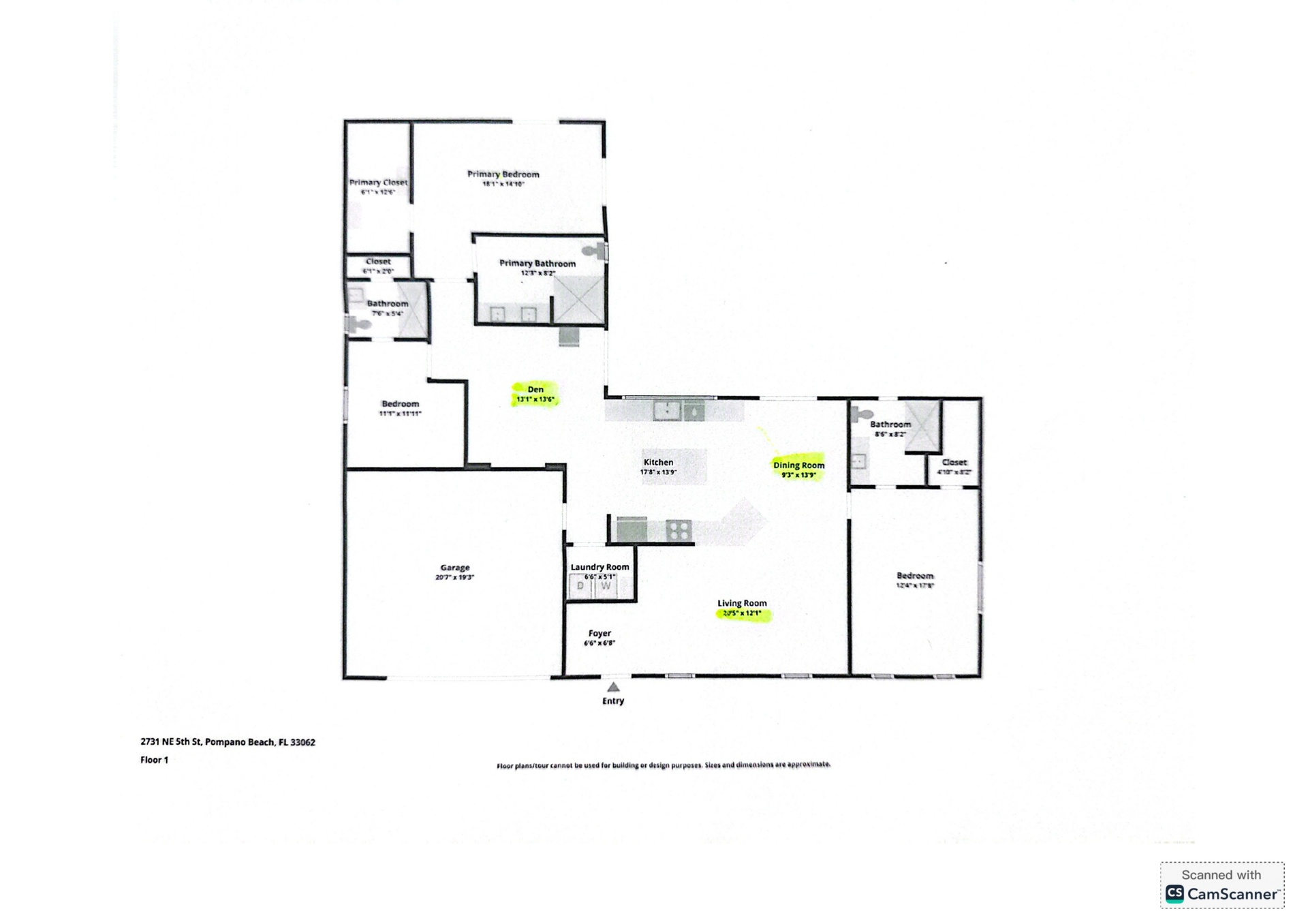
Updated deepwater home 80FT on protected canal--70 FT composite dock and 50 AMP power-wide canal! Open-concept split-bedroom layout offers additional den & formal dining(see floor plan) chef's kitchen w/custom cabinetry, gas cooktop, luxury appliances, island with wine chiller--perfect for entertaining. Elegant travertine floors, impact windows and doors, light & bright space with a coastal-modern vibe. Full sun exposed heated pool set back with lots of green space. The primary suite is spacious with custom closet & impact doors to the pool & water. 16 year old tile roof, 2020 HVAC, upgraded electric, tankless gas water heater, Nest & cameras--Many upgrades in 2021. Walk or golf cart to the beach, dining, golfing, & all entertainment! ''Seller will include golf cart w/ full price offer!''

Unbranded Virtual Tour: https://www.zillow.com/view-imx/1238a3a2-7eef-43d2-a462-485854dd1cdb?setAttribution=mls&wl=true&initialViewType=pano&utm_source=dashboard

Amenities

  • Airpark
  • Auto Garage Open
  • Basketball
  • Bike - Jog
  • Blinds
  • Boating
  • Cafe/Restaurant
  • Canal
  • Canal Width 81 - 120
  • ceiling fan
  • Central
  • Cooktop
  • Courtesy Bus
  • Den/Office
  • Dishwasher
  • Disposal
  • Dog Park
  • Drapes
  • Dryer
  • Electric
  • Family
  • Gas Natural
  • Golf Course
  • Heated
  • Hurricane Windows
  • Impact Glass
  • Interior Canal
  • Intracoastal
  • Laundry-Inside
  • Microwave
  • No Fixed Bridges
  • Park
  • Pickleball
  • Picnic Area
  • Playground
  • Pool
  • Pool Bath
  • Public Sewer
  • Public Water
  • Range - Electric
  • Range - Gas
  • Refrigerator
  • Security Light
  • Smoke Detector
  • Street Lights
  • Tennis
  • TV Camera
  • Washer

All information furnished regarding property for sale, rental or financing is from sources deemed reliable, but no warranty or representation is made as to the accuracy thereof and same is submitted subject to errors, omissions, change of price, rental or other conditions, prior sale, lease or financing or withdrawal without notice. International currency conversions where shown are estimates based on recent exchange rates and are not official asking prices.

All dimensions are approximate. For exact dimensions, you must hire your own architect or engineer.