287 Midwood Street Apt: TWNHS
Brooklyn, NY 11225
Cross street:Rogers Avenue

Building

Type:House
Era:Post-war
Floors:3

Property

Ownership: Single Family
Rooms: 15
Bedrooms: 3 BR
Bathrooms:
Pets: Pets No

Financials

Price:$2,575,000
Real estate tax:$576
578 Driggs Avenue Brooklyn, NY 11211
Listing Courtesy of Compass

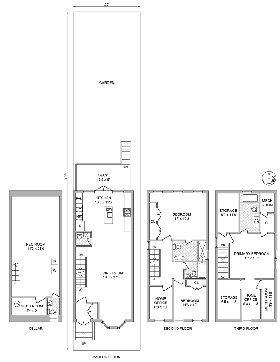
Originally constructed in 1910, 287 Midwood Street has been meticulously transformed to seamlessly blend historic charm with modern luxury.

Description

Originally constructed in 1910, 287 Midwood Street has been meticulously transformed to seamlessly blend historic charm with modern luxury. This distinguished three-story single-family residence offers 3 bedrooms with 2 home offices, 3 full bathrooms, and 2 powder rooms, all complemented by high-end finishes and state-of-the-art technology. As you enter through the original front doors, the expansive 20-foot wide first floor captivates with its ample space for a grand living room, powder room, and a central dining area, highlighted by herringbone oak wood floors. Toward the rear, a gourmet kitchen awaits, featuring an island, custom cabinetry, Danby marble countertops, and top-of-the-line appliances. Culinary enthusiasts will appreciate the six-burner Wolf stove, Bosch integrated refrigerator, integrated Bosch dishwasher, wine cooler, and microwave drawer. The back of the floor unveils a full glass wall, leading to an Ipe wood deck and sprawling backyard with grass. On the second level, the primary bedroom, positioned at the back, overlooks the serene backyard and offers substantial storage with two deep closets. The primary bath is a sanctuary, featuring tiled floors, a double vanity, and a glass-enclosed spa-like shower. At the front, an additional bedroom, a flexible office space, and a secondary full bathroom complete this level. The top floor features an additional bedroom with a private en suite bathroom, a versatile office space, three spacious storage spaces, and breathtaking neighborhood views. Downstairs, the finished basement features tiled floors, two windows and includes a half bathroom, making it ideal for a playroom or media den. A convenient washer/dryer closet completes this level. Nestled on a picturesque, tree-lined street in Prospect Lefferts Gardens, this masterfully reimagined townhouse is surrounded by local dining hotspots and the lush expanses of Prospect Park, along with several smaller parks. Residents are mere moments away from acclaimed dining establishments like Camillo, Names, DjonDjon, and Honey Badger. Convenient access to public transportation includes the 2/5 trains and B44/B49 buses.

Amenities

  • Washer / Dryer
  • Air Conditioning
  • Walk-up

Neighborhood

More listings:

OLR IDX

RLS Data display by Nest Seekers LLC.

All information furnished regarding property for sale, rental or financing is from sources deemed reliable, but no warranty or representation is made as to the accuracy thereof and same is submitted subject to errors, omissions, change of price, rental or other conditions, prior sale, lease or financing or withdrawal without notice. International currency conversions where shown are estimates based on recent exchange rates and are not official asking prices.

All dimensions are approximate. For exact dimensions, you must hire your own architect or engineer.