Nestled in the heart of The Bronx, New York, this stunning property located at 5020 Grosvenor Ave was built in 2015 and boasts a luxurious and modern single family home ...
| Website: | https://www.nestseekers.com/5152800 |
|---|---|
| Address: | 5020 Grosvenor Avenue Apt: 1 Bronx, NY 10471 |
| Cross street: | West 250th Street |
| Type: | House |
| Era: | Pre-war |
| Floors: | 2 |
| Ownership: | Single Family |
|---|---|
| Rooms: | 14 |
| Bedrooms: | 8 BR |
| Bathrooms: | 6½ |
| Pets: | Pets Allowed |
Financials
Price:$5,900,000
Maintenance:$355
Description
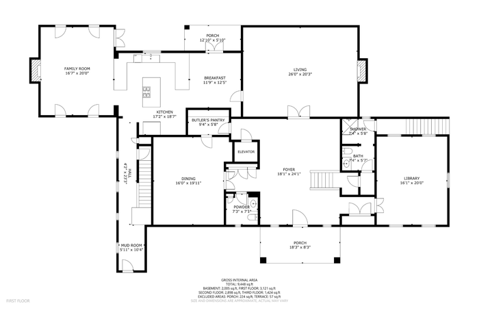
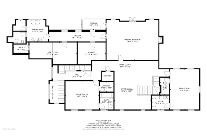
Nestled in the heart of The Bronx, New York, this stunning property located at 5020 Grosvenor Ave was built in 2015 and boasts a luxurious and modern single-family home design. With a total of 6 bathrooms and 1 half bathroom, this property offers ample space and convenience for any family. The finished area of the home spans an impressive 10,100 square feet, providing plenty of room for entertaining guests or simply enjoying the comforts of home.
Spanning three stories, this property offers a multi-level layout that maximizes space and functionality. Each floor is thoughtfully designed to provide a seamless flow throughout the home, making it easy to navigate and enjoy every corner of the property. The lot size of this property is an expansive 30,353 square feet, offering plenty of outdoor space for recreational activities or simply enjoying the fresh air.
The exterior of the home is beautifully designed, with modern architecture and sleek finishes that create a sophisticated and stylish look. The property is well-maintained and landscaped, adding to its curb appeal and overall charm. Whether you're relaxing on the spacious patio or taking in the views from the balcony, this property offers a serene and picturesque setting that is sure to impress.
Inside, the home features high-end finishes and fixtures throughout, including hardwood floors, granite countertops, and stainless steel appliances. The open-concept layout is perfect for modern living, with a spacious living room, dining area, and gourmet kitchen that are ideal for entertaining or everyday living. The bedrooms are generously sized and offer plenty of closet space, while the bathrooms are elegantly appointed with modern amenities.
Located in a desirable neighborhood in The Bronx, this property offers easy access to shopping, dining, schools, and parks. With its ideal location and impressive features, this property at 5020 Grosvenor Ave is the perfect place to call home for those seeking luxury, comfort, and convenience. Don't miss out on this rare opportunity to own a truly exceptional property in one of New York's most sought-after locations.
Amenities
Driveway; Garage; Garden; Pool; Wine Cellar;
- Washer / Dryer
- Basement
- Garage
- Garden
- Pool
505 Park Ave, New York, NY 10022 Phone: +1 212-252-8772 Fax: +1 212-252-9347 | |
| Listing Courtesy of KARTEN REAL ESTATE SERVICES LLC | |