Property
| Ownership: | Multi-Family |
|---|---|
| Rooms: | 14 |
| Bedrooms: | Studio |
Financials
Price:$899,000
Real estate tax:$8,832
Listing Courtesy of Corcoran Group
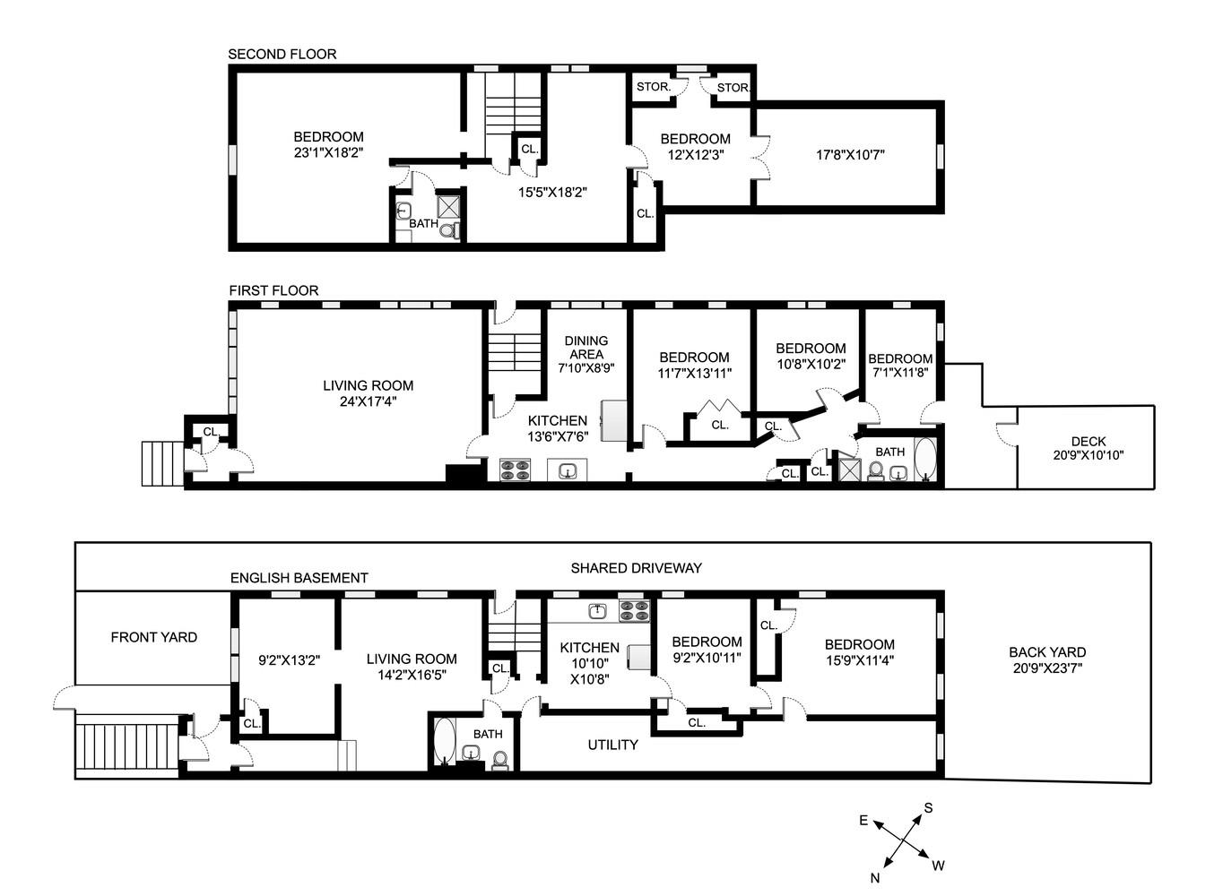
Bring your architect and contractor to this fully detached two family brick home awaiting your renovation.
Description
Bring your architect and contractor to this fully detached two-family brick home awaiting your renovation.
- Building: fully detached two-family
- Built: 19' x 70'
- Approx. living area: 3,700 SF
- Lot: 23.67' x 100'
- Shared driveway, rear deck
- Located near Brookdale Hospital and Brooklyn Terminal Market
- Ideal for rehab or conversion
Amenities
Driveway;
- Basement

RLS Data display by Nest Seekers LLC.
All information furnished regarding property for sale, rental or financing is from sources deemed reliable, but no warranty or representation is made as to the accuracy thereof and same is submitted subject to errors, omissions, change of price, rental or other conditions, prior sale, lease or financing or withdrawal without notice. International currency conversions where shown are estimates based on recent exchange rates and are not official asking prices.
All dimensions are approximate. For exact dimensions, you must hire your own architect or engineer.