Set on one of Park Slope's most coveted blocks, 315 Garfield Place is a grand and stately 26' wide mansion.
| Website: | https://www.nestseekers.com/5410395 |
|---|---|
| Address: | 315 Garfield Place Brooklyn, NY 11215 |
| Cross street: | 8th Avenue |
| Type: | Townhouse |
| Era: | Post-war |
| Floors: | 5 |
| Ownership: | Single Family |
|---|---|
| Rooms: | 15 |
| Bedrooms: | Studio |
Financials
Description
Set on one of Park Slope's most coveted blocks, 315 Garfield Place is a grand and stately 26'-wide mansion. The home, built in 1892 by renowned architect C.P.H. Gilbert, has been meticulously renovated with special attention paid to the period details of the townhouse. There have been only three owners in this prestigious property's 133-year history.
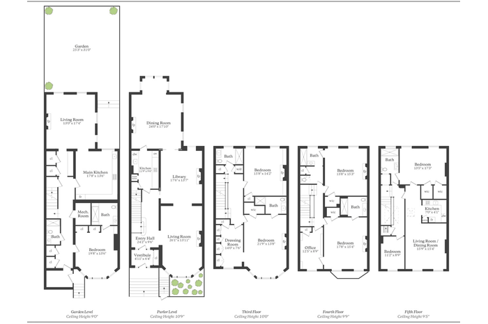
The property spans nearly 7,000 square feet across five floors and features seven bedrooms, seven bathrooms, a centrally located library with the original paneled African knotty pine, a beautiful rear glass breakfast nook that allows light to pour through the space, impeccably restored wood floors throughout, remarkable curb appeal, original details, and a flexible layout.
With over 1,000 square feet of air rights available, there is a possibility for a penthouse addition envisioned as a striking modern complement to the historic structure. The proposed design includes a double rooftop with tiered outdoor spaces, offering sweeping views of the New York City skyline and Prospect Park. This addition presents a rare opportunity to further elevate the home with exceptional indoor-outdoor living and panoramic vistas.
Located in prime Park Slope on a charming tree-lined street, 315 Garfield Place is conveniently located a stone's throw from Prospect Park and public transit, and in close proximity to shops, restaurants, and cultural institutions. This brownstone awaits the discerning purchaser seeking an unmatched blend of luxury, history, and future potential.
Amenities
- Terrace
- Air Conditioning
- Voice Intercom
578 Driggs Avenue Brooklyn, NY 11211 Phone: +1 718-302-0900 Fax: +1 718-228-3917 | |
| Listing Courtesy of Garfield, Leslie J. & Co., Inc. | |