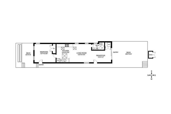
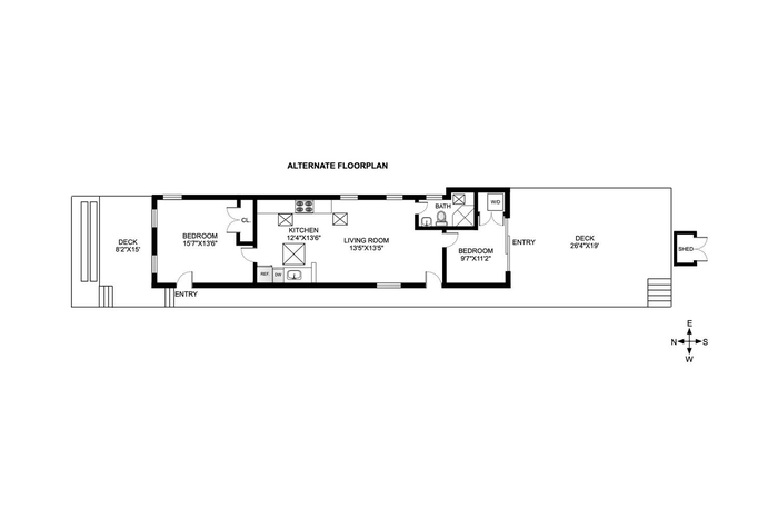
Welcome to 64 Hillside Avenue, a charming Roxbury 1 bedroom home that can easily be converted to a 2 bedroom.
| Website: | https://www.nestseekers.com/5413981 |
|---|---|
| Address: | 64 Hillside Avenue Queens, NY 11697 |
| Cross street: | Hillside Avenue |
| Type: | House |
| Era: | Post-war |
| Floors: | 1 |
| Ownership: | Single Family |
|---|---|
| Rooms: | 5 |
| Bedrooms: | Studio |
Financials
Price:$525,000
Description
Welcome to 64 Hillside Avenue, a charming Roxbury 1-bedroom home that can easily be converted to a 2-bedroom.
Step into this beautifully renovated home, where an open floor plan and soaring vaulted ceilings create a bright, airy ambiance filled with natural sunlight. The spacious living room features three large windows and a skylight, seamlessly flowing into the modern open kitchen that is equipped with stainless steel appliances, ample counter space, two walls of cabinets and a huge skylight. The generous bedroom features three oversized windows, a double closet, and a private entrance leading to the inviting front deck. A versatile bonus space beyond the living room can easily be transformed into a second bedroom, with large sliding doors opening onto a sizable back deck that extends over 26 feet. This outdoor retreat features a partial awning, ideal for relaxing in the shade or soaking up the sun. Additional highlights include a full bathroom with a skylight, split heating and cooling for year-round comfort, a handy outdoor storage shed, and generous storage options beneath the house. Don't let this one pass you by.
Monthly Maintenance: $448.19
Step into this beautifully renovated home, where an open floor plan and soaring vaulted ceilings create a bright, airy ambiance filled with natural sunlight. The spacious living room features three large windows and a skylight, seamlessly flowing into the modern open kitchen that is equipped with stainless steel appliances, ample counter space, two walls of cabinets and a huge skylight. The generous bedroom features three oversized windows, a double closet, and a private entrance leading to the inviting front deck. A versatile bonus space beyond the living room can easily be transformed into a second bedroom, with large sliding doors opening onto a sizable back deck that extends over 26 feet. This outdoor retreat features a partial awning, ideal for relaxing in the shade or soaking up the sun. Additional highlights include a full bathroom with a skylight, split heating and cooling for year-round comfort, a handy outdoor storage shed, and generous storage options beneath the house. Don't let this one pass you by.
Monthly Maintenance: $448.19
Amenities
- Elevator
24-20 Jackson Ave Floor 3
Long Island City, NY 11101, USA Phone: +1 929-442-2208 | |
| Listing Courtesy of Corcoran Group | |