Photos coming soon... Is there any block lovelier than the park block of 4th St ?
| Website: | https://www.nestseekers.com/5431141 |
|---|---|
| Address: | 577 4th Street Brooklyn, NY 11215 |
| Cross street: | 8th Avenue |
| Type: | House |
| Era: | Post-war |
| Floors: | 3 |
| Ownership: | Single Family |
|---|---|
| Rooms: | 13 |
| Bedrooms: | Studio |
Financials
Price:$4,500,000
Real estate tax:$13,020
Description
Photos coming soon...
Is there any block lovelier than the park block of 4th St? We think not! And is there a better house than 577 4th? For sure not!
As for the block, the uninterrupted parade of early 1900s limestones is pleasing in its uniformity as well as in the unique details of each home. The sense of community on the block is demonstrated by informal stoop gatherings and the annual block party.
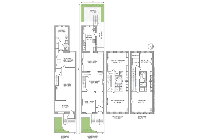
As for the house, the features and improvements are almost innumerable. Pristine original floors, an open parlor floor, the formal paneled dining room with original china closets, and a large eat-in kitchen are perfectly set up for today’s lifestyle. Throughout the house are period details that have been preserved and restored, including mantels in all major rooms, plaster mouldings, and chandeliers. Upstairs, there are 5 bedrooms and two full baths. A custom library offers built-ins for books and media as well as a wood-burning fireplace. The basement is a perfect rec room/workshop/laundry /storage combination.
The kitchen and baths have been redone and boast modern plumbing and electrical service. Almost all the windows are high-quality replacements. A great feature is the ducted central air conditioning system installed in 2014. No need to tear up the house to be comfortable! There are 3 zones - parlor/basement, primary floor, and top floor.
With a lovely deck and garden in the rear, 577 4th St is the quintessential Park Slope brownstone, in move-in condition.
Amenities
Garden; Laundry Room;
- Air Conditioning
- Basement
- Garden
- Laundry Room
578 Driggs Avenue Brooklyn, NY 11211 Phone: +1 718-302-0900 Fax: +1 718-228-3917 | |
| Listing Courtesy of Compass | |