In the heart of Williamsburg, on a classic tree lined block, Residence 2 at 128 South 1st Street represents a rare offering in Williamsburg a four bedroom duplex with expansive ...
| Website: | https://www.nestseekers.com/5421567 |
|---|---|
| Address: | 128 South 1st Street Apt: 2 Brooklyn, NY 11249 |
| Cross street: | Park Avenue |
| Type: | Townhouse |
| Era: | Post-war |
| Floors: | 3 |
| Ownership: | Multi-Family |
|---|---|
| Rooms: | 6 |
| Bedrooms: | 4 BR |
| Bathrooms: | 3 |
| Pets: | Pets Allowed |
Financials
Price:$2,495,000
Maintenance:$996
Real estate tax:$243
Description
In the heart of Williamsburg, on a classic tree-lined block, Residence 2 at 128 South 1st Street represents a rare offering in Williamsburg: a four-bedroom duplex with expansive private outdoor space-delivering the scale of a townhouse with the ease and efficiency of condominium living.
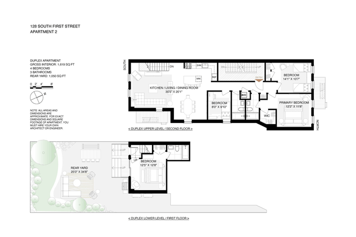
Spanning the entire second floor and rear of the first floor, this fully-renovated 4-bedroom, 3-bath home offers approximately 1,619 square feet of interior space, complemented by a private garden of over 1,000 square feet. The layout is both generous and highly functional, designed to accommodate a variety of living arrangements without compromise.
The main level is centered around a large, open living and dining area that flows seamlessly into the kitchen-creating a natural gathering space for both everyday living and entertaining. Oversized windows at the rear overlook the private garden, bringing in natural light and offering a quiet, green backdrop that casts a peaceful, relaxed atmosphere throughout the home. With exposures to the north, south, and east, the home benefits from consistent light throughout the day.
The kitchen continues the building's modern design language, featuring custom wood cabinetry, stainless steel appliances, quartz countertops, and a clean, refined material palette that balances warmth and precision while prioritizing both form and function.
To the rear of the upper level, three well-proportioned bedrooms are thoughtfully arranged alongside two full bathrooms, creating a comfortable and private sleeping wing. The primary suite is particularly well-appointed, featuring a walk-in closet and an en-suite bath, while the additional bedrooms offer flexibility for family, guests, or home office use without compromise.
The lower level features a well-proportioned bedroom and full bath, with direct access to the garden-making it ideal for a primary suite, guest accommodations, or dedicated work-from-home space. All four bedrooms are nicely scaled, offering flexibility without sacrificing comfort.
The private garden is a defining feature-over 1,000 square feet of outdoor space that functions as a true extension of the home. Thoughtfully positioned off both the lower level bedroom and accessible via the upper level through the common stair, it offers a seamless indoor-outdoor lifestyle rarely achieved in condominium living. With ample room for dining, lounging, and landscaping, the space invites everything from weekend gatherings and summer dinners to quiet mornings surrounded by greenery. Framed by the rear of the building and set back from the street, it provides a rare sense of privacy and calm-more akin to a townhouse garden than a typical condo outdoor space.
Additional features include central air conditioning and an in-unit washer/dryer, ensuring modern convenience is seamlessly integrated throughout.
Set within a boutique, four-residence condominium, 128 S 1st Street offers an intimate, professionally managed living experience with exceptionally low carrying costs. Located on a quiet, tree-lined block just moments from the Bedford L train and Domino Park, Residence 2 places you squarely in the center of Williamsburg's energy while offering a sense of space and privacy that feels removed from it.
For buyers seeking true scale, private outdoor space, and long-term livability in Williamsburg, Residence 2 stands apart as a compelling and increasingly rare opportunity.
Note: Some images have been virtually staged.
Complete offering terms are in an Offering Plan available from Sponsor. File No. CD25-0339. Equal Housing Opportunity.
Spanning the entire second floor and rear of the first floor, this fully-renovated 4-bedroom, 3-bath home offers approximately 1,619 square feet of interior space, complemented by a private garden of over 1,000 square feet. The layout is both generous and highly functional, designed to accommodate a variety of living arrangements without compromise.
The main level is centered around a large, open living and dining area that flows seamlessly into the kitchen-creating a natural gathering space for both everyday living and entertaining. Oversized windows at the rear overlook the private garden, bringing in natural light and offering a quiet, green backdrop that casts a peaceful, relaxed atmosphere throughout the home. With exposures to the north, south, and east, the home benefits from consistent light throughout the day.
The kitchen continues the building's modern design language, featuring custom wood cabinetry, stainless steel appliances, quartz countertops, and a clean, refined material palette that balances warmth and precision while prioritizing both form and function.
To the rear of the upper level, three well-proportioned bedrooms are thoughtfully arranged alongside two full bathrooms, creating a comfortable and private sleeping wing. The primary suite is particularly well-appointed, featuring a walk-in closet and an en-suite bath, while the additional bedrooms offer flexibility for family, guests, or home office use without compromise.
The lower level features a well-proportioned bedroom and full bath, with direct access to the garden-making it ideal for a primary suite, guest accommodations, or dedicated work-from-home space. All four bedrooms are nicely scaled, offering flexibility without sacrificing comfort.
The private garden is a defining feature-over 1,000 square feet of outdoor space that functions as a true extension of the home. Thoughtfully positioned off both the lower level bedroom and accessible via the upper level through the common stair, it offers a seamless indoor-outdoor lifestyle rarely achieved in condominium living. With ample room for dining, lounging, and landscaping, the space invites everything from weekend gatherings and summer dinners to quiet mornings surrounded by greenery. Framed by the rear of the building and set back from the street, it provides a rare sense of privacy and calm-more akin to a townhouse garden than a typical condo outdoor space.
Additional features include central air conditioning and an in-unit washer/dryer, ensuring modern convenience is seamlessly integrated throughout.
Set within a boutique, four-residence condominium, 128 S 1st Street offers an intimate, professionally managed living experience with exceptionally low carrying costs. Located on a quiet, tree-lined block just moments from the Bedford L train and Domino Park, Residence 2 places you squarely in the center of Williamsburg's energy while offering a sense of space and privacy that feels removed from it.
For buyers seeking true scale, private outdoor space, and long-term livability in Williamsburg, Residence 2 stands apart as a compelling and increasingly rare opportunity.
Note: Some images have been virtually staged.
Complete offering terms are in an Offering Plan available from Sponsor. File No. CD25-0339. Equal Housing Opportunity.
Amenities
Garden; Roof Deck;
- Is New Development
- Washer / Dryer
- Air Conditioning
- Garden
- Roof Deck
- Voice Intercom
578 Driggs Avenue Brooklyn, NY 11211 Phone: +1 718-302-0900 Fax: +1 718-228-3917 | |
| Listing Courtesy of Corcoran Group | |