Property
| Ownership: | Condo |
|---|---|
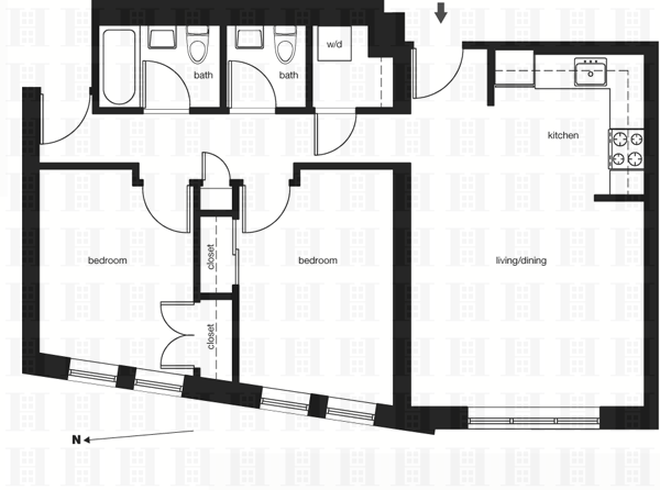
| Rooms: | 4 |
| Bedrooms: | 2 BR |
| Bathrooms: | 1½ |
| Pets: | Pets Allowed |
Open Houses
Financials
Welcome to your new home at 362 Saint Nicholas, apt 9A, New York NY, 10027.
Description
Welcome to your new home at 362 Saint Nicholas, apt 9A, New York NY, 10027. This spacious, two-bedroom, one and a half bathroom apartment is a haven in the heart of Manhattan. Every room offers grand views of Saint Nicholas Park and is bathed in natural light. The property boasts beautiful hardwood floors and an open kitchen equipped with stainless steel appliances, blue granite countertops, and maple wood cabinets.
The high ceilings and independently controlled heating and air conditioning ensure comfort throughout the year. The full-sized washer and dryer add convenience to your daily routine.
This apartment is part of a boutique condo building that offers a range of amenities. The building features a live-in super, an elevator, a fitness room, and a landscaped courtyard. It also provides storage units and is pet-friendly, making it a great fit for all lifestyles.
The location of the building is a highlight. It's just a block away from the A/B/C/D trains at 125th Street, offering quick access to Columbus Circle. Additionally, it's conveniently located near the 1, 2, and 3 trains and various bus routes.
The neighborhood offers a variety of amenities. Columbia University and City College are nearby, as are Morningside Park, Whole Foods, Fairway, Best Market, and a host of restaurants, bars, and coffee shops.
This apartment provides an excellent opportunity to live in a vibrant, convenient location with great amenities. Plus, with a 19-year tax abatement until 2033, the current annual real estate taxes are only $4.00 per month.
Don't miss this chance to make this Manhattan paradise your own. Contact me today for a private showing or a virtual FaceTime appointment
Amenities
- Washer / Dryer
- Courtyard
- Elevator
- Fitness Facility
- Voice Intercom
Neighborhood

RLS Data display by Nest Seekers LLC.
All information furnished regarding property for sale, rental or financing is from sources deemed reliable, but no warranty or representation is made as to the accuracy thereof and same is submitted subject to errors, omissions, change of price, rental or other conditions, prior sale, lease or financing or withdrawal without notice. International currency conversions where shown are estimates based on recent exchange rates and are not official asking prices.
All dimensions are approximate. For exact dimensions, you must hire your own architect or engineer.