Property
| Ownership: | Mixed Use |
|---|---|
| Rooms: | 10 |
| Bedrooms: | Studio |
| Pets: | Pets Unknown |
Financials
PRIME MYRTLE AVENUE LOCATION CLINTON HILL, BROOKLYN OFFERING ON AN EXCLUSIVE BASIS an incredible opportunity to own a 3 story mixed use 20 foot wide income generating brick townhouse with ...
Description
PRIME MYRTLE AVENUE LOCATION
(CLINTON HILL, BROOKLYN)
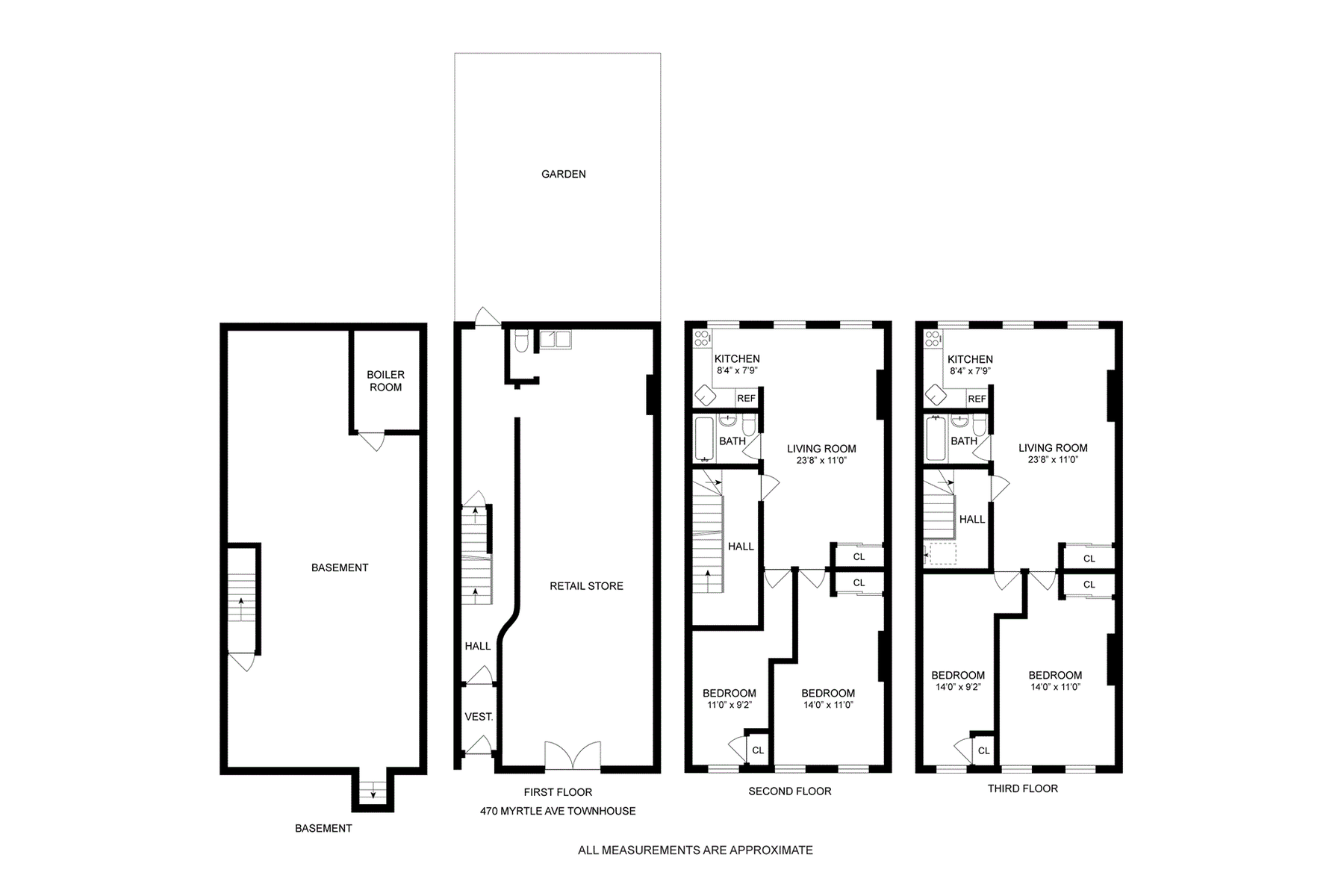
OFFERING ON AN EXCLUSIVE BASIS an incredible opportunity to own a 3 story mixed-use 20 foot-wide income-generating brick townhouse with 1 retail/commercial store and garden, on one of the best streets and locations in Clinton Hill.
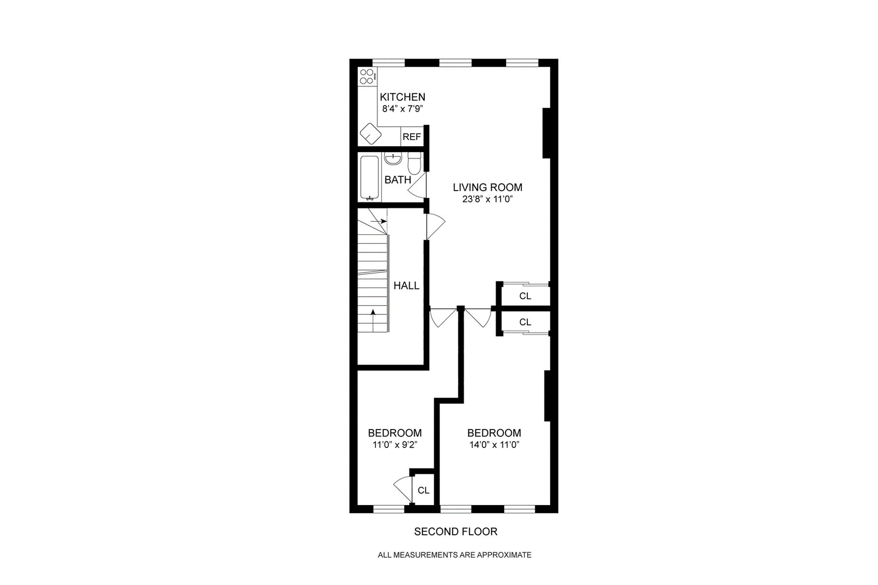
The building is comprised of two- floor-thru 2 bedroom 1 bath apts. on floors 2 and 3.
The ground floor is a fully built-out commercial/retail space, which includes a cellar for storage. and a private garden 27" x 20'.
The building has incredibly low taxes of 5,237/year 436/Mo.
The lot size is 20" x 67.3" and bldg. size is 20" x 40', with R-7A zoning.
Incredible live work or investment opportunity.
Contact exclusive agents for additional information
Amenities
- Voice Intercom
- Walk-up
Neighborhood

RLS Data display by Nest Seekers LLC.
All information furnished regarding property for sale, rental or financing is from sources deemed reliable, but no warranty or representation is made as to the accuracy thereof and same is submitted subject to errors, omissions, change of price, rental or other conditions, prior sale, lease or financing or withdrawal without notice. International currency conversions where shown are estimates based on recent exchange rates and are not official asking prices.
All dimensions are approximate. For exact dimensions, you must hire your own architect or engineer.