Property
| Ownership: | Multi-Family |
|---|---|
| Rooms: | 17 |
| Bedrooms: | Studio |
| Pets: | Pets Unknown |
Financials
Price:$16,500,000
Real estate tax:$112,826
Listing Courtesy of Brown Harris Stevens Residential Sales LLC
Gold Coast Mansion Home of the 50th Annual Kips Bay Designer Showhouse This stunning historic home has been designed and renovated by a collection of today's most talented and in ...
Description
Gold Coast Mansion Home of the 50th Annual Kips Bay Designer Showhouse
This stunning historic home has been designed and renovated by a collection of today's most talented and in-demand architects and designers. Visit the Kips Bay Showhouse now through October 20th, where finishes and fixtures, including the Christopher Peacock kitchen, will remain in place for the buyer of this incredible home.
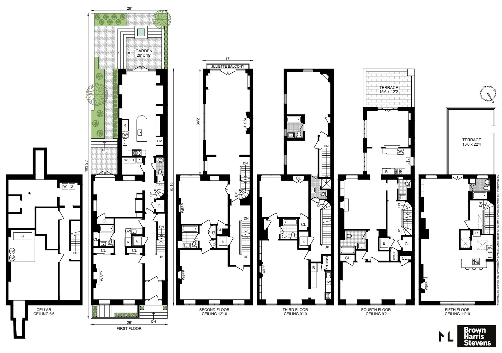
Majestic proportions, premiere location, and beautiful light and views define the grandly scaled 20 West 12th Street. An impressive 26 feet wide, built 80 feet on a 103 foot deep lot, and graced with a 20 foot private garden, with side garden, this approximately 9000 square feet turn of the century brick and stone house is destined to return to all of its former glory and maintains much of its century old character, lovingly maintained and attended to.
Notable highlights include: Otis elevator; pristine basement over 6" high with updated mechanicals, plumbing, electric and gas service; 7 wood burning fireplaces; central air conditioning; north, south, and a rare east exposure offering glorious light and privacy; soaring ceilings reaching 13 feet high; and stunning landmark, verdant views. To the south, 3 protected townhouses protect the sun kissed southern exposure.
Cellar- mechanicals, storage, laundry.
First, Second and Third floor owner's triplex featuring a renovated 30 foot long kitchen leading to garden, 4-5 bedrooms, 3.5 baths, and a parlor floor suite comprised of 26 foot wide sitting room with three window bays facing West 12th Street, square library, and the breathtaking conservatory great room, each with 13 foot ceilings, and a wood burning fireplace. The brick paved, landscaped 20 foot deep garden, side garden, and mature trees including a 50 foot blooming magnolia provide a peaceful nature sanctuary.
Third floor front- 1 bedroom home with renovated kitchen, and approximately 10 foot ceilings.
Fourth floor- 1 bedroom floor through with formal dining, 26 foot wide living room, three open exposures with protected views, and 12 x 15 foot private terrace with open southern views.
Fifth floor- 1 bedroom artist aerie with 12 foot ceilings, exposed brick hearth and fireplace, triple bay steel casement window framing cinematic Village views, and a 15 x 22 foot terrace with open southern views.
This stunning historic home has been designed and renovated by a collection of today's most talented and in-demand architects and designers. Visit the Kips Bay Showhouse now through October 20th, where finishes and fixtures, including the Christopher Peacock kitchen, will remain in place for the buyer of this incredible home.
Majestic proportions, premiere location, and beautiful light and views define the grandly scaled 20 West 12th Street. An impressive 26 feet wide, built 80 feet on a 103 foot deep lot, and graced with a 20 foot private garden, with side garden, this approximately 9000 square feet turn of the century brick and stone house is destined to return to all of its former glory and maintains much of its century old character, lovingly maintained and attended to.
Notable highlights include: Otis elevator; pristine basement over 6" high with updated mechanicals, plumbing, electric and gas service; 7 wood burning fireplaces; central air conditioning; north, south, and a rare east exposure offering glorious light and privacy; soaring ceilings reaching 13 feet high; and stunning landmark, verdant views. To the south, 3 protected townhouses protect the sun kissed southern exposure.
Cellar- mechanicals, storage, laundry.
First, Second and Third floor owner's triplex featuring a renovated 30 foot long kitchen leading to garden, 4-5 bedrooms, 3.5 baths, and a parlor floor suite comprised of 26 foot wide sitting room with three window bays facing West 12th Street, square library, and the breathtaking conservatory great room, each with 13 foot ceilings, and a wood burning fireplace. The brick paved, landscaped 20 foot deep garden, side garden, and mature trees including a 50 foot blooming magnolia provide a peaceful nature sanctuary.
Third floor front- 1 bedroom home with renovated kitchen, and approximately 10 foot ceilings.
Fourth floor- 1 bedroom floor through with formal dining, 26 foot wide living room, three open exposures with protected views, and 12 x 15 foot private terrace with open southern views.
Fifth floor- 1 bedroom artist aerie with 12 foot ceilings, exposed brick hearth and fireplace, triple bay steel casement window framing cinematic Village views, and a 15 x 22 foot terrace with open southern views.
Amenities
Garden;
- Terrace
- Air Conditioning
- Elevator
- Garden
- Voice Intercom
Neighborhood
More listings:

RLS Data display by Nest Seekers LLC.
All information furnished regarding property for sale, rental or financing is from sources deemed reliable, but no warranty or representation is made as to the accuracy thereof and same is submitted subject to errors, omissions, change of price, rental or other conditions, prior sale, lease or financing or withdrawal without notice. International currency conversions where shown are estimates based on recent exchange rates and are not official asking prices.
All dimensions are approximate. For exact dimensions, you must hire your own architect or engineer.