Property
Ownership: | For Sale |
---|---|
Type: | Residential |
Pets: | Pets No |
Lot Size: | 0.16 Acres |
Financials
Price:$4,490,000
Annual Taxes:$10,804
Real estate tax:$10,804
Listing Courtesy of BHHS EWM Realty
With no bridges to the Bay, this newly renovated home on exclusive Rockerman Road is a boater s paradise w 6 BRs amp ; 4.
Description
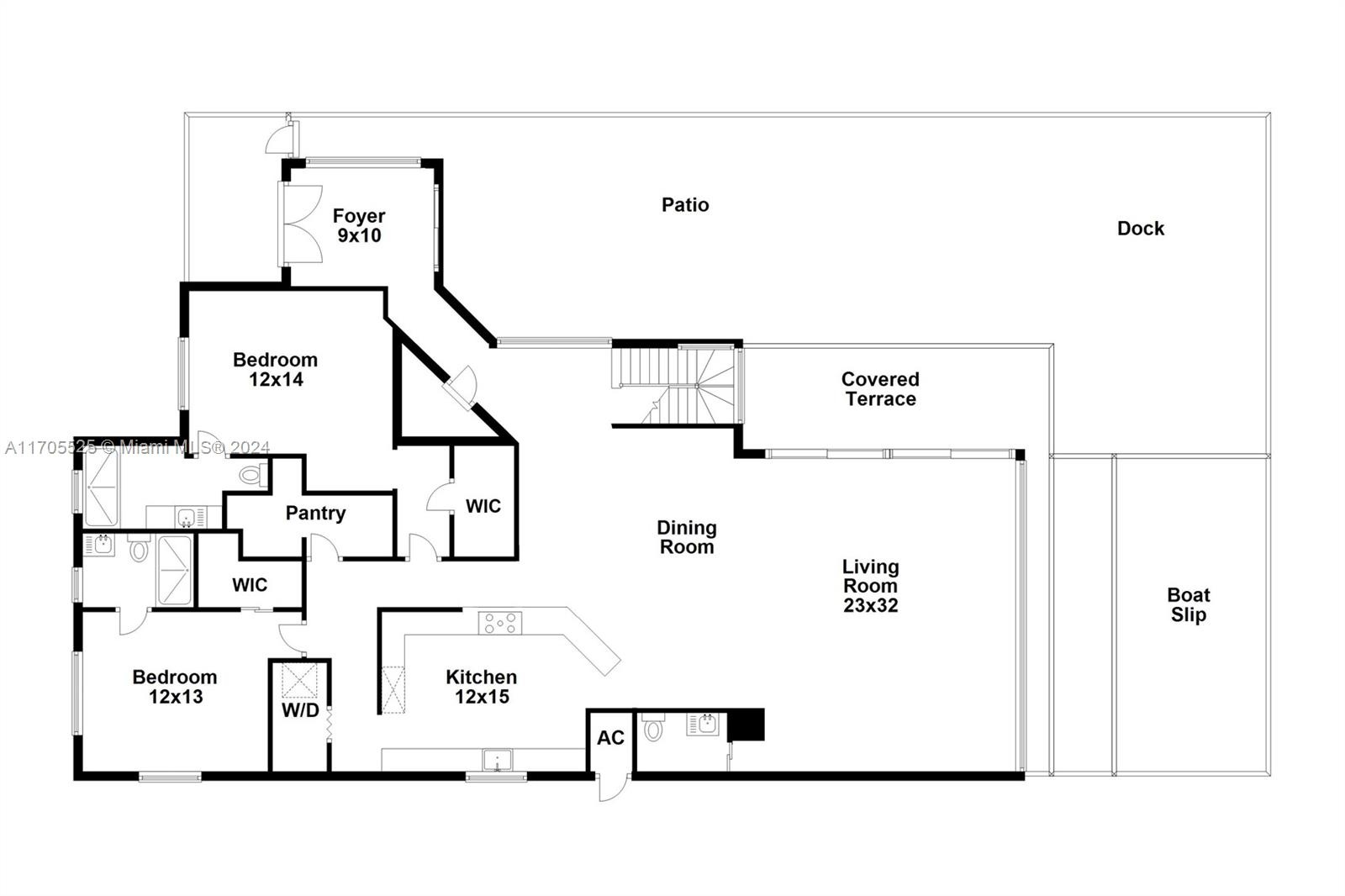
With no bridges to the Bay, this newly-renovated home on exclusive Rockerman Road is a boater’s paradise w/ 6 BRs & 4.5 BAs spanning 3,517 SF on a 7,053 SF lot w/ 61’ on the water. The open kitchen features new appliances & freshly-painted cabinets. The living & dining areas have lovely views of the water & Kennedy Park across the way. There are also 2 BRs w/ en-suite baths on the 1st floor, 1 of which could be the primary suite. The primary suite is located privately on the 3rd floor & includes 2 walk-in closets, BA w/ dual vanities, & separate tub & shower. The 4th level rooftop terrace enjoys gorgeous vistas! New roof, new impact glass windows & doors, new seawall & dock w/ lift, renovated BAs, easy bay access, all conveniently close to downtown Coconut Grove & downtown Miami!
Virtual Tour: https://www.propertypanorama.com/instaview/mia/A11705525
Amenities
- CableAvailable
- Canal
- ElectricityAvailable
- LessThanQuarterAcre
- NoFixedBridges
- Seawall
- SewerAvailable
- TrashCollection
- WaterAvailable
Neighborhood
More listings:

All information furnished regarding property for sale, rental or financing is from sources deemed reliable, but no warranty or representation is made as to the accuracy thereof and same is submitted subject to errors, omissions, change of price, rental or other conditions, prior sale, lease or financing or withdrawal without notice. International currency conversions where shown are estimates based on recent exchange rates and are not official asking prices.
All dimensions are approximate. For exact dimensions, you must hire your own architect or engineer.