Property
| Ownership: | Mixed Use | 
|---|---|
| Rooms: | 12 | 
| Bedrooms: | Studio | 
| Pets: | Pets Unknown | 
Financials
Price:$3,800,000
Real estate tax:$51,501
          Listing Courtesy of Brown Harris Stevens Brooklyn LLC
      
Rare Opportunity on Atlantic Avenue A 4 Story Gem with Endless Possibilities !
Description
Rare Opportunity on Atlantic Avenue: A 4-Story Gem with Endless Possibilities!
Seize this grand investment opportunity:
Property class three family with one store or office (S3)
Historic district Boerum Hill Extension
Building dimensions 22x52ft
Lock dimensions 22.42ftX80ft
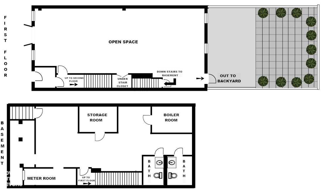
Over 3000 ft. of unused space available
All dimensions per PROPERTY SHARK
Opportunity in one of the most vibrant and sought-after locations in the city! Situated on iconic Atlantic Avenue, this four-story building is delivered vacant, offering a blank canvas to create your dream property. Whether you're a savvy developer, an ambitious investor, or an owner-occupant with a vision, this property is your chance to design a legacy.
Key Features:
Two spacious bedrooms per floor-perfect for rentals, a multi-family setup, or a luxurious single-family conversion.
Full basement for additional storage, workspace, or creative possibilities.
Expansive backyard-a rare find in this prime urban location, ideal for entertaining, gardening, or outdoor retreats.
Room to build up-unlock even more potential with added floors, subject to zoning approval.
Prime Location:
Nestled in a stellar neighborhood filled with upscale artisan shops, trendy restaurants, and cultural hotspots.
Close to all major transportation hubs for unmatched convenience.
A short stroll to shopping, parks, and everything you need for city living at its finest.
Potential Galore:
This property is perfect for renovators with a vision! Reimagine the space to suit your needs-create a stunning multi-family residence, establish your own store on the ground floor, or develop it into a lucrative mixed-use building.
Why You'll Love It:
Atlantic Avenue is a hub of activity and charm, where modern living meets historic appeal. This is your chance to be part of a thriving community and join the ranks of the area's exciting growth and transformation.
Don't Miss Out!
Properties like this don't come around often. Whether you're dreaming of a home, business, or investment, this versatile property has it all.
Act now to secure your future! Contact me today for more details and a private showing.
Seize this grand investment opportunity:
Property class three family with one store or office (S3)
Historic district Boerum Hill Extension
Building dimensions 22x52ft
Lock dimensions 22.42ftX80ft
Over 3000 ft. of unused space available
All dimensions per PROPERTY SHARK
Opportunity in one of the most vibrant and sought-after locations in the city! Situated on iconic Atlantic Avenue, this four-story building is delivered vacant, offering a blank canvas to create your dream property. Whether you're a savvy developer, an ambitious investor, or an owner-occupant with a vision, this property is your chance to design a legacy.
Key Features:
Two spacious bedrooms per floor-perfect for rentals, a multi-family setup, or a luxurious single-family conversion.
Full basement for additional storage, workspace, or creative possibilities.
Expansive backyard-a rare find in this prime urban location, ideal for entertaining, gardening, or outdoor retreats.
Room to build up-unlock even more potential with added floors, subject to zoning approval.
Prime Location:
Nestled in a stellar neighborhood filled with upscale artisan shops, trendy restaurants, and cultural hotspots.
Close to all major transportation hubs for unmatched convenience.
A short stroll to shopping, parks, and everything you need for city living at its finest.
Potential Galore:
This property is perfect for renovators with a vision! Reimagine the space to suit your needs-create a stunning multi-family residence, establish your own store on the ground floor, or develop it into a lucrative mixed-use building.
Why You'll Love It:
Atlantic Avenue is a hub of activity and charm, where modern living meets historic appeal. This is your chance to be part of a thriving community and join the ranks of the area's exciting growth and transformation.
Don't Miss Out!
Properties like this don't come around often. Whether you're dreaming of a home, business, or investment, this versatile property has it all.
Act now to secure your future! Contact me today for more details and a private showing.
Amenities
Garden;
- Patio
- Basement
- Garden
- Voice Intercom
- Walk-up
Neighborhood
More listings: 

RLS Data display by Nest Seekers LLC.
All information furnished regarding property for sale, rental or financing is from sources deemed reliable, but no warranty or representation is made as to the accuracy thereof and same is submitted subject to errors, omissions, change of price, rental or other conditions, prior sale, lease or financing or withdrawal without notice. International currency conversions where shown are estimates based on recent exchange rates and are not official asking prices.
All dimensions are approximate. For exact dimensions, you must hire your own architect or engineer.
