Property
| Ownership: | Co-op | 
|---|---|
| Rooms: | 3 | 
| Bedrooms: | 1 BR | 
| Bathrooms: | 1 | 
| Pets: | Pets Allowed | 
Financials
          Listing Courtesy of Brown Harris Stevens Residential Sales LLC
      
BACK ON MARKET ! This one bedroom pre war beauty is located in the heart of the Upper West Side.
Description
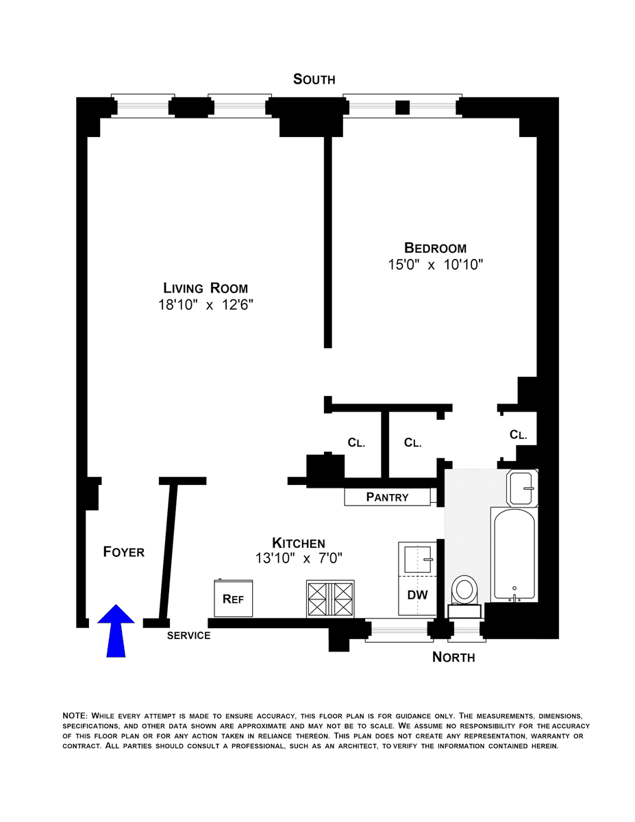
BACK ON MARKET! This one-bedroom pre-war beauty is located in the heart of the Upper West Side. The living room and bedroom have bright southern exposures and tree top views to 72nd Street. The eat-in kitchen features a large north-facing window, stainless steel appliances,  and a pantry. A windowed bathroom was recently reglazed (tile, bathtub and sink) and has two entrances: one through the bedroom and the second through the eat-in-kitchen (perfect for your guests). The rooms are all spacious and a smart layout provides for  comfortable living. The apartment preserves its original pre-war elegance with elements such as high beamed ceilings, picture frame moldings, and refinished hardwood flooring.
269 West 72nd Street is an elegant pre-war elevator co-op built by architects Schwartz & Gross in 1924 and has 4 apartments per floor. There is a live-in superintendent, laundry room, storage lockers (wait list), and bicycle storage. Prime location near Riverside Park, Trader Joe's, Fairway, Citarella, HMart, Kossar's, Picky Barista, Yasaka, Beacon Theater and Lincoln Center. Transportation is a breeze with the nearby 72nd Street 1/2/3 subway line a block away. Pets are welcome. Pied-a-terres, guarantors, co-purchasers and subletting (after 2 years) permitted, subject to co-op board approval. Spectrum bulk cable/internet package is available for $52/month.
The building currently has 2 capital assessments ending in June 2027 to pay off the cost of recently completed capital improvement projects (Local Law 11 work, water tank replacement, and gas riser project) and replenish the co-op's reserves. TO BE PAID BY SELLER.
269 West 72nd Street is an elegant pre-war elevator co-op built by architects Schwartz & Gross in 1924 and has 4 apartments per floor. There is a live-in superintendent, laundry room, storage lockers (wait list), and bicycle storage. Prime location near Riverside Park, Trader Joe's, Fairway, Citarella, HMart, Kossar's, Picky Barista, Yasaka, Beacon Theater and Lincoln Center. Transportation is a breeze with the nearby 72nd Street 1/2/3 subway line a block away. Pets are welcome. Pied-a-terres, guarantors, co-purchasers and subletting (after 2 years) permitted, subject to co-op board approval. Spectrum bulk cable/internet package is available for $52/month.
The building currently has 2 capital assessments ending in June 2027 to pay off the cost of recently completed capital improvement projects (Local Law 11 work, water tank replacement, and gas riser project) and replenish the co-op's reserves. TO BE PAID BY SELLER.
Amenities
Bike Room; Laundry Room; Private Storage;
- Elevator
- Laundry Room
- Voice Intercom
Neighborhood
More listings: 

RLS Data display by Nest Seekers LLC.
All information furnished regarding property for sale, rental or financing is from sources deemed reliable, but no warranty or representation is made as to the accuracy thereof and same is submitted subject to errors, omissions, change of price, rental or other conditions, prior sale, lease or financing or withdrawal without notice. International currency conversions where shown are estimates based on recent exchange rates and are not official asking prices.
All dimensions are approximate. For exact dimensions, you must hire your own architect or engineer.

