Property
| Ownership: | income-property |
|---|---|
| Rooms: | 16 |
| Bedrooms: | Studio |
| Pets: | Unknown |
Financials
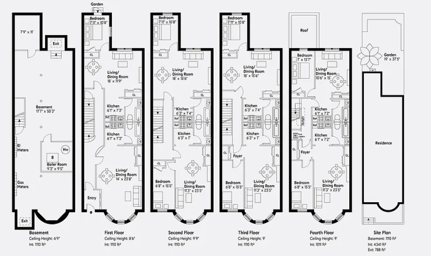
INVESTMENT OPPORTUNITY Located on a beautiful tree lined street in Hamilton Heights, is a classic multi family townhouse, built in 1910, 525 West 150th Street with 8 fully occupied rent ...
Description
INVESTMENT OPPORTUNITY
Located on a beautiful tree-lined street in Hamilton Heights, is a classic multi-family townhouse, built in 1910, 525 West 150th Street with (8) fully occupied rent stabilized units. The building consists of (1) Studio Unit and (7) One Bedroom units.
It's located between Broadway and Amsterdam Avenue in a bustling neighborhood with shopping and close to many parks.
Easy access to the A, C & 1 subway lines.
Amenities
- Voice Intercom
- Walk-up
Neighborhood

RLS Data display by Nest Seekers LLC.
All information furnished regarding property for sale, rental or financing is from sources deemed reliable, but no warranty or representation is made as to the accuracy thereof and same is submitted subject to errors, omissions, change of price, rental or other conditions, prior sale, lease or financing or withdrawal without notice. International currency conversions where shown are estimates based on recent exchange rates and are not official asking prices.
All dimensions are approximate. For exact dimensions, you must hire your own architect or engineer.