Property
| Ownership: | Single Family | 
|---|---|
| Bedrooms: | Studio | 
| Pets: | Pets Unknown | 
Financials
Price:$2,500,000
Real estate tax:$25,534
          Listing Courtesy of Real Broker
      
Nestled between single family brownstone homes, 235 West 120th Street presents all the brownstone character of Harlem, on a beautiful brownstone block, with interiors styled for modern living.
Description
Nestled between single-family brownstone homes, 235 West 120th Street presents all the brownstone character of Harlem, on a beautiful brownstone block, with interiors styled for modern living.
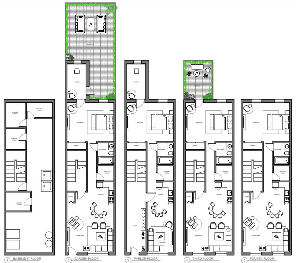
235 West 120th Street includes soaring 12-foot ceilings on the parlor floor, a private entrance with full patio and garden on the first level, a private terrace on the third floor, and a spacious, sun-filled fourth floor.
Wide-plank hardwood floors are throughout the building, as well as extra-large double-pane windows, modern finishes, and central heating and air conditioning.
Currently configured as four loft-like, full-floor homes, it invites imagination. A solid investment property in its current multi-family configuration.
It is also a perfect property if you’d like to enjoy Brownstone living, while owning your own income-producing building to create a brownstone home of your own that enjoys both short and long-term investment benefits.
Already sizeable, at more than 4,000 sq ft, there are expansion opportunities: adding a roofdeck with an additional floor suits your appreciation for skyline views, adding a recreation room for family space within the existing plan, or expanding the footprint with an extension on the large 1,700 sq ft lot. The building is also perfectly suited for co-op or condo conversion, with each unit already independently metered for both gas and electric.
The building is outfitted with four rooftop well maintained HVAC units, an interior fire sprinkler system, and modern plumbing and electrical throughout. The basement currently includes four private storage units as well as laundry area.
At the intersection of St. Nicholas Avenue and Adam Clayton Powell, 235 West 120th is nearby Morningside Park dog runs, multiple express subway lines, and surrounded by the exciting restaurants and atmosphere that make this part of Harlem everyone’s dream location.
235 West 120th Street includes soaring 12-foot ceilings on the parlor floor, a private entrance with full patio and garden on the first level, a private terrace on the third floor, and a spacious, sun-filled fourth floor.
Wide-plank hardwood floors are throughout the building, as well as extra-large double-pane windows, modern finishes, and central heating and air conditioning.
Currently configured as four loft-like, full-floor homes, it invites imagination. A solid investment property in its current multi-family configuration.
It is also a perfect property if you’d like to enjoy Brownstone living, while owning your own income-producing building to create a brownstone home of your own that enjoys both short and long-term investment benefits.
Already sizeable, at more than 4,000 sq ft, there are expansion opportunities: adding a roofdeck with an additional floor suits your appreciation for skyline views, adding a recreation room for family space within the existing plan, or expanding the footprint with an extension on the large 1,700 sq ft lot. The building is also perfectly suited for co-op or condo conversion, with each unit already independently metered for both gas and electric.
The building is outfitted with four rooftop well maintained HVAC units, an interior fire sprinkler system, and modern plumbing and electrical throughout. The basement currently includes four private storage units as well as laundry area.
At the intersection of St. Nicholas Avenue and Adam Clayton Powell, 235 West 120th is nearby Morningside Park dog runs, multiple express subway lines, and surrounded by the exciting restaurants and atmosphere that make this part of Harlem everyone’s dream location.
Amenities
Sprinkler System; Garden; Laundry Room; Roof Deck; Private Storage;
- Patio
- Private Garden
- Terrace
- Garden
- Laundry Room
- Roof Deck
- Voice Intercom
- Walk-up
Neighborhood
More listings: 

RLS Data display by Nest Seekers LLC.
All information furnished regarding property for sale, rental or financing is from sources deemed reliable, but no warranty or representation is made as to the accuracy thereof and same is submitted subject to errors, omissions, change of price, rental or other conditions, prior sale, lease or financing or withdrawal without notice. International currency conversions where shown are estimates based on recent exchange rates and are not official asking prices.
All dimensions are approximate. For exact dimensions, you must hire your own architect or engineer.
