Property
| Ownership: | Multi-Family |
|---|---|
| Rooms: | 20 |
| Bedrooms: | Studio |
| Pets: | Pets Unknown |
Financials
A WEST VILLAGE TOWNHOUSE ON BILLIONAIRE'S ROW FOR UNDER 15M !
Description
A WEST VILLAGE TOWNHOUSE ON BILLIONAIRE'S ROW FOR UNDER $15M!
Bring your architect, your designer and your imagination to transform this beauty into your dream home on one of the most desirable, prestigious blocks in New York City.
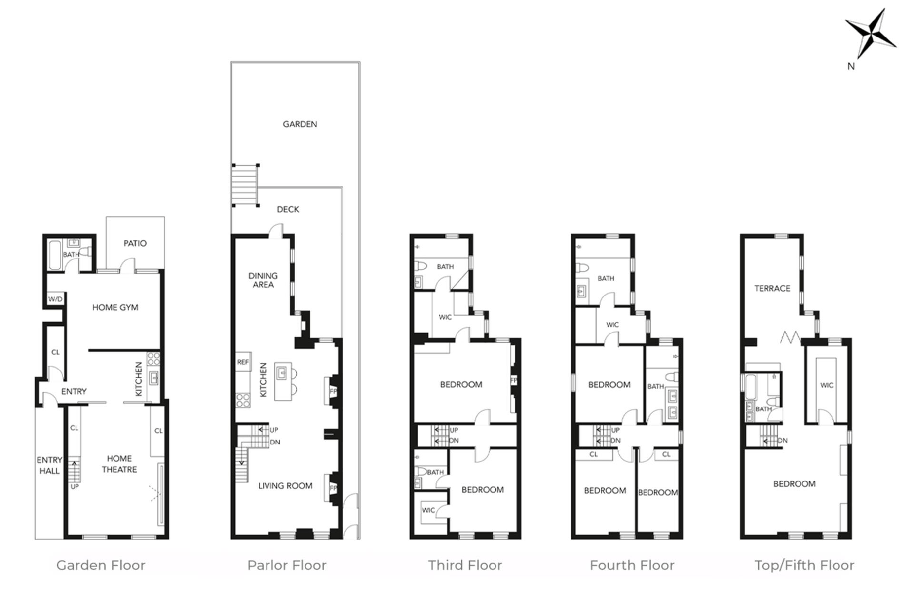
Named after its builder and first occupant, Lavinius C. Heroy, a master craftsman/sashmaker, The Heroy House is stunning in its original shape and form. But you can bring it up to the 21st century by exploring its unique layout and copious light. Your architect, your designer, and your imagination will have free reign to transform this 5-story, 21-foot wide building.
What you'll have in your toolbox as you start to dream:
Over 5100 Square Feet of Living Space (with some room to build);
Three Units that easily convert to a single-family or a single-family with separate garden apartment
Five Full Floors
Three Exposures on the garden, parlor and floor above the parlor.
Four Exposures on the 4th floor, and three exposures plus a skylight on the top floor and 32 windows!
A 3-foot horsewalk/alleyway (providing that 3rd exposure) allowing for private, secure access to your South-facing garden
Original detail - fireplaces, moldings, wide-plank floors, floor-to-ceiling windows, pocket doors, tiled entryway, stunning pre-modern lintels, an elegant but understated facade. original ceiling moldings and medallions, exposed beams and exposed brick and more
One of the most prestigious and desirable addresses in New York City
Now is the time!
This beauty is priced to sell at $14,999,000.
Our exclusive.
Viewed by Appointment Only
some of the photos throughout are VIRTUALLY RENDERED
Amenities
- Basement
- Garden
- Roof Deck
- Voice Intercom
- Walk-up
Neighborhood

RLS Data display by Nest Seekers LLC.
All information furnished regarding property for sale, rental or financing is from sources deemed reliable, but no warranty or representation is made as to the accuracy thereof and same is submitted subject to errors, omissions, change of price, rental or other conditions, prior sale, lease or financing or withdrawal without notice. International currency conversions where shown are estimates based on recent exchange rates and are not official asking prices.
All dimensions are approximate. For exact dimensions, you must hire your own architect or engineer.