Property
| Ownership: | Multi-Family |
|---|---|
| Rooms: | 20 |
| Bedrooms: | 2 BR |
| Bathrooms: | 1½ |
| Pets: | Pets Unknown |
Financials
Price:$8,100,000
Real estate tax:$162,864
Listing Courtesy of Compass
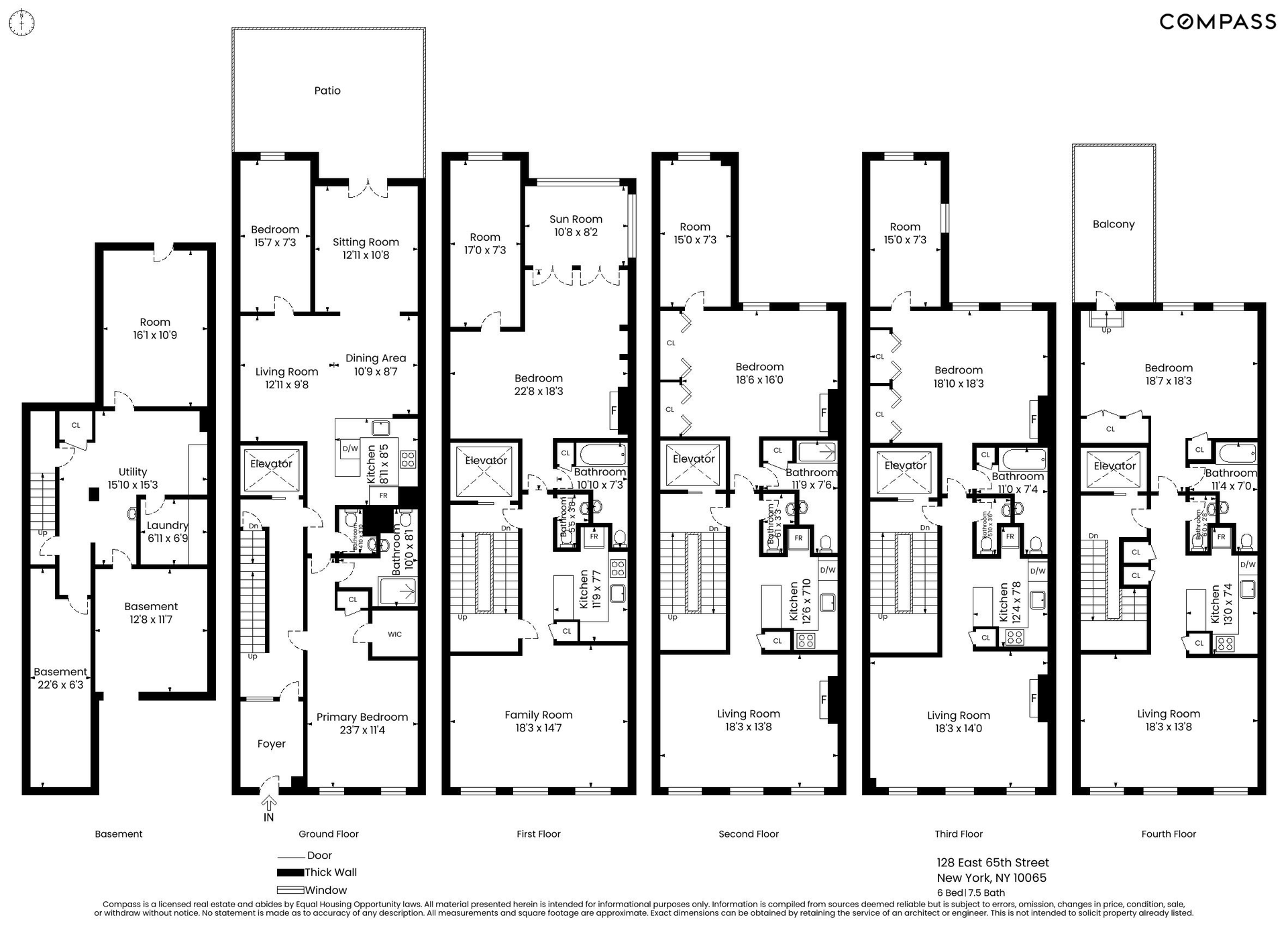
This 20 wide classic Brownstone is located on a beautiful townhouse block between Park Avenue and Lexington Avenue featuring 5 full floor, 100 free market apartments, each with 1.
Description
This 20’ wide classic Brownstone is located on a beautiful townhouse block between Park Avenue and Lexington Avenue featuring 5 full-floor, 100% free-market apartments, each with 1.5 baths serviced by a large elevator. The building is approximately 6,000 sq ft. and backs onto low townhouses, allowing the sun to pour through the house. The property has been meticulously maintained, and each apartment has undergone multiple renovations with each tenant turnover.
The property features a unique opportunity for investors seeking a turn-key, fully leased property in a AAA location to continue using as is or convert to single-family, as all apartments are short-term. With full floor apartment layouts and attractive rent basis, ownership has enjoyed minimal loss factor with quick tenant turnover. Laundry Room in Basement.
128 East 65th Street offers potential investors an opportunity to capitalize on future rent upside in a beautifully renovated property in Lenox Hill. Please contact the agent for listing set up.
Amenities
Laundry Room; Common Storage;
- Elevator
- Laundry Room
- Voice Intercom
Neighborhood
More listings:

RLS Data display by Nest Seekers LLC.
All information furnished regarding property for sale, rental or financing is from sources deemed reliable, but no warranty or representation is made as to the accuracy thereof and same is submitted subject to errors, omissions, change of price, rental or other conditions, prior sale, lease or financing or withdrawal without notice. International currency conversions where shown are estimates based on recent exchange rates and are not official asking prices.
All dimensions are approximate. For exact dimensions, you must hire your own architect or engineer.