Property
| Ownership: | Co-op |
|---|---|
| Rooms: | 6 |
| Bedrooms: | 3 BR |
| Bathrooms: | 3 |
| Pets: | No Pets Allowed |
Financials
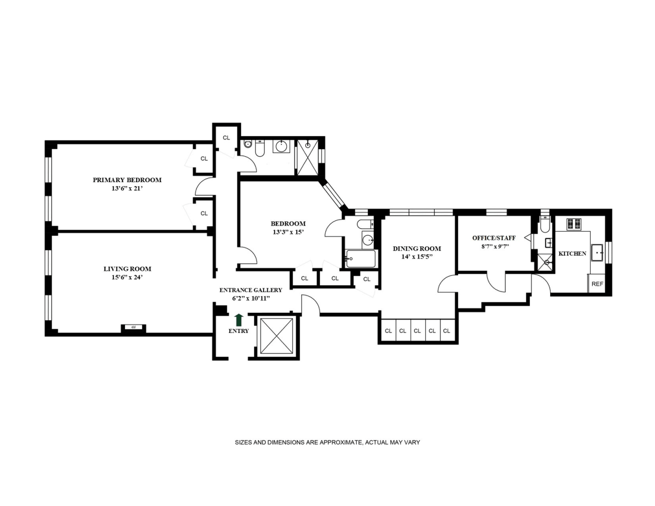
RENOVATED HIGH FLOOR PREWAR TWO BEDROOM OFF MADISON AVENUE A semi private elevator landing opens onto a twelve foot entrance gallery leading to the 24 foot living room with high ...
Description
RENOVATED HIGH FLOOR PREWAR
TWO BEDROOM OFF MADISON AVENUE
A semi-private elevator landing opens onto a twelve foot entrance gallery leading to the 24 foot living room with high ceilings and an elegant fireplace and sunny south exposures. The gracious dining room has a wall of windows and an entire wall of built in cabinets. The windowed renovated kitchen has new Miele appliances, ceiling height lacquer cabinets and plentiful storage. There is also an office/staff room with a full bath.
The oversized 21 foot primary bedroom has three closets and a windowed ensuite bath with marble and ceramic tile, Kohler fixtures and glass enclosed shower. A second bedroom is generously sized and includes two large closets and a windowed ensuite bath.
This classic six with three sunny exposures and flexible layout has maintained all of its original prewar details including high ceilings, oversized rooms and elegant moldings. Additional features include a full renovated bath that serves as a powder room, through-the-wall air conditioning and a washer/dryer.
This landmarked white-glove, full-service prewar cooperative was built in 1922 by renowned architect George F. Pelham. The lobby was recently redone and building amenities include bike room, laundry room, and private storage. Located in the heart of the Upper East Side steps from Bergdorf Goodman, Bloomingdales and Saks, restaurants including Daniel and Polo Bar, as well as museums, Central Park and mass transit.
Amenities
- Washer / Dryer
- Elevator
- Full time doorman
- Laundry Room
Neighborhood

RLS Data display by Nest Seekers LLC.
All information furnished regarding property for sale, rental or financing is from sources deemed reliable, but no warranty or representation is made as to the accuracy thereof and same is submitted subject to errors, omissions, change of price, rental or other conditions, prior sale, lease or financing or withdrawal without notice. International currency conversions where shown are estimates based on recent exchange rates and are not official asking prices.
All dimensions are approximate. For exact dimensions, you must hire your own architect or engineer.