Property
| Ownership: | Co-op | 
|---|---|
| Rooms: | 5 | 
| Bedrooms: | 1 BR | 
| Bathrooms: | 1½ | 
| Pets: | Pets Allowed | 
Financials
          Listing Courtesy of Brown Harris Stevens Residential Sales LLC
      
This pure and authentic artist loft is located right in the heart of Noho's Historic District and offers a spacious flexible layout with three separate entrances, three bright exposures and ...
Description
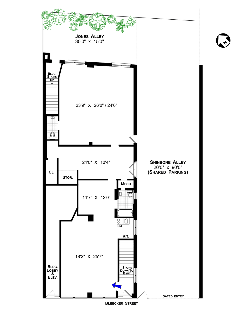
This pure and authentic artist loft is located right in the heart of Noho's Historic District and offers a spacious flexible layout with three separate entrances, three bright exposures and a myriad of lifestyle possibilities. Currently owned and occupied  by a renowned photographer, this unusual full-floor loft is ideal as a working studio, gallery space, or can be completely transformed into a dramatic luxury residence. A front entrance leads to a sunny south-facing salon with 11 foot ceilings, kitchenette,  full bathroom and bright exposures overlooking historic Bleecker Street. The back portion of the space is set up as a large corner artist studio with a separate side entrance, half-bath and leafy garden views overlooking a charming cobblestoned courtyard.  This unique and versatile property captures the true spirit of a bygone era and offers today's buyer an opportunity to put their own personal stamp on a legendary slice of Downtown New York!
Built in 1822 as a Federal era residence and later altered to a 4-story factory, the building converted to a live/work cooperative in 1985 and offers a visiting superintendent and shared access to a locked gated parking area on historic Shinbone Alley. Adding to the allure, is the prime Noho location, putting you in one of downtown's most vibrant and eclectic neighborhoods with great restaurants, cafes, small boutiques and all major subway lines right at your doorstep. A truly unique opportunity for a creative buyer with vision!
Shown by appointment
Built in 1822 as a Federal era residence and later altered to a 4-story factory, the building converted to a live/work cooperative in 1985 and offers a visiting superintendent and shared access to a locked gated parking area on historic Shinbone Alley. Adding to the allure, is the prime Noho location, putting you in one of downtown's most vibrant and eclectic neighborhoods with great restaurants, cafes, small boutiques and all major subway lines right at your doorstep. A truly unique opportunity for a creative buyer with vision!
Shown by appointment
Amenities
Bike Room; Garage;
- Basement
- Elevator
- Garage
- Voice Intercom
Neighborhood
More listings: 

RLS Data display by Nest Seekers LLC.
All information furnished regarding property for sale, rental or financing is from sources deemed reliable, but no warranty or representation is made as to the accuracy thereof and same is submitted subject to errors, omissions, change of price, rental or other conditions, prior sale, lease or financing or withdrawal without notice. International currency conversions where shown are estimates based on recent exchange rates and are not official asking prices.
All dimensions are approximate. For exact dimensions, you must hire your own architect or engineer.
