Property
Ownership: | For Sale |
---|---|
Type: | Unknown |
Bedrooms: | Studio |
Bathrooms: | 2 |
Pets: | Pets No |
FinancialsPrice:C14,000,000($10,036,320)(€8,547,004)
Price:C14,000,000
($10,036,320)
(€8,547,004)
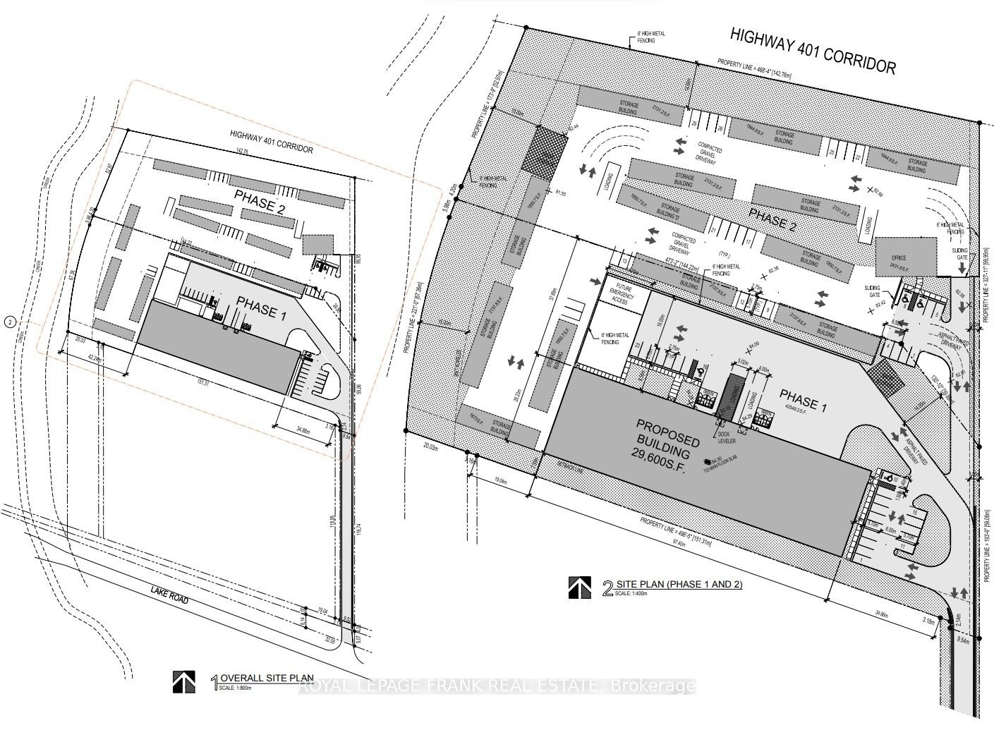
DescriptionPre-Construction Building Offered AND excess Acreage for future Phase 2 development and/or storage and parking. One-of-a-kind Opportunity for End-Users! NEWEST Free Standing Building in Clarington offered for sale - Unbeatable HWY 401 Frontage + Visibility! Great Access w/ Future Off-Ramp Only 100m Away! High 30+ ft Clear Height, Radiant Heading: Great Building Complete with Drive-In AND Truck Level Loading Doors. Great Choice for ANY Industrial User ESPECIALLY Transportation + Warehousing + Engineering / Nuclear Industry Businesses. Clarington SMR Development Only 4km Away Promises 18k Jobs Over Construction! Tons of Residential Growth Locally Promises Large & Deep Labor pool. Bowmanville is Undervalued! It's The Place to Be for Your Business!Amenities- Major Highway
Pre-Construction Building Offered AND excess Acreage for future Phase 2 development and/or storage and parking. One-of-a-kind Opportunity for End-Users! NEWEST Free Standing Building in Clarington offered for sale - Unbeatable HWY 401 Frontage + Visibility! Great Access w/ Future Off-Ramp Only 100m Away! High 30+ ft Clear Height, Radiant Heading: Great Building Complete with Drive-In AND Truck Level Loading Doors. Great Choice for ANY Industrial User ESPECIALLY Transportation + Warehousing + Engineering / Nuclear Industry Businesses. Clarington SMR Development Only 4km Away Promises 18k Jobs Over Construction! Tons of Residential Growth Locally Promises Large & Deep Labor pool. Bowmanville is Undervalued! It's The Place to Be for Your Business!
- Major Highway
Pre Construction Building Offered AND excess Acreage for future Phase 2 development and or storage and parking.
DescriptionPre-Construction Building Offered AND excess Acreage for future Phase 2 development and/or storage and parking. One-of-a-kind Opportunity for End-Users! NEWEST Free Standing Building in Clarington offered for sale - Unbeatable HWY 401 Frontage + Visibility! Great Access w/ Future Off-Ramp Only 100m Away! High 30+ ft Clear Height, Radiant Heading: Great Building Complete with Drive-In AND Truck Level Loading Doors. Great Choice for ANY Industrial User ESPECIALLY Transportation + Warehousing + Engineering / Nuclear Industry Businesses. Clarington SMR Development Only 4km Away Promises 18k Jobs Over Construction! Tons of Residential Growth Locally Promises Large & Deep Labor pool. Bowmanville is Undervalued! It's The Place to Be for Your Business!Amenities- Major Highway
Pre-Construction Building Offered AND excess Acreage for future Phase 2 development and/or storage and parking. One-of-a-kind Opportunity for End-Users! NEWEST Free Standing Building in Clarington offered for sale - Unbeatable HWY 401 Frontage + Visibility! Great Access w/ Future Off-Ramp Only 100m Away! High 30+ ft Clear Height, Radiant Heading: Great Building Complete with Drive-In AND Truck Level Loading Doors. Great Choice for ANY Industrial User ESPECIALLY Transportation + Warehousing + Engineering / Nuclear Industry Businesses. Clarington SMR Development Only 4km Away Promises 18k Jobs Over Construction! Tons of Residential Growth Locally Promises Large & Deep Labor pool. Bowmanville is Undervalued! It's The Place to Be for Your Business!
- Major Highway
All information furnished regarding property for sale, rental or financing is from sources deemed reliable, but no warranty or representation is made as to the accuracy thereof and same is submitted subject to errors, omissions, change of price, rental or other conditions, prior sale, lease or financing or withdrawal without notice. International currency conversions where shown are estimates based on recent exchange rates and are not official asking prices.
All dimensions are approximate. For exact dimensions, you must hire your own architect or engineer.