Property
Ownership: | For Sale |
---|---|
Type: | Single Family |
Rooms: | Unknown |
Bedrooms: | 4 BR |
Bathrooms: | 2½ |
Pets: | Pets No |
Lot Size: | 0.83 Acres |
Financials
Listing Courtesy of Daniel Gale Sothebys Intl Rlty
Welcome to your own slice of paradise in the coveted Angel Shores beach community.

- View of front facade featuring roof with shingles and a front yard
- Entrance to property featuring covered wrap arpund porch
- View of pool featuring a water slide, a patio, and a pool with connected hot tub
- Rear view of property featuring roof with shingles, a patio, and an outdoor pool
- Outdoor pool featuring a water slide, in-ground hot tub, and a waterfall
- Back of house with roof with shingles, a chimney, and a deck
- Wooden deck with outdoor dining space, outdoor lounge area, and view of the backyard
- Wooden terrace featuring outdoor dining area, outdoor lounge area, view of backyard, and grilling area
- View of swimming pool featuring a deck, a patio area, a water slide, and view of gardens
- Kitchen featuring appliances with stainless steel finishes, healthy amount of natural light, cabinetry, ornamental molding, and recessed lighting
- Kitchen featuring stainless steel appliances, granite countertops, cabinetry, light tile patterned floors, tasteful backsplash, and crown molding
- Kitchen with appliances with stainless steel finishes, a sink, cabinets, backsplash, granite countertops, and ornamental molding
- Dining space with crown molding, light tile patterned floors, a gass fireplace, a ceiling fan, and baseboards
- Living area with ceiling fan, light wood-type flooring, ornamental molding, and recessed lighting
- Living area featuring a ceiling fan, light wood finished floors, crown molding, and a fireplace
- Living Room/Den with light wood floors, pool table, ornamental molding, and recessed lighting
- Home office featuring light wood finished floors, a chandelier, and crown molding.
- Half Bathroom with toilet and vanity.
- Corridor featuring an upstairs landing, a chandelier, plenty of natural light, light wood-style floors, and crown molding
- Bedroom with carpet floors, large walk in closet, and a ceiling fan
- Sitting area featuring plenty amount of natural light
- Carpeted bedroom featuring, lofted ceiling, large walk in closet,and a ceiling fan
- Bathroom featuring a double sink vanity, a jetted tub, toilet, and marble finish flooring
- Full bathroom with double sink vanity, a shower, a whirlpool tub, and recessed lighting
- 2nd Bedroom featuring light carpet, multiple windows, and a large closet
- 3rd Bedroom with light colored carpet, multiple windows, and a large closet.
- 4th Bedroom with light carpet and a large closet, and multiple windows
- Full bathroom with toilet, vanity, and tub
- First Floor Laundry room with washing machine and dryer, light tile patterned floors, and a pantry
- Aerial view of property's location featuring a pool and property parcel outlined
- View of Neighborhood beach.
- Exterior view of local beach
- Aerial view of residential area with a large body of water
- View of attached 2 car plus garage
- View of back yard and gardens
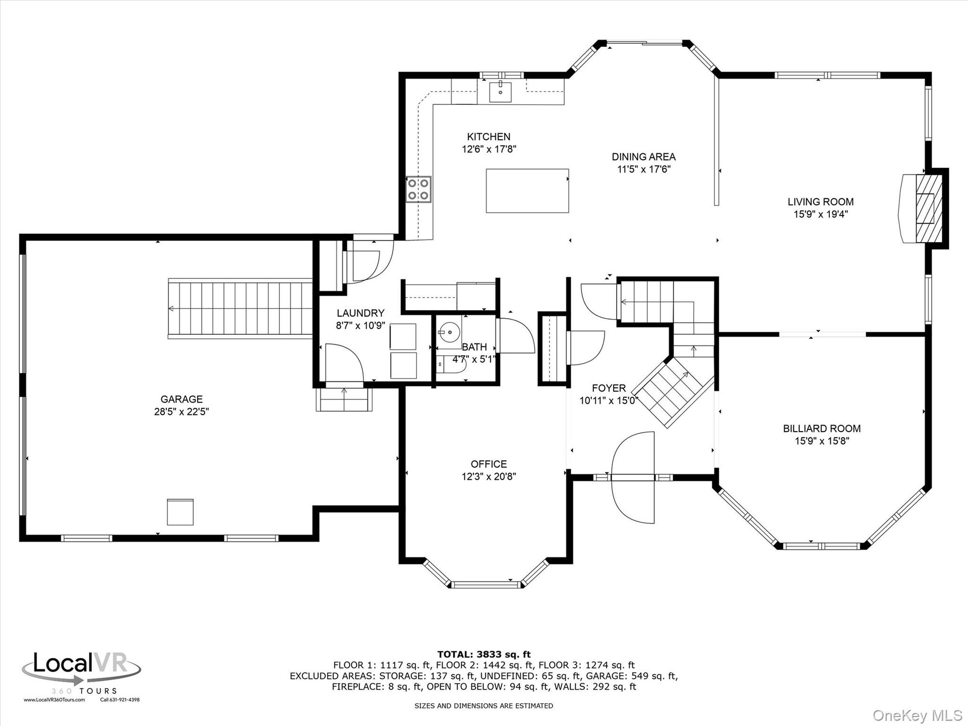
- 1st floor plan
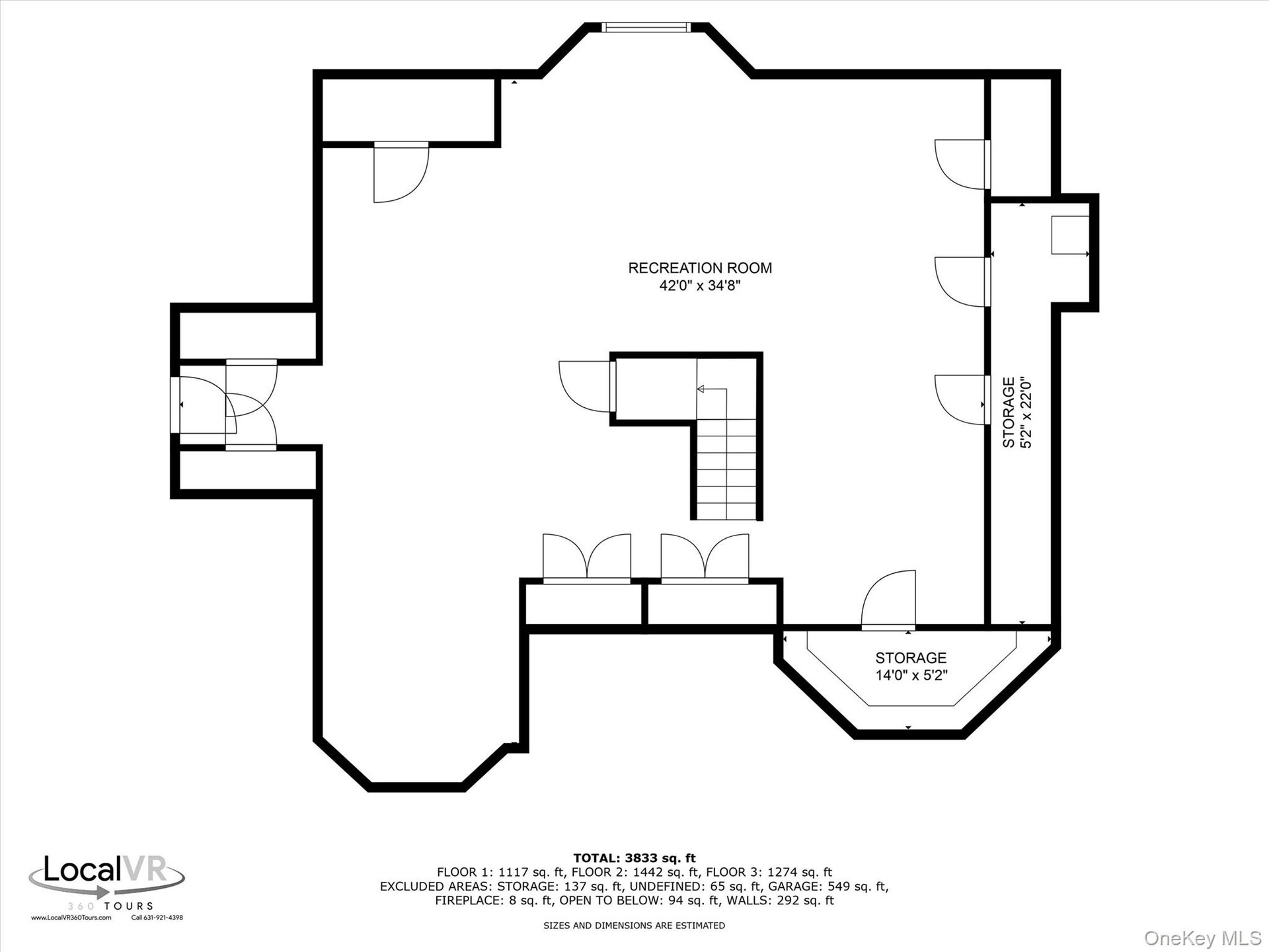
- 2nd floorplan
- Basement with tons of storage.
Description
Welcome to your own slice of paradise in the coveted Angel Shores beach community. This beautifully crafted home offers deeded bay beach access at the end of the road, and a spectacular backyard retreat—complete with vibrant gardens, an inviting inground pool, hot tub, and tranquil waterfall. Whether you're entertaining guests or enjoying a quiet evening at home, this outdoor space delivers the ultimate in North Fork living.
Inside, the heart of the home is a spacious eat-in kitchen with center island that opens to a formal dining area, ideal for gatherings of any size. The main level also features an adjacent family room with a gas fireplace, a dedicated home office, and a living room—each thoughtfully designed with soaring ceilings and detailed crown moldings for a touch of elegance throughout.
The home features four spacious bedrooms and two and a half baths, including a generously sized primary en-suite that serves as a peaceful retreat. Three additional large bedrooms provide comfortable accommodations for family or guests.
Enjoy effortless indoor-outdoor living with a classic wrap-around front porch to relax and sip lemonade and a large back deck that flows into the lush, private backyard oasis.
Whether you're seeking a year-round residence or a seasonal escape, this exceptional property invites you to unpack and start enjoying all that the North Fork lifestyle has to offer.
Amenities
- Bath
- Cable - Available
- Chefs Kitchen
- Crown Molding
- Dishwasher
- Double Vanity
- Dryer
- Eat-in Kitchen
- Entrance Foyer
- Formal Dining
- Gas Cooktop
- Granite Counters
- High ceiling
- Kitchen Island
- Open Floorplan
- Open Kitchen
- Oven
- Pantry
- Phone Available
- Primary Bathroom
- Recessed Lighting
- Refrigerator
- Security System
- Soaking Tub
- Stainless Steel Appliance(s)
- Storage
- Trash Collection Private
- Walk-In Closet(s)
- Washer
- Water Available
- Wood Burning

All information furnished regarding property for sale, rental or financing is from sources deemed reliable, but no warranty or representation is made as to the accuracy thereof and same is submitted subject to errors, omissions, change of price, rental or other conditions, prior sale, lease or financing or withdrawal without notice. International currency conversions where shown are estimates based on recent exchange rates and are not official asking prices.
All dimensions are approximate. For exact dimensions, you must hire your own architect or engineer.