Lambton Shores N0M 1T0
Canada

Property

Ownership: For Sale
Type: Unknown
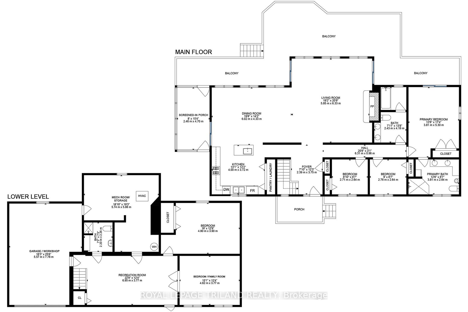
Bedrooms: 4 BR
Bathrooms: 3
Pets: No Pets Allowed

Financials

Price:C3,500,000
($2,516,360)
(€2,168,005)
Annual Taxes:C24,381
505 Park Ave, New York, NY 10022

GRAND BEND PREMIUM LAKEFRONT IN THE MOST SOUGHT AFTER amp ; EXCLUSIVE PRIVATE BEACH COMMUNITY IN LAKE HURON 108 FT OF PRIVATELY OWNED BEACH FRONTAGE BEACH O' PINES GATED SUBDIVISION ...

Description

GRAND BEND PREMIUM LAKEFRONT IN THE MOST SOUGHT AFTER & EXCLUSIVE PRIVATE BEACH COMMUNITY IN LAKE HURON | 108 FT OF PRIVATELY OWNED BEACH FRONTAGE | BEACH O' PINES GATED SUBDIVISION BORDERING THE LONGEST CONTINUOUS SANDY BEACH WALK IN THE GREAT LAKES | ROCK SOLID 4 SEASON CUSTOM BEACH HOUSE! Come take a walk through paradise along an 11+ KM stretch of pure golden sand & experience true waterfront magic down the Pinery Park's undeveloped shoreline. This location is truly priceless. This location is the one & only Beach O' Pines private beach community at the edge of the Pinery! For lakefront in Lake Huron, this is as good as it gets! In Beach O' Pines, you can keep your boat or jet skis right on your privately owned beach in front of this 4+1 bedroom 3 full bathroom custom home offering nearly 3200 SQ FT of finished living space w/ lots of additional room for storage + an oversized 2.5 car insulated garage. You can see those sparkling Huron waters from the minute you walk through the main door & into the open-concept vaulted & beamed great room w/ wall to wall windows & a field stone fireplace. The bright & spacious main level is in great shape w/ a very generous kitchen, oversized dining area for entertaining & large family gatherings, a superb lakefront master suite w/ ensuite bath + 2 more generous bedrooms, a 2nd main level full bath, & main level laundry. The home is ready for full time family enjoyment on Day 1, but for buyers considering a few updates, this extremely well-built house provides an excellent template! Even the walk-out lower level will surprise you, w/ large principal rooms including another bedroom, a potential 5th bedroom or guest suite, a 3rd full bath, & workshop space that connects to the oversized garage. The lot itself is worth well in excess of $3 mil w/o the house offering over 3/4 of an acre of pure lakefront bliss, but the quality of this home, as-is, w/ updated roof & decks, 400 AMP electrical, etc. truly completes the package!

Amenities

  • Alarm system
  • Beach
  • Beach Front
  • Carbon Monoxide Detectors
  • Central Vacuum
  • Deck
  • Fishing
  • In-Law Capability
  • Lake
  • Landscaped
  • Other
  • Porch
  • Primary Bedroom - Main Floor
  • Privacy
  • Smoke Detector
  • Stairs to Waterfront
  • Water
  • Waterfront-Deeded
  • Water Heater Owned
  • Wood
  • Year Round Living

All information furnished regarding property for sale, rental or financing is from sources deemed reliable, but no warranty or representation is made as to the accuracy thereof and same is submitted subject to errors, omissions, change of price, rental or other conditions, prior sale, lease or financing or withdrawal without notice. International currency conversions where shown are estimates based on recent exchange rates and are not official asking prices.

All dimensions are approximate. For exact dimensions, you must hire your own architect or engineer.