Property
Ownership: | For Sale |
---|---|
Type: | Unknown |
Bedrooms: | 2 BR |
Bathrooms: | 2 |
Pets: | Pets Allowed |
FinancialsPrice:C3,799($2,724)(€2,334)
Price:C3,799
($2,724)
(€2,334)
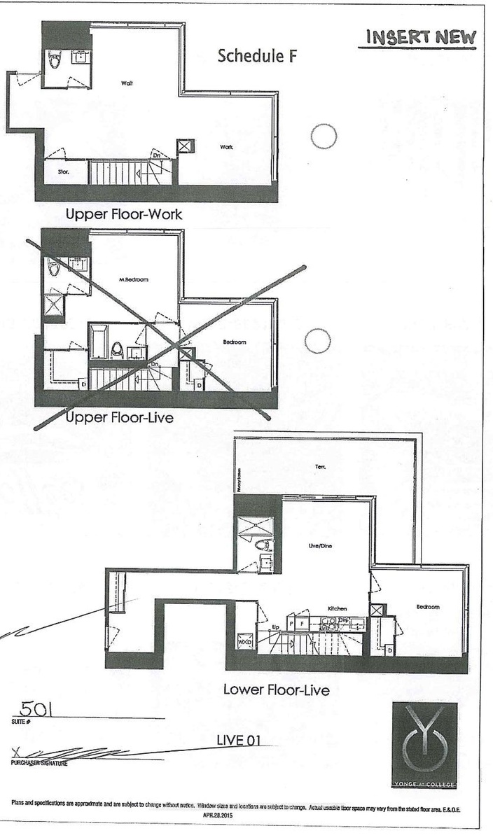
DescriptionThis unique and adaptable Live/Work space is perfect for those looking for a home that also accommodates a business or creative space. Featuring two self-contained units connected by an interior staircase (with lockable separation), this setup offers maximum versatility.The upper level is ideal for a home office or studio, with its own separate entrance and elevator accessperfect for those who need a dedicated space for work or personal projects.The lower level offers a spacious, private residential suite, designed for comfort and modern living, complete with its own separate entrance for added privacy.Lease this one-of-a-kind space that seamlessly blends your business and personal life. Located in a central, prestigious area with excellent visibility, this rare leasing opportunity puts you just steps away from College subway station, offering both convenience and a premium downtown lifestyle.Amenities- Carpet Free
This unique and adaptable Live/Work space is perfect for those looking for a home that also accommodates a business or creative space. Featuring two self-contained units connected by an interior staircase (with lockable separation), this setup offers maximum versatility.The upper level is ideal for a home office or studio, with its own separate entrance and elevator accessperfect for those who need a dedicated space for work or personal projects.The lower level offers a spacious, private residential suite, designed for comfort and modern living, complete with its own separate entrance for added privacy.Lease this one-of-a-kind space that seamlessly blends your business and personal life. Located in a central, prestigious area with excellent visibility, this rare leasing opportunity puts you just steps away from College subway station, offering both convenience and a premium downtown lifestyle.
- Carpet Free
This unique and adaptable Live Work space is perfect for those looking for a home that also accommodates a business or creative space.
DescriptionThis unique and adaptable Live/Work space is perfect for those looking for a home that also accommodates a business or creative space. Featuring two self-contained units connected by an interior staircase (with lockable separation), this setup offers maximum versatility.The upper level is ideal for a home office or studio, with its own separate entrance and elevator accessperfect for those who need a dedicated space for work or personal projects.The lower level offers a spacious, private residential suite, designed for comfort and modern living, complete with its own separate entrance for added privacy.Lease this one-of-a-kind space that seamlessly blends your business and personal life. Located in a central, prestigious area with excellent visibility, this rare leasing opportunity puts you just steps away from College subway station, offering both convenience and a premium downtown lifestyle.Amenities- Carpet Free
This unique and adaptable Live/Work space is perfect for those looking for a home that also accommodates a business or creative space. Featuring two self-contained units connected by an interior staircase (with lockable separation), this setup offers maximum versatility.The upper level is ideal for a home office or studio, with its own separate entrance and elevator accessperfect for those who need a dedicated space for work or personal projects.The lower level offers a spacious, private residential suite, designed for comfort and modern living, complete with its own separate entrance for added privacy.Lease this one-of-a-kind space that seamlessly blends your business and personal life. Located in a central, prestigious area with excellent visibility, this rare leasing opportunity puts you just steps away from College subway station, offering both convenience and a premium downtown lifestyle.
- Carpet Free
All information furnished regarding property for sale, rental or financing is from sources deemed reliable, but no warranty or representation is made as to the accuracy thereof and same is submitted subject to errors, omissions, change of price, rental or other conditions, prior sale, lease or financing or withdrawal without notice. International currency conversions where shown are estimates based on recent exchange rates and are not official asking prices.
All dimensions are approximate. For exact dimensions, you must hire your own architect or engineer.