Property
| Ownership: | For Sale |
|---|---|
| Type: | Single Family |
| Rooms: | 9 |
| Bedrooms: | 4 BR |
| Bathrooms: | 2½ |
| Pets: | No Pets Allowed |
| Lot Size: | 0.38 Acres |
Financials
Price:$1,249,999
Listing Courtesy of Coldwell Banker American Homes
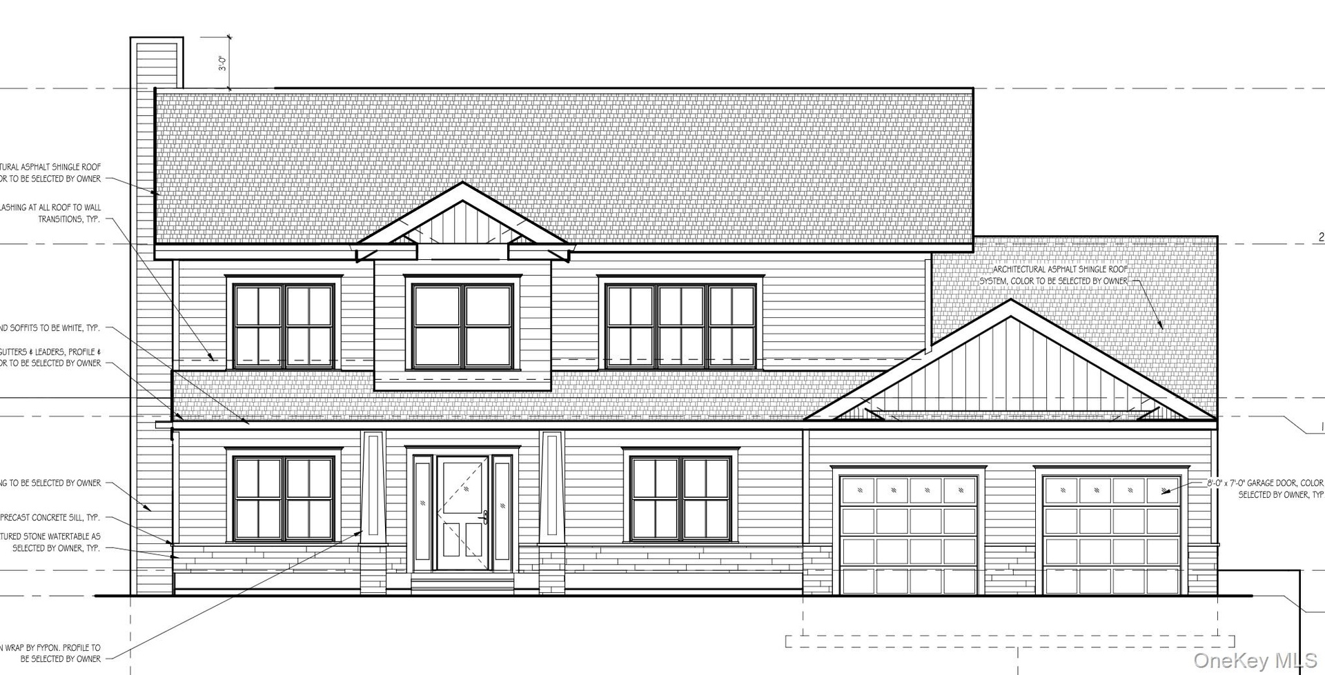
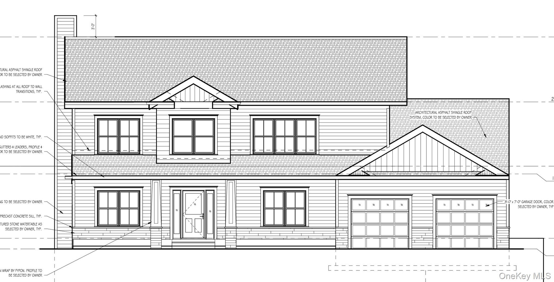
New Construction Colonial To Be Built.
Description
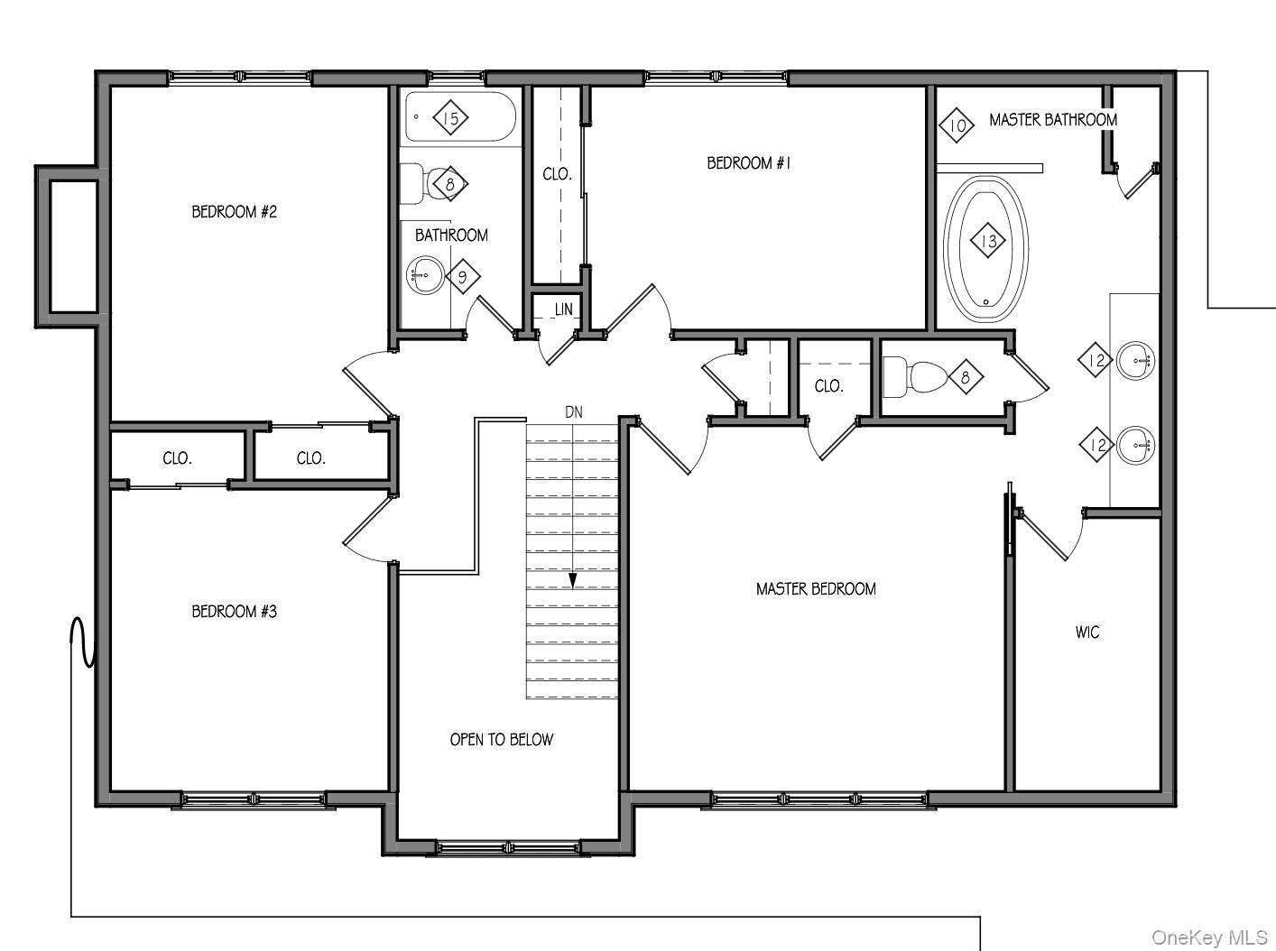
New Construction Colonial – To Be Built. 4 Bedrooms, 2.5 Bathrooms
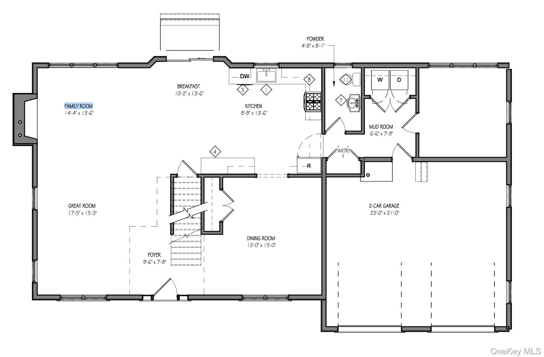
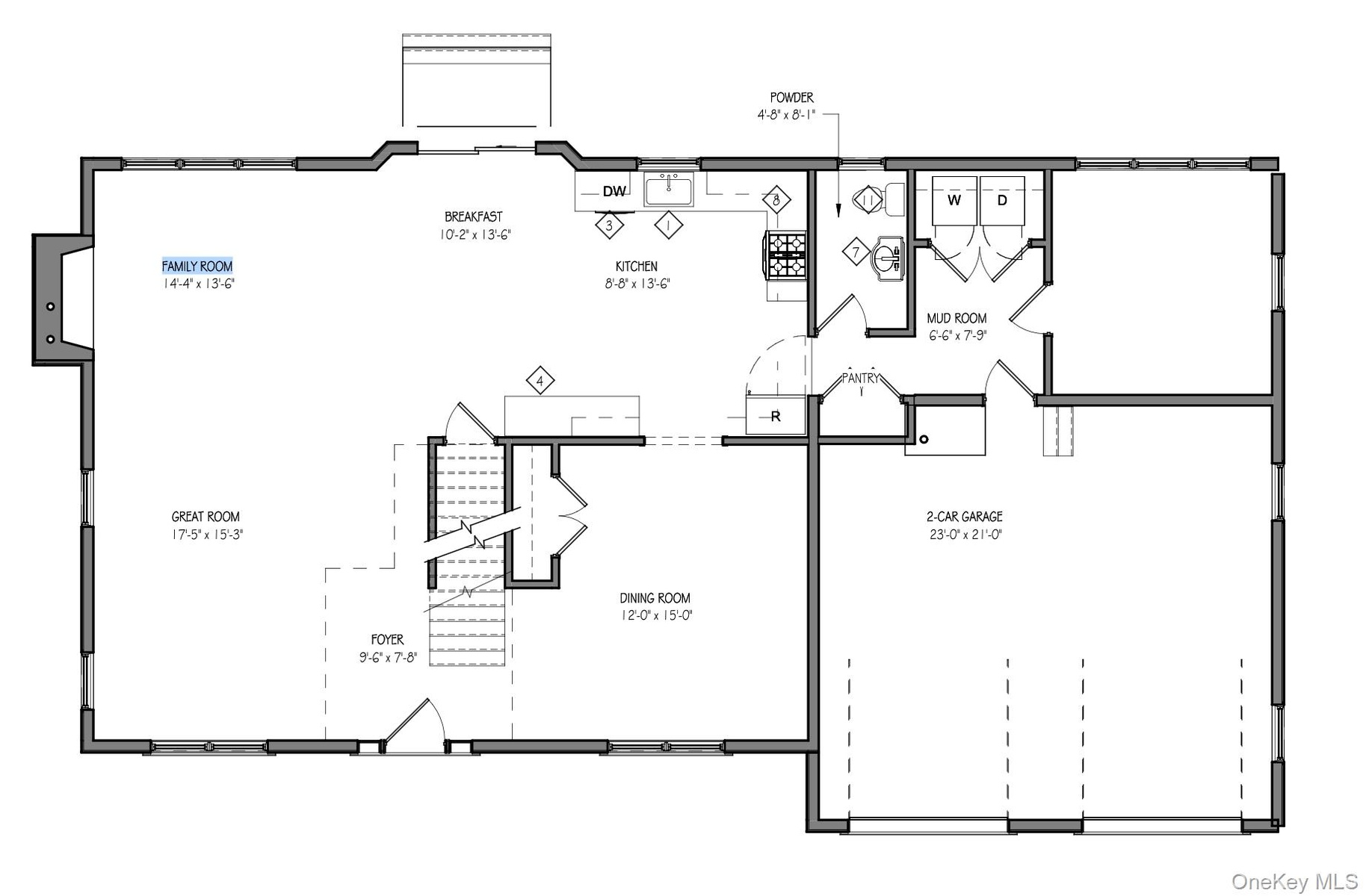
Incredible opportunity to build your dream home with an interest rate as low as 4.99%! This beautiful Colonial will feature four generously sized bedrooms, two and a half bathrooms, and an oversized attached garage with interior access.
Exterior features include architectural roof shingles with a 30-year guarantee, a blacktop driveway and walkway, a front porch with sidelights, and maintenance-free vinyl siding. Stone accents are available upon request. The home will also include aluminum gutters and leaders, exterior electrical outlets and hose bibs in the front and rear, a 6’ sliding glass door, and seeded front and rear yards.
Inside, the home offers 9-foot ceilings on the main level, 8-foot ceilings on the second floor and basement, and red oak hardwood flooring in the living room, family room, dining room, and upstairs hallway. The dining room is enhanced with a tray ceiling and crown molding. The kitchen and bathrooms will feature ceramic tile, while the bedrooms will have comfortable wall-to-wall carpeting with Hardwood Floor upgrade available. A 36” gas fireplace provides a cozy centerpiece in the main living space. Additional highlights include oak handrails with white balusters, recessed lighting (10 fixtures), and a choice of interior doors with colonial-style molding and baseboards.
Conveniences include hookups for a washer and dryer, two telephone outlets, two cable outlets, and a garage wired for a door opener. Benjamin Moore paint (two color choices) with white trim is included. Closet shelving is PVC-coated throughout, with optional upgrade packages available for the primary bedroom.
Don’t miss the chance to personalize your finishes and create a home tailored to your lifestyle. A rare new construction opportunity in a highly desirable area!
Amenities
- Chefs Kitchen
- Dishwasher
- Double Vanity
- Eat-in Kitchen
- Electricity Connected
- Entrance Foyer
- Formal Dining
- Gas
- Granite Counters
- High ceiling
- Kitchen Island
- Oven
- Primary Bathroom
- Rain Gutters
- Recessed Lighting
- Refrigerator
- Soaking Tub
- Tray Ceiling(s)
- Walk-In Closet(s)
- Washer/Dryer Hookup

All information furnished regarding property for sale, rental or financing is from sources deemed reliable, but no warranty or representation is made as to the accuracy thereof and same is submitted subject to errors, omissions, change of price, rental or other conditions, prior sale, lease or financing or withdrawal without notice. International currency conversions where shown are estimates based on recent exchange rates and are not official asking prices.
All dimensions are approximate. For exact dimensions, you must hire your own architect or engineer.