Property
| Type: | Unknown |
|---|---|
| Pets: | No Pets Allowed |
| Lot Size: | 0.98 Acres |
Financials
Rent:$6,999
Listing Courtesy of Rodeo Realty Inc
Welcome to 616 Chestnut Ridge Road !
Description
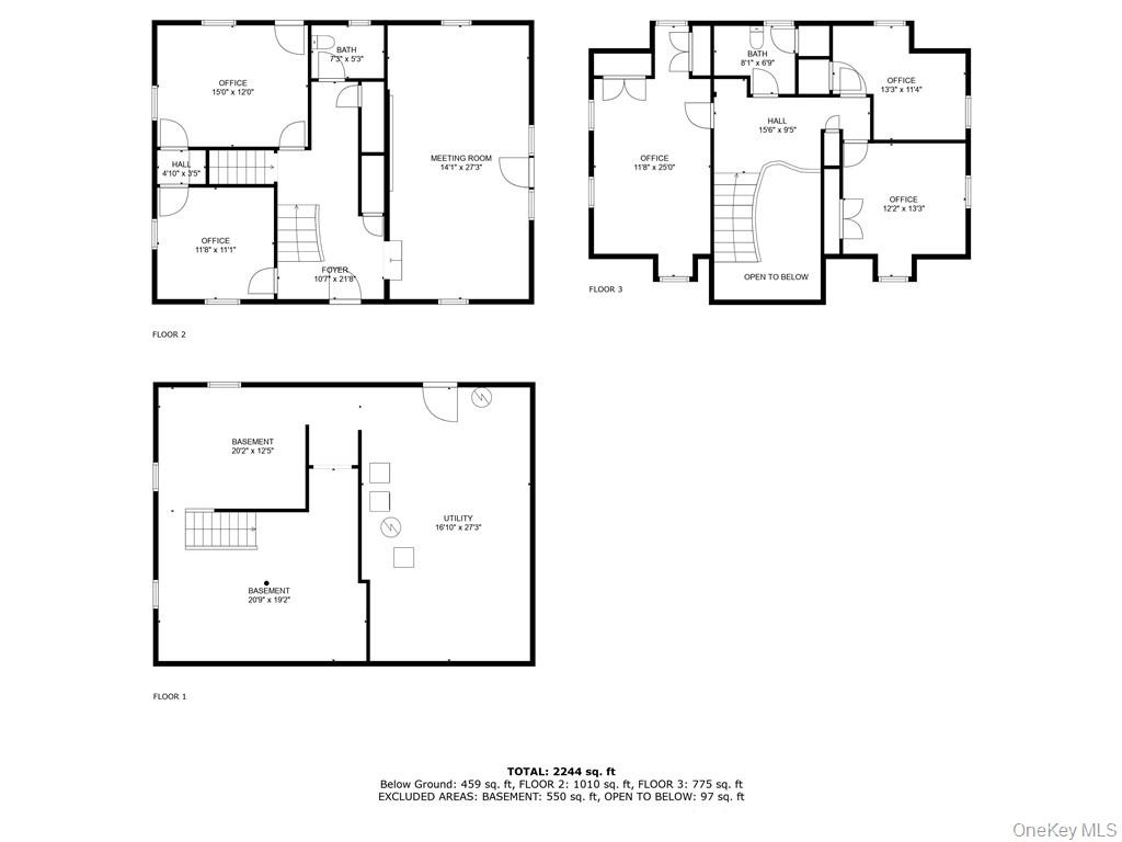
Welcome to 616 Chestnut Ridge Road! Sitting on nearly an acre of land, this spacious oversized Cape Cod home presents a range of unique advantages with its numerous amenities. Upon entering, you'll be captivated by the grand foyer and its eye-catching spiral staircase. On the right, you'll find a generously sized conference room with access to the side yard. Each of the five offices is private and thoughtfully designed to elevate your daily work experience. This property is perfect for professional offices, daycare centers, rehabilitation facilities, or any other venture you have in mind. Situated in a sought-after neighborhood, it boasts an unbeatable location near various office buildings, major shopping centers, banks, restaurants, and public transportation. With convenient access to the Garden State Parkway and the NY Thruway, your commutes will be a breeze. Don't miss out on this opportunity to watch your business thrive like never before – seize it before it's too late!
Amenities
- Accessible Approach with Ramp
- Bathrooms
- Electricity Connected
- Gas Water Heater
- Lobby
- Ramp

All information furnished regarding property for sale, rental or financing is from sources deemed reliable, but no warranty or representation is made as to the accuracy thereof and same is submitted subject to errors, omissions, change of price, rental or other conditions, prior sale, lease or financing or withdrawal without notice. International currency conversions where shown are estimates based on recent exchange rates and are not official asking prices.
All dimensions are approximate. For exact dimensions, you must hire your own architect or engineer.