Property
Ownership: | For Sale |
---|---|
Type: | Unknown |
Bedrooms: | Studio |
Pets: | Pets No |
FinancialsPrice:C11($8)(€7)
Price:C11
($8)
(€7)
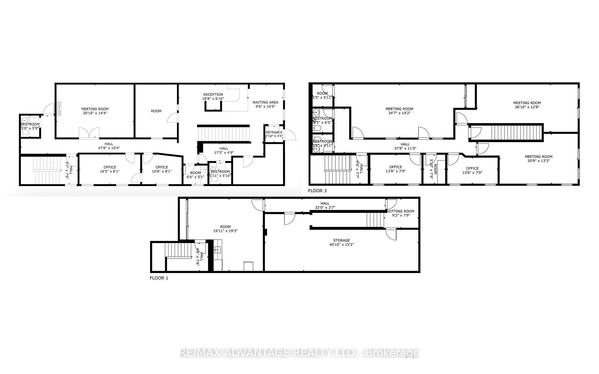
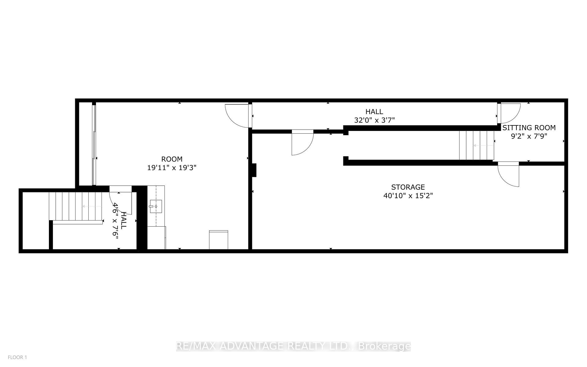
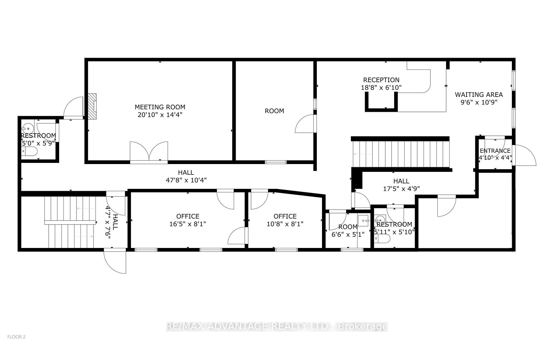
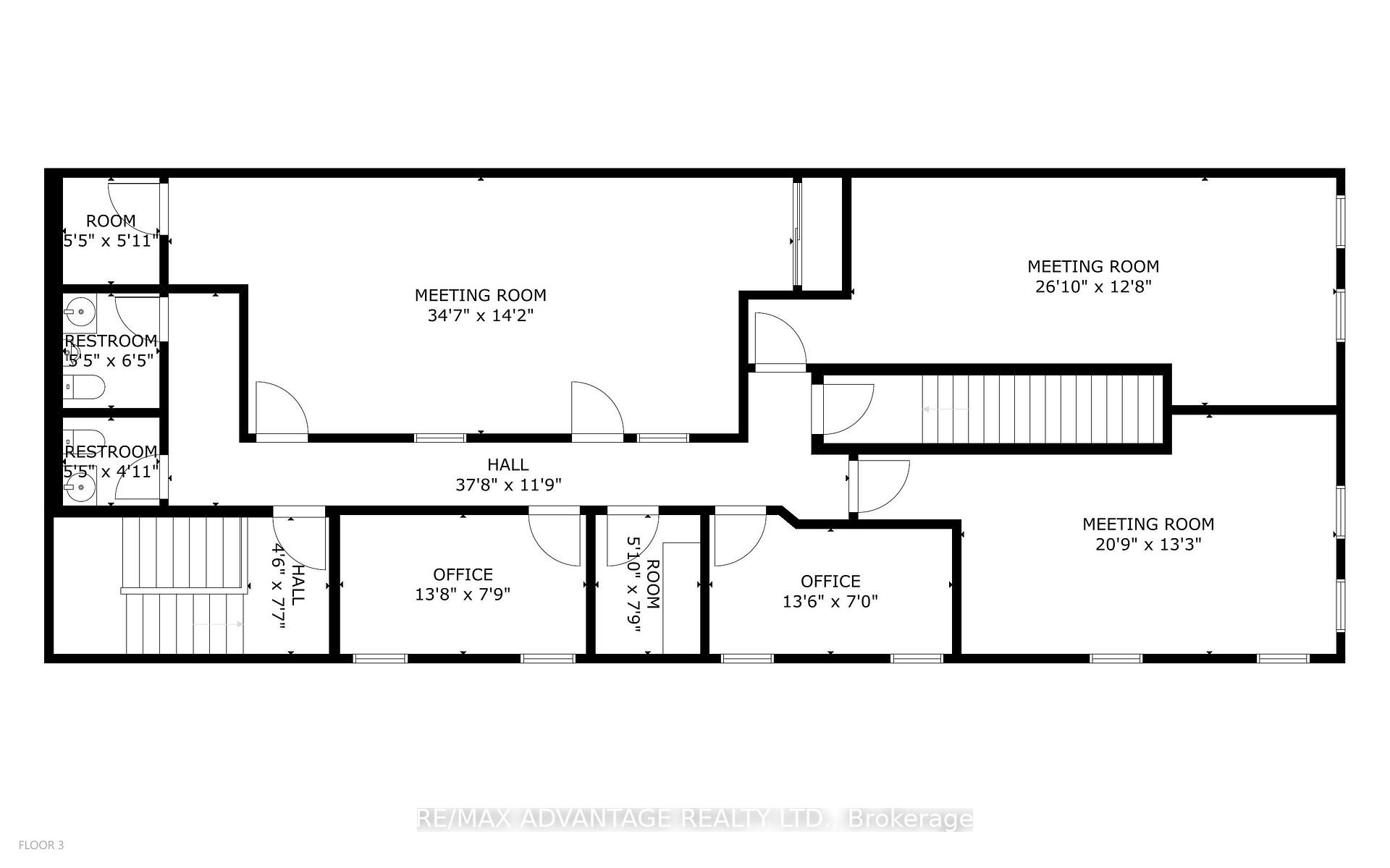
DescriptionApprox. 4,000sf, Professional office building, east of Wellington, west of Adelaide, north of the Thames River. Formerly a law office with approx. 2,000 sf floor plates over 1st and 2nd floors and approx. 2,000 sf finished basement included for use as storage, kitchen/servery areas on each floor above grade, with 4 washrooms. Easily accessible, with seven on-site parking. Gross rental is $11/sf . Tenant pays Hydro/Gas/Water heater rental. Property photographs reflect previous Tenant furnishings. Property will be provided vacant and unfurnished.Amenities- Available
Approx. 4,000sf, Professional office building, east of Wellington, west of Adelaide, north of the Thames River. Formerly a law office with approx. 2,000 sf floor plates over 1st and 2nd floors and approx. 2,000 sf finished basement included for use as storage, kitchen/servery areas on each floor above grade, with 4 washrooms. Easily accessible, with seven on-site parking. Gross rental is $11/sf . Tenant pays Hydro/Gas/Water heater rental. Property photographs reflect previous Tenant furnishings. Property will be provided vacant and unfurnished.
- Available
Approx. 4, 000sf, Professional office building, east of Wellington, west of Adelaide, north of the Thames River.
DescriptionApprox. 4,000sf, Professional office building, east of Wellington, west of Adelaide, north of the Thames River. Formerly a law office with approx. 2,000 sf floor plates over 1st and 2nd floors and approx. 2,000 sf finished basement included for use as storage, kitchen/servery areas on each floor above grade, with 4 washrooms. Easily accessible, with seven on-site parking. Gross rental is $11/sf . Tenant pays Hydro/Gas/Water heater rental. Property photographs reflect previous Tenant furnishings. Property will be provided vacant and unfurnished.Amenities- Available
Approx. 4,000sf, Professional office building, east of Wellington, west of Adelaide, north of the Thames River. Formerly a law office with approx. 2,000 sf floor plates over 1st and 2nd floors and approx. 2,000 sf finished basement included for use as storage, kitchen/servery areas on each floor above grade, with 4 washrooms. Easily accessible, with seven on-site parking. Gross rental is $11/sf . Tenant pays Hydro/Gas/Water heater rental. Property photographs reflect previous Tenant furnishings. Property will be provided vacant and unfurnished.
- Available
All information furnished regarding property for sale, rental or financing is from sources deemed reliable, but no warranty or representation is made as to the accuracy thereof and same is submitted subject to errors, omissions, change of price, rental or other conditions, prior sale, lease or financing or withdrawal without notice. International currency conversions where shown are estimates based on recent exchange rates and are not official asking prices.
All dimensions are approximate. For exact dimensions, you must hire your own architect or engineer.