Property
| Ownership: | For Sale |
|---|---|
| Type: | mixed-use |
| Pets: | No Pets Allowed |
Financials
Listing Courtesy of LAFFEY REAL ESTATE
Welcome to this large, mixed use property consisting of two double lots !
- Rear view of property with an outbuilding and driveway
- Rear view of property with an outbuilding and driveway
- View of asphalt road with curbs and sidewalks
- View of asphalt road with curbs and sidewalks
- View of front of property featuring a gate, a chimney, and roof with shingles
- View of front of property featuring a gate, a chimney, and roof with shingles
- View of yard
- View of yard
- View of undeveloped land
- View of undeveloped land
- View of yard
- View of yard
- View of yard
- View of yard
- View of yard
- View of yard
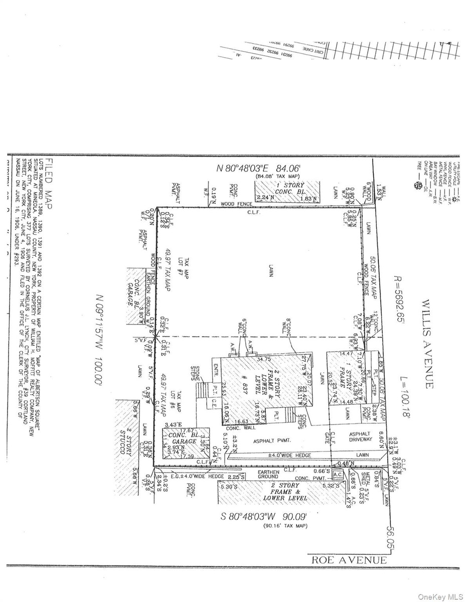
- Map / location
- Map / location
Description
Welcome to this large, mixed use property consisting of two double lots! This (approximately) 9000 sq. ft. property consists of a commercial storefront (currently being used as a hair salon), and a large one family house which has been newly renovated with four bedrooms, eat in kitchen (modern) and one full and one half bath, plus a full basement (consisting of several rooms). There is a garage and a long private driveway. The vacant lot is (approximately) 4000 sq. ft. This is a high-traffic location! This property is in the Herricks School District.
Amenities
- Back Yard
- Electricity Connected
- Gas Oven
- Gas Range
- Natural Gas Available
- Refrigerator
- Sewer Connected
- Water Connected

All information furnished regarding property for sale, rental or financing is from sources deemed reliable, but no warranty or representation is made as to the accuracy thereof and same is submitted subject to errors, omissions, change of price, rental or other conditions, prior sale, lease or financing or withdrawal without notice. International currency conversions where shown are estimates based on recent exchange rates and are not official asking prices.
All dimensions are approximate. For exact dimensions, you must hire your own architect or engineer.