Property
| Ownership: | For Sale |
|---|---|
| Type: | Single Family |
| Rooms: | 10 |
| Bedrooms: | 4 BR |
| Bathrooms: | 3½ |
| Pets: | Pets No |
| Lot Size: | 1.24 Acres |
Financials
Listing Courtesy of Douglas Elliman Real Estate
JUST REDUCED BY 100K ! ! Welcome Home to 2 Derby Court, Aquebogue, Elegance With Resort Like Surroundings !
- Drone / aerial view of a pool
- Aerial view of property and surrounding area with a pool
- Swimming pool featuring a patio
- View of patio / terrace with a grill
- Aerial view of property and surrounding area
- View of yard with a patio and view of scattered trees
- Foyer featuring light wood-style flooring, a towering ceiling, stairs, a chandelier, and ornamental molding
- Entrance foyer with light wood finished floors, stairs, ornamental molding, baseboard heating, and a towering ceiling
- Entryway with baseboard heating, light wood-style flooring, a high ceiling, and stairway
- Kitchen featuring appliances with stainless steel finishes, dark stone counters, glass insert cabinets, ornamental molding, and light wood-style floor
- Dining room featuring ornamental molding, light wood-style floors, recessed lighting, and a ceiling fan
- Dining space with crown molding, light wood-style floors, recessed lighting, a baseboard heating unit, and a ceiling fan
- Dining area with crown molding, ceiling fan, light wood-style flooring, and healthy amount of natural light
- Kitchen featuring ornamental molding, stainless steel dishwasher, dark stone counters, open floor plan, and plenty of natural light
- Half bathroom featuring vanity and toilet
- Laundry area featuring ornamental molding, cabinet space, washer and dryer, and wood finished floors
- Living Room featuring crown molding, a wood stove, plenty of natural light, light wood-type flooring, and ceiling fan
- Living Room featuring crown molding, light wood finished floors, a wood stove, a ceiling fan, and a baseboard heating unit
- Dining Room area featuring ornamental molding, light wood-style floors, a decorative wall, a chandelier, and a wainscoted wall
- Unfurnished Dining Room area featuring light wood-type flooring, a chandelier, crown molding, a baseboard heating unit, and a decorative wall
- Living Room featuring ornamental molding, light wood-style floors, and a ceiling fan
- Hallway featuring a chandelier, light colored carpet, ornamental molding, attic access, and an upstairs landing
- Bedroom featuring crown molding, light carpet, a ceiling fan, and a baseboard heating unit
- Bathroom with baseboard heating, light tile patterned floors, ornamental molding, double vanity, and a bath
- Bedroom with crown molding, light colored carpet, a baseboard heating unit, ceiling fan, and a desk
- Full bathroom featuring crown molding, light tile patterned flooring, vanity, and a shower with curtain
- Carpeted bedroom with crown molding, ceiling fan, and a baseboard radiator
- Bedroom featuring light colored carpet, a baseboard radiator, and ceiling fan
- Finished Lower Level
- Finished Lower Level
- Outdoor Bath/Shower
- View of front of property with covered porch and a shingled roof
- View of subject property
- View of front of property with covered porch, a garage, an outbuilding, and asphalt driveway
- View of front of home featuring a garage, a front yard, and covered porch
- 36
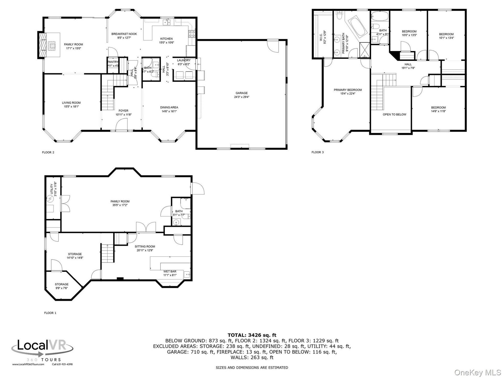
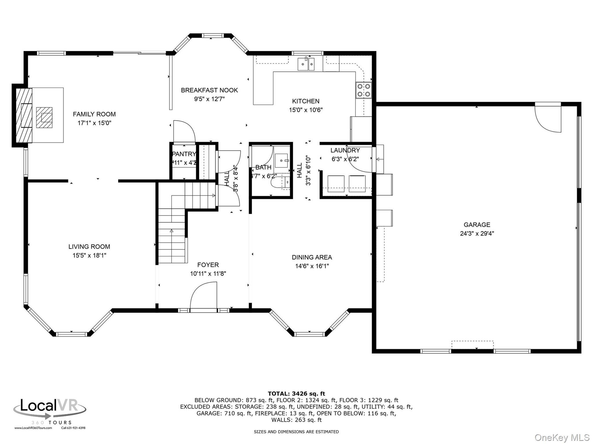
- Floor Plan-1st Floor
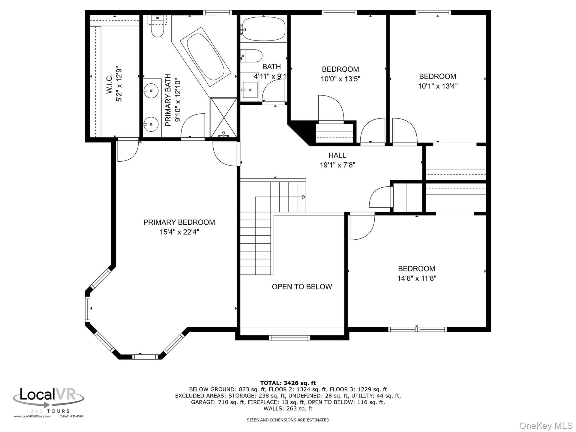
- Floor Plan-2nd Floor
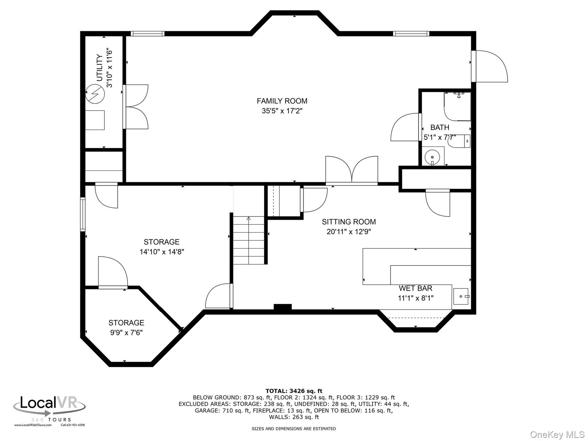
- Floor Plan-Lower Level
- Floor Plan-All-in-one
Description
JUST REDUCED BY 100K!! Welcome Home to 2 Derby Court, Aquebogue, Elegance With Resort-Like Surroundings!
Set on 1.25 acres landscaped to perfection, this fabulous Residence blends timeless architecture with modern comfort. Enveloped by privacy hedges, specimen plantings, and established gardens, the property offers both beauty and seclusion. Inside, you’ll find generously sized rooms with newly refinished hardwood floors, crown molding, and soaring 9-foot ceilings on the first floor. The Family Room features an attractive wood burning stove, adding extra warmth and comfort on those chilly fall and winter days! The eat-in Kitchen opens seamlessly to the Family Room, creating a flowing, inviting atmosphere. The home offers 4 Bedrooms and 3 1/2 Baths, along with versatile spaces, including an upstairs office. On the lower level, there is an additional Family Room with a large TV and Wet Bar, finished with wood trim and flooring, wonderful for entertainment or simple relaxation. Outdoors, the grounds are designed for leisure and entertaining alike. An oversized heated, 24' x 44' saline, mountain lake kidney pool, creates a resort-like atmosphere, complemented by patios and lounging areas. A covered 24' x 24' pergola, complete with lighting, ceiling fan, and an adjacent fire pit, extends the living space into the outdoors, perfect for year-round enjoyment. There is also a separate outdoor shower and bathroom for added convenience. Another added bonus is the oversized 3 1/2 car garage, a car enthusiast's dream! Let's not forget to mention the full, wrap-around porch with mahogany decking in the front of the home, where one may enjoy their morning coffee along with their favorite reading material. This Aquebogue gem combines classic sophistication with modern amenities, offering an unparalleled opportunity to live the life you so richly deserve, in the very heart of the North Fork!
Virtual Tour: https://vimeo.com/1114765384?fl=pl&fe=sh
Amenities
- Back Yard
- Breakfast Bar
- Cable Connected
- Ceiling Fan(s)
- Cleared
- Crown Molding
- Dishwasher
- Dryer
- Eat-in Kitchen
- Electricity Connected
- Entrance Foyer
- Family Room
- Fire Pit
- Formal Dining
- Garden
- Gas Grill
- Granite Counters
- High ceiling
- Kitchen Island
- Landscaped
- Level
- Lighting
- Neighborhood
- Open Kitchen
- Pantry
- Private
- Recessed Lighting
- Sprinklers In Front
- Sprinklers In Rear
- Trees/Woods
- Water Connected
- Wood Burning Stove

All information furnished regarding property for sale, rental or financing is from sources deemed reliable, but no warranty or representation is made as to the accuracy thereof and same is submitted subject to errors, omissions, change of price, rental or other conditions, prior sale, lease or financing or withdrawal without notice. International currency conversions where shown are estimates based on recent exchange rates and are not official asking prices.
All dimensions are approximate. For exact dimensions, you must hire your own architect or engineer.