Property
Ownership: | For Sale |
---|---|
Type: | Unknown |
Bedrooms: | 2 BR |
Bathrooms: | 3 |
Pets: | Pets Allowed |
FinancialsPrice:C3,400($2,443)(€2,081)
Price:C3,400
($2,443)
(€2,081)
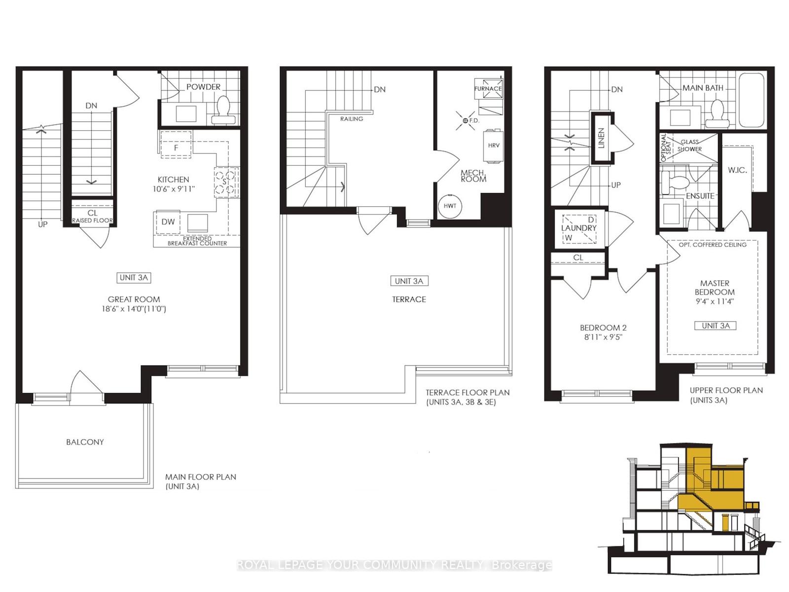
DescriptionLooking for a stylish and low-maintenance place to call home? Welcome to this beautiful brand-new 2-bedroom, 3-bathroomstacked townhouse in the heart of Richmond Hill's sought-after High Point Urban Towns community by Laurier Homes. Located on a quiet cul-de-sac, this modern upper unit offers a bright open-concept layout with a spacious combined living & dining area leading into a U-shaped kitchen, sleek contemporary finishes, and a massive private rooftop terrace perfect for morning coffees or evening get-togethers. The unit enjoys unobstructed views overlooking open space, offering both privacy and a sense of calm. Each bedroom is bright and spacious, with great closet storage, and having three bathrooms means no morning lineups! The home is also super convenient just steps from Yonge Street, with quick access to highways, GO Transit, schools, shopping(hello, Costco), dining, Mackenzie Health Hospital, and more. Whether you're a couple, small family, or professionals, this home offers comfort, connection, and a serene lifestyle in unestablished, walkable Neighbourhood. Tenant to pay all utilities. Non-smokers. Come experience it for yourself!Amenities- Rooftop Deck/Garden
- Storage Area Lockers
- Water Heater
Looking for a stylish and low-maintenance place to call home? Welcome to this beautiful brand-new 2-bedroom, 3-bathroomstacked townhouse in the heart of Richmond Hill's sought-after High Point Urban Towns community by Laurier Homes. Located on a quiet cul-de-sac, this modern upper unit offers a bright open-concept layout with a spacious combined living & dining area leading into a U-shaped kitchen, sleek contemporary finishes, and a massive private rooftop terrace perfect for morning coffees or evening get-togethers. The unit enjoys unobstructed views overlooking open space, offering both privacy and a sense of calm. Each bedroom is bright and spacious, with great closet storage, and having three bathrooms means no morning lineups! The home is also super convenient just steps from Yonge Street, with quick access to highways, GO Transit, schools, shopping(hello, Costco), dining, Mackenzie Health Hospital, and more. Whether you're a couple, small family, or professionals, this home offers comfort, connection, and a serene lifestyle in unestablished, walkable Neighbourhood. Tenant to pay all utilities. Non-smokers. Come experience it for yourself!
- Rooftop Deck/Garden
- Storage Area Lockers
- Water Heater
Looking for a stylish and low maintenance place to call home ?
DescriptionLooking for a stylish and low-maintenance place to call home? Welcome to this beautiful brand-new 2-bedroom, 3-bathroomstacked townhouse in the heart of Richmond Hill's sought-after High Point Urban Towns community by Laurier Homes. Located on a quiet cul-de-sac, this modern upper unit offers a bright open-concept layout with a spacious combined living & dining area leading into a U-shaped kitchen, sleek contemporary finishes, and a massive private rooftop terrace perfect for morning coffees or evening get-togethers. The unit enjoys unobstructed views overlooking open space, offering both privacy and a sense of calm. Each bedroom is bright and spacious, with great closet storage, and having three bathrooms means no morning lineups! The home is also super convenient just steps from Yonge Street, with quick access to highways, GO Transit, schools, shopping(hello, Costco), dining, Mackenzie Health Hospital, and more. Whether you're a couple, small family, or professionals, this home offers comfort, connection, and a serene lifestyle in unestablished, walkable Neighbourhood. Tenant to pay all utilities. Non-smokers. Come experience it for yourself!Amenities- Rooftop Deck/Garden
- Storage Area Lockers
- Water Heater
Looking for a stylish and low-maintenance place to call home? Welcome to this beautiful brand-new 2-bedroom, 3-bathroomstacked townhouse in the heart of Richmond Hill's sought-after High Point Urban Towns community by Laurier Homes. Located on a quiet cul-de-sac, this modern upper unit offers a bright open-concept layout with a spacious combined living & dining area leading into a U-shaped kitchen, sleek contemporary finishes, and a massive private rooftop terrace perfect for morning coffees or evening get-togethers. The unit enjoys unobstructed views overlooking open space, offering both privacy and a sense of calm. Each bedroom is bright and spacious, with great closet storage, and having three bathrooms means no morning lineups! The home is also super convenient just steps from Yonge Street, with quick access to highways, GO Transit, schools, shopping(hello, Costco), dining, Mackenzie Health Hospital, and more. Whether you're a couple, small family, or professionals, this home offers comfort, connection, and a serene lifestyle in unestablished, walkable Neighbourhood. Tenant to pay all utilities. Non-smokers. Come experience it for yourself!
- Rooftop Deck/Garden
- Storage Area Lockers
- Water Heater
All information furnished regarding property for sale, rental or financing is from sources deemed reliable, but no warranty or representation is made as to the accuracy thereof and same is submitted subject to errors, omissions, change of price, rental or other conditions, prior sale, lease or financing or withdrawal without notice. International currency conversions where shown are estimates based on recent exchange rates and are not official asking prices.
All dimensions are approximate. For exact dimensions, you must hire your own architect or engineer.