Property
| Type: | Unknown |
|---|---|
| Pets: | No Pets Allowed |
| Lot Size: | 0.33 Acres |
Financials
Rent:$4,500
Listing Courtesy of NEXTHOME FINEST FIRST
Your next warehousing opportunity awaits at 1272 Montauk Highway, Suite A 2 !
Description
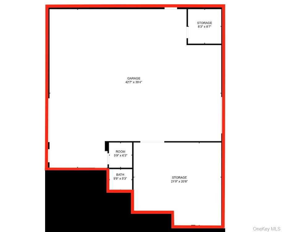
Your next warehousing opportunity awaits at 1272 Montauk Highway, Suite A-2! This warehouse in the heart of Copiague boasts over 1,600 square feet, 14' ceilings, a 12' garage door, and HVAC throughout. Excellent location, visibility, and access from Montauk Highway allows for ease of receiving and shipping for all your business needs. The generous parking lot has been recently updated with newer lot lines and 1 dedicated accessible parking space. Tremendous possibilities await - now fully available. Zoned as E Business within Town of Babylon.
Amenities
- Cable Connected
- Electricity Connected
- Natural Gas Connected
- Phone Connected
- Sewer Connected
- Trash Collection Public
- Water Connected

All information furnished regarding property for sale, rental or financing is from sources deemed reliable, but no warranty or representation is made as to the accuracy thereof and same is submitted subject to errors, omissions, change of price, rental or other conditions, prior sale, lease or financing or withdrawal without notice. International currency conversions where shown are estimates based on recent exchange rates and are not official asking prices.
All dimensions are approximate. For exact dimensions, you must hire your own architect or engineer.