301 West 118th Street Apt: 8-A
New York, NY 10026
| Cross street: | Frederick Douglass Boulevard |
|---|
Property
| Ownership: | Condo |
|---|---|
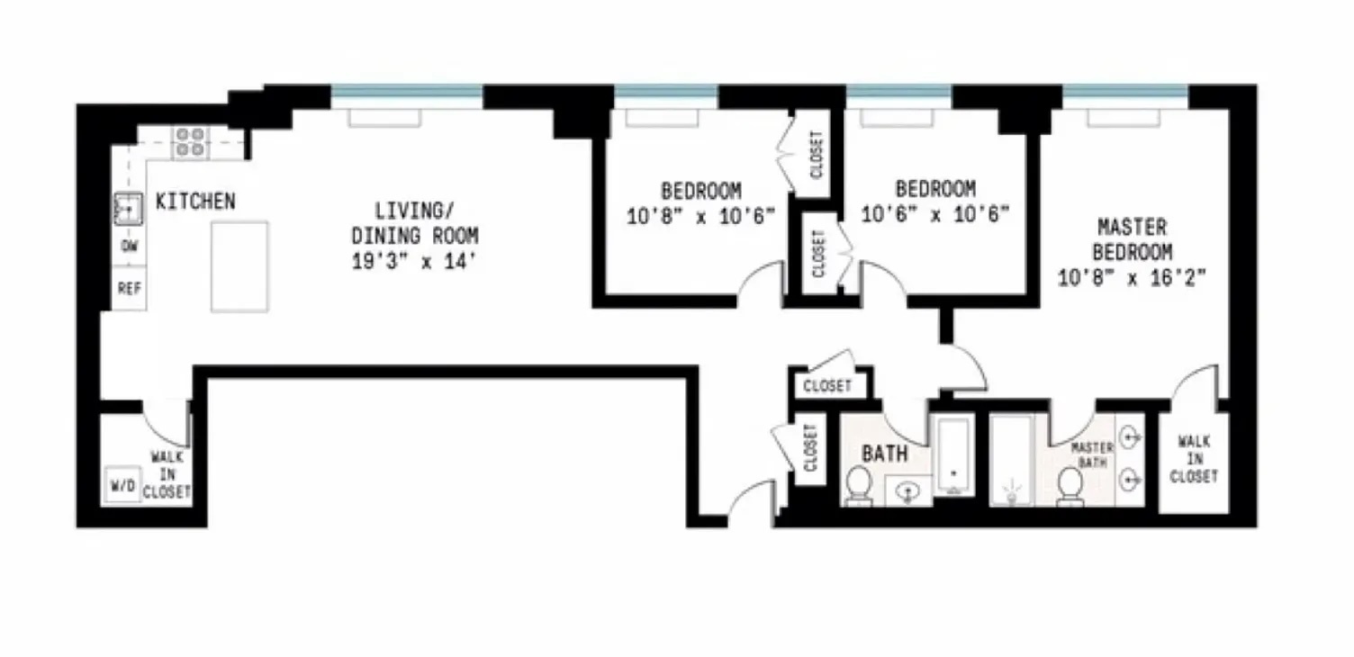
| Rooms: | 5 |
| Bedrooms: | 3 BR |
| Bathrooms: | 2 |
| Pets: | Pets Allowed |
Financials
Price:$1,429,000
Common charges:$1,626
Real estate tax:$39
Financing Allowed:80%
Minimum down:$285,800
Listing Courtesy of Bohemia Realty Group
Welcome to your dream home !
Description
Welcome to your dream home! Full service condo building tax abated until 2035! This spacious 3-bedroom, 2-bathroom condo offers the perfect blend of modern luxury and comfortable living. Nestled in a prime South Harlem location, this stunning apartment is designed to meet all your needs!
Enjoy the open concept living space both quiet and bathed in natural light. The contemporary kitchen is a chef's delight, featuring stainless steel appliances, a convenient breakfast bar, and ample counter space for all your culinary adventures.
King-size primary bedroom offering generous walk-in closet and an en-suite bathroom for added privacy. The second and third bedrooms are equally impressive, each accommodating queen-size beds.
Apartment features
-Open concept kitchen with stainless steel appliances and breakfast bar
-In unit Washer/dryer and dishwasher
-Tons or storage and closet space
-2 bathrooms
-King sized primary with en-suite
-Queen Size second and 3rd bedrooms
-Lots of natural light throughout
Building Amenities
-Full-time doorman and maintenance team
-Elevator
-Gym
-Laundry Room
-Kids Playroom
-Media Center
-Outdoor Courtyard
-Storage Available
-Tax Abated until 2035!
-Pet friendly with board approval
The Neighborhood
Situated in the dynamic South Harlem neighborhood surrounded by an eclectic mix of dining, shopping, and cultural venues. From renowned restaurants and cozy cafes to boutique shops and historic landmarks, everything you need is just steps away. With easy access to public transportation, commuting to other parts of Manhattan is effortless.
Transportation
Subway Lines:
-A, B, C, D Trains: Accessible at the 125th Street station, located at St. Nicholas Avenue and 125th Street. These lines provide express and local service to various parts of Manhattan and beyond.
-1 Train: Accessible at the 116th Street station, located at Broadway and 116th Street. This line runs along the west side of Manhattan and provides local service.
-2, 3 Trains: Accessible at the 116th Street station, located at Lenox Avenue and 116th Street. These lines offer express service and connect to the east and west sides of Manhattan.
Bus Lines:
-M7: Runs along Columbus/Amsterdam Avenues and provides north-south service.
-M10: Runs along Central Park West/Frederick Douglass Boulevard and provides north-south service.
-M116: Runs crosstown along 116th Street, providing east-west service.
-M3: Runs along Manhattan Avenue/St. Nicholas Avenue and provides north-south service.
-M60-SBS: Provides service to LaGuardia Airport and runs crosstown along 125th Street.
Additional Transportation:
-CitiBike Stations: Various CitiBike stations are located nearby, offering an easy and convenient way to bike around the city.
-Taxis and Ride-Sharing Services: Readily available in the area for convenient point-to-point transportation.
Enjoy the open concept living space both quiet and bathed in natural light. The contemporary kitchen is a chef's delight, featuring stainless steel appliances, a convenient breakfast bar, and ample counter space for all your culinary adventures.
King-size primary bedroom offering generous walk-in closet and an en-suite bathroom for added privacy. The second and third bedrooms are equally impressive, each accommodating queen-size beds.
Apartment features
-Open concept kitchen with stainless steel appliances and breakfast bar
-In unit Washer/dryer and dishwasher
-Tons or storage and closet space
-2 bathrooms
-King sized primary with en-suite
-Queen Size second and 3rd bedrooms
-Lots of natural light throughout
Building Amenities
-Full-time doorman and maintenance team
-Elevator
-Gym
-Laundry Room
-Kids Playroom
-Media Center
-Outdoor Courtyard
-Storage Available
-Tax Abated until 2035!
-Pet friendly with board approval
The Neighborhood
Situated in the dynamic South Harlem neighborhood surrounded by an eclectic mix of dining, shopping, and cultural venues. From renowned restaurants and cozy cafes to boutique shops and historic landmarks, everything you need is just steps away. With easy access to public transportation, commuting to other parts of Manhattan is effortless.
Transportation
Subway Lines:
-A, B, C, D Trains: Accessible at the 125th Street station, located at St. Nicholas Avenue and 125th Street. These lines provide express and local service to various parts of Manhattan and beyond.
-1 Train: Accessible at the 116th Street station, located at Broadway and 116th Street. This line runs along the west side of Manhattan and provides local service.
-2, 3 Trains: Accessible at the 116th Street station, located at Lenox Avenue and 116th Street. These lines offer express service and connect to the east and west sides of Manhattan.
Bus Lines:
-M7: Runs along Columbus/Amsterdam Avenues and provides north-south service.
-M10: Runs along Central Park West/Frederick Douglass Boulevard and provides north-south service.
-M116: Runs crosstown along 116th Street, providing east-west service.
-M3: Runs along Manhattan Avenue/St. Nicholas Avenue and provides north-south service.
-M60-SBS: Provides service to LaGuardia Airport and runs crosstown along 125th Street.
Additional Transportation:
-CitiBike Stations: Various CitiBike stations are located nearby, offering an easy and convenient way to bike around the city.
-Taxis and Ride-Sharing Services: Readily available in the area for convenient point-to-point transportation.
Amenities
Bike Room; Garden; Fitness Room; Laundry Room; Nursery; Cold Storage; Private Storage;
- Washer / Dryer
- Air Conditioning
- Elevator
- Fitness Facility
- Full time doorman
- Garden
- Laundry Room
Neighborhood
More listings:

RLS Data display by Nest Seekers LLC.
All information furnished regarding property for sale, rental or financing is from sources deemed reliable, but no warranty or representation is made as to the accuracy thereof and same is submitted subject to errors, omissions, change of price, rental or other conditions, prior sale, lease or financing or withdrawal without notice. International currency conversions where shown are estimates based on recent exchange rates and are not official asking prices.
All dimensions are approximate. For exact dimensions, you must hire your own architect or engineer.