Property
| Ownership: | Multi-Family | 
|---|---|
| Rooms: | 12 | 
| Bedrooms: | Studio | 
| Pets: | Pets Unknown | 
Financials
Price:$3,745,000
Real estate tax:$6,252
          Listing Courtesy of Compass
      
Nestled on tree lined Carroll Street near 5th Ave, Time Out NY Magazine's coolest street, this meticulously renovated two family home makes for a turn key prize in the heart ...
Description
Nestled on tree lined Carroll Street near 5th Ave, Time Out NY Magazine's "coolest street," this meticulously renovated two-family home makes for a turn-key prize in the heart of Park Slope.
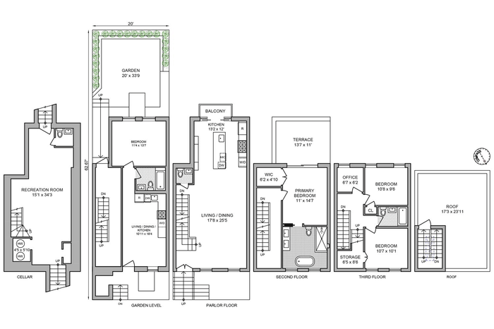
With new siding and roof with a 10 year transferrable warranty, this townhome has been reimagined with curb appeal and long term peace of mind. Spanning 20-foot wide, enjoy four bedrooms, a home office, three full bathrooms, two powder rooms, a recreational room, and four private outdoor spaces. Additional upgrades include elegantly tailored french entry doors designed with reinforced double glazing, custom built-in closets throughout, and expanded storage solutions.
Upon entering the parlor of the owner’s triplex, you are greeted by exquisite wide plank white oak flooring and expansive layout. The chef’s kitchen boasts a waterfall island, custom cabinetry, quartz countertops, a farmhouse sink, and a comprehensive range of appliances, including a paneled Fisher Paykel refrigerator, a Wolf six-burner stove, a paneled dishwasher, a microwave drawer, and a wine refrigerator. Beyond the kitchen is a charming south-facing balcony that complements the parlor floor.
Ascending the stairs, you encounter the elegant primary bedroom, equipped with its own private terrace, and floor-to-ceiling sliding glass doors and an expansive walk-in closet. The five-fixture primary bathroom is elegantly adorned with marble-tiled floors and walls, a tasteful double vanity, a glass-enclosed rain shower, and a deep-soaking tub. On the third floor, there are two generously sized bedrooms, an office, and a secondary bathroom. Perched atop the home, a staircase and bulkhead with roof access provide idyllic Brooklyn and treetop views.
The private backyard of the owner’s triplex is accessible through an internal staircase. This space is ideal location for summer afternoon barbecues. The private basement, accessible via an interior staircase, features tile floors and a powder room. It can be easily transformed into a playroom, media den, or artist studio. The separate garden floor one-bedroom unit can serve as an income-generating property or an in-law apartment.
Park Slope offers a plethora of amenities, including boutique local shops, cafes, and fine dining restaurants such as Miriam, Brooklyn Burgers & Beer, Palo Santo, and al di al Trattoria. Additionally, the neighborhood is situated near Gowanus, providing opportunities for rock climbing, skateboarding, and playing shuffleboard. Residents can also conveniently visit Whole Foods for a quick shopping trip.
The home’s proximity to the Barclays Center, Prospect Park, the Brooklyn Museum, and mass transit further enhances its appeal. Multiple train lines, including the LIRR, offer easy access to the area. 
Call today to schedule your private viewing.
Amenities
Garden;
- Terrace
- Air Conditioning
- Garden
- Walk-up
Neighborhood
More listings: 

RLS Data display by Nest Seekers LLC.
All information furnished regarding property for sale, rental or financing is from sources deemed reliable, but no warranty or representation is made as to the accuracy thereof and same is submitted subject to errors, omissions, change of price, rental or other conditions, prior sale, lease or financing or withdrawal without notice. International currency conversions where shown are estimates based on recent exchange rates and are not official asking prices.
All dimensions are approximate. For exact dimensions, you must hire your own architect or engineer.
