Property
Ownership: | For Sale |
---|---|
Type: | Duplex |
Bedrooms: | 5 BR |
Bathrooms: | 3 |
Pets: | Pets No |
Financials
Listing Courtesy of Capri Jet Realty Corp
DescriptionCorner Brick 2 Family on an Extra Large Lot in Jamaica!
This unique corner solid brick semi-detached 2 family property with a 2 car garage on an extra large lot (4,464 SF) is a fantastic investment opportunity located in a vibrant Jamaica neighborhood of Southeast Queens. The property is located only 2 short blocks away from busy Liberty Ave and Keith Williams Park, only 1 mile to Jamaica Shopping Center, Jamaica - 179th St E, F train station, Jamaica Center E, J, Z train station and Hollis LIRR station.
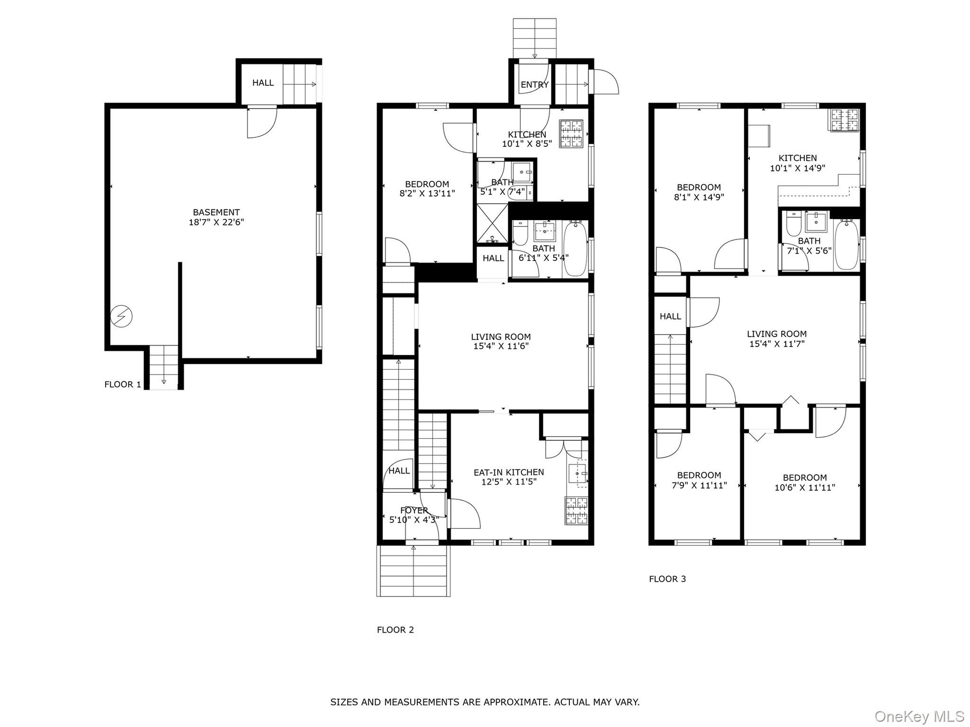
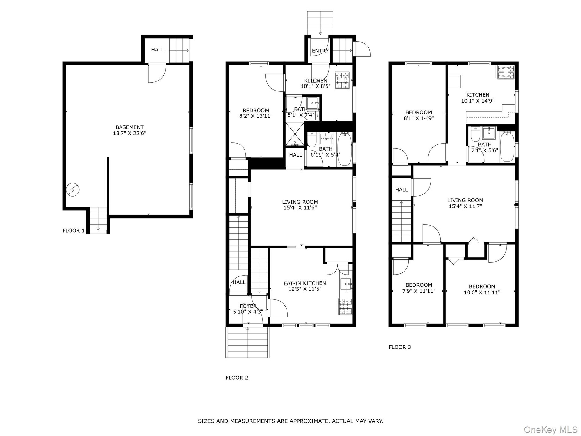
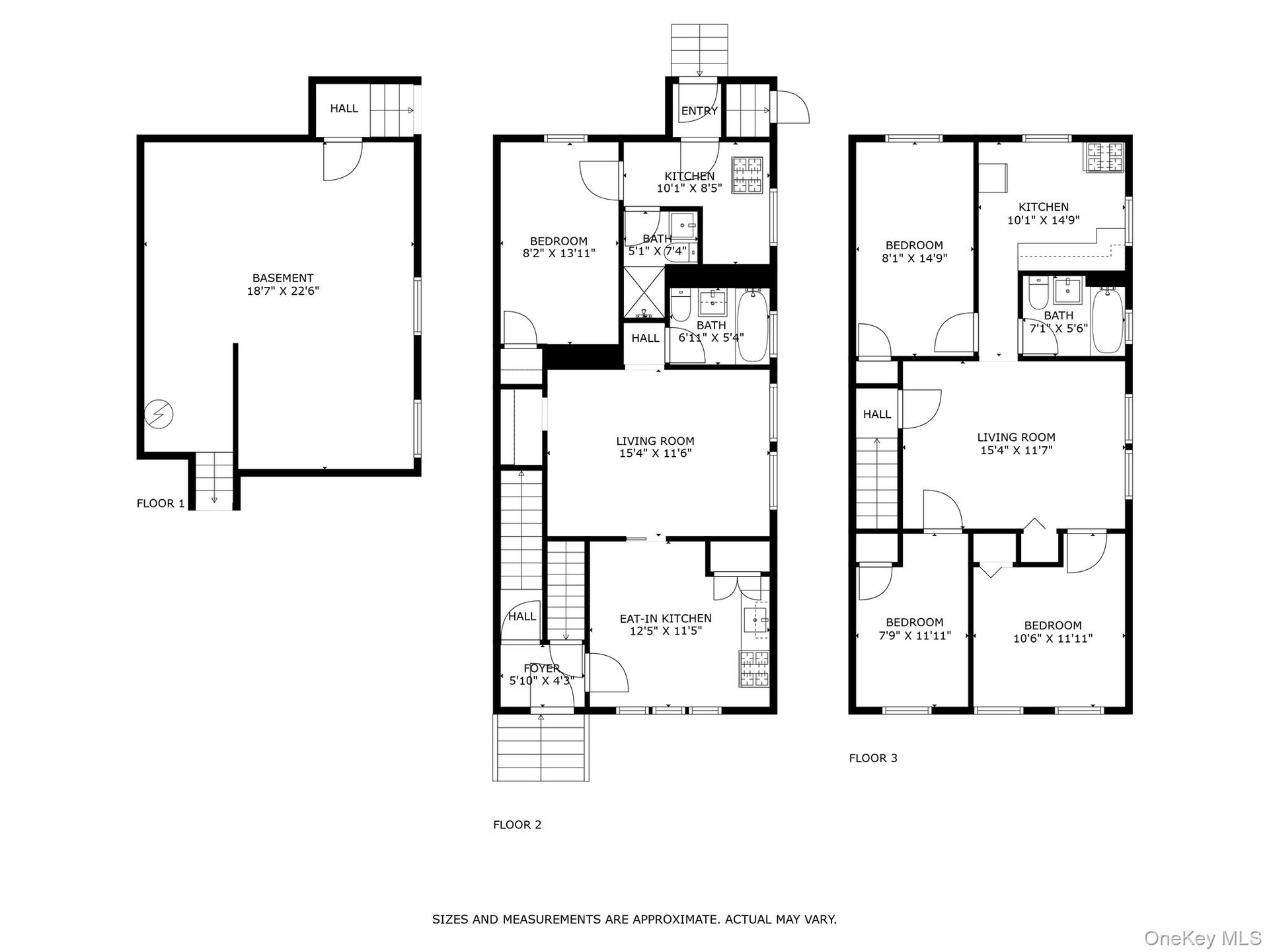
The property will be delivered vacant and it needs full TLC. The first floor features 2 bedrooms, 2 full bathrooms, living room and 2 separate entrances. The second floor is a 3 bedroom, 1 bathroom unit. There is also a full unfinished basement. This offers endless possibilities for investors, developers and owner/users as well. There is a detached 2 car garage and private driveway for additional parking. Other features include a new boiler and hot water tank. Investors can take advantage of the extra large lot to build another property or expand the existing structures, maximizing both rental income and property value.
Building: 20 x 40 ft
Lot 1: 30 x 100 ft (3,000 SF)
Lot 2: 29.17 x 103.5 ft (1,464 SF)
Zoning: R4-1
FAR: 0.53; Max FAR: 1 (Each Lot)
Taxes: $6,252/Yr
*Disclaimer: All Information provided is deemed reliable but is not guaranteed and should be independently verified.Amenities- Eat-in Kitchen
- Electricity Available
- Natural Gas Available
- Sewer Available
- Storage
- Water Available
Corner Brick 2 Family on an Extra Large Lot in Jamaica!
This unique corner solid brick semi-detached 2 family property with a 2 car garage on an extra large lot (4,464 SF) is a fantastic investment opportunity located in a vibrant Jamaica neighborhood of Southeast Queens. The property is located only 2 short blocks away from busy Liberty Ave and Keith Williams Park, only 1 mile to Jamaica Shopping Center, Jamaica - 179th St E, F train station, Jamaica Center E, J, Z train station and Hollis LIRR station.
The property will be delivered vacant and it needs full TLC. The first floor features 2 bedrooms, 2 full bathrooms, living room and 2 separate entrances. The second floor is a 3 bedroom, 1 bathroom unit. There is also a full unfinished basement. This offers endless possibilities for investors, developers and owner/users as well. There is a detached 2 car garage and private driveway for additional parking. Other features include a new boiler and hot water tank. Investors can take advantage of the extra large lot to build another property or expand the existing structures, maximizing both rental income and property value.
Building: 20 x 40 ft
Lot 1: 30 x 100 ft (3,000 SF)
Lot 2: 29.17 x 103.5 ft (1,464 SF)
Zoning: R4-1
FAR: 0.53; Max FAR: 1 (Each Lot)
Taxes: $6,252/Yr
*Disclaimer: All Information provided is deemed reliable but is not guaranteed and should be independently verified.
- Eat-in Kitchen
- Electricity Available
- Natural Gas Available
- Sewer Available
- Storage
- Water Available
Corner Brick 2 Family on an Extra Large Lot in Jamaica !
DescriptionCorner Brick 2 Family on an Extra Large Lot in Jamaica!
This unique corner solid brick semi-detached 2 family property with a 2 car garage on an extra large lot (4,464 SF) is a fantastic investment opportunity located in a vibrant Jamaica neighborhood of Southeast Queens. The property is located only 2 short blocks away from busy Liberty Ave and Keith Williams Park, only 1 mile to Jamaica Shopping Center, Jamaica - 179th St E, F train station, Jamaica Center E, J, Z train station and Hollis LIRR station.
The property will be delivered vacant and it needs full TLC. The first floor features 2 bedrooms, 2 full bathrooms, living room and 2 separate entrances. The second floor is a 3 bedroom, 1 bathroom unit. There is also a full unfinished basement. This offers endless possibilities for investors, developers and owner/users as well. There is a detached 2 car garage and private driveway for additional parking. Other features include a new boiler and hot water tank. Investors can take advantage of the extra large lot to build another property or expand the existing structures, maximizing both rental income and property value.
Building: 20 x 40 ft
Lot 1: 30 x 100 ft (3,000 SF)
Lot 2: 29.17 x 103.5 ft (1,464 SF)
Zoning: R4-1
FAR: 0.53; Max FAR: 1 (Each Lot)
Taxes: $6,252/Yr
*Disclaimer: All Information provided is deemed reliable but is not guaranteed and should be independently verified.Amenities- Eat-in Kitchen
- Electricity Available
- Natural Gas Available
- Sewer Available
- Storage
- Water Available
Corner Brick 2 Family on an Extra Large Lot in Jamaica!
This unique corner solid brick semi-detached 2 family property with a 2 car garage on an extra large lot (4,464 SF) is a fantastic investment opportunity located in a vibrant Jamaica neighborhood of Southeast Queens. The property is located only 2 short blocks away from busy Liberty Ave and Keith Williams Park, only 1 mile to Jamaica Shopping Center, Jamaica - 179th St E, F train station, Jamaica Center E, J, Z train station and Hollis LIRR station.
The property will be delivered vacant and it needs full TLC. The first floor features 2 bedrooms, 2 full bathrooms, living room and 2 separate entrances. The second floor is a 3 bedroom, 1 bathroom unit. There is also a full unfinished basement. This offers endless possibilities for investors, developers and owner/users as well. There is a detached 2 car garage and private driveway for additional parking. Other features include a new boiler and hot water tank. Investors can take advantage of the extra large lot to build another property or expand the existing structures, maximizing both rental income and property value.
Building: 20 x 40 ft
Lot 1: 30 x 100 ft (3,000 SF)
Lot 2: 29.17 x 103.5 ft (1,464 SF)
Zoning: R4-1
FAR: 0.53; Max FAR: 1 (Each Lot)
Taxes: $6,252/Yr
*Disclaimer: All Information provided is deemed reliable but is not guaranteed and should be independently verified.
- Eat-in Kitchen
- Electricity Available
- Natural Gas Available
- Sewer Available
- Storage
- Water Available

All information furnished regarding property for sale, rental or financing is from sources deemed reliable, but no warranty or representation is made as to the accuracy thereof and same is submitted subject to errors, omissions, change of price, rental or other conditions, prior sale, lease or financing or withdrawal without notice. International currency conversions where shown are estimates based on recent exchange rates and are not official asking prices.
All dimensions are approximate. For exact dimensions, you must hire your own architect or engineer.