Building
Type: | Townhouse |
---|---|
Era: | Post-war |
Floors: | 3 |
Property
Ownership: | Multi-Family |
---|---|
Rooms: | 12 |
Bedrooms: | Studio |
Pets: | Pets Unknown |
FinancialsPrice:$2,450,000Real estate tax:$5,028
Price:$2,450,000
Real estate tax:$5,028
Listing Courtesy of Compass
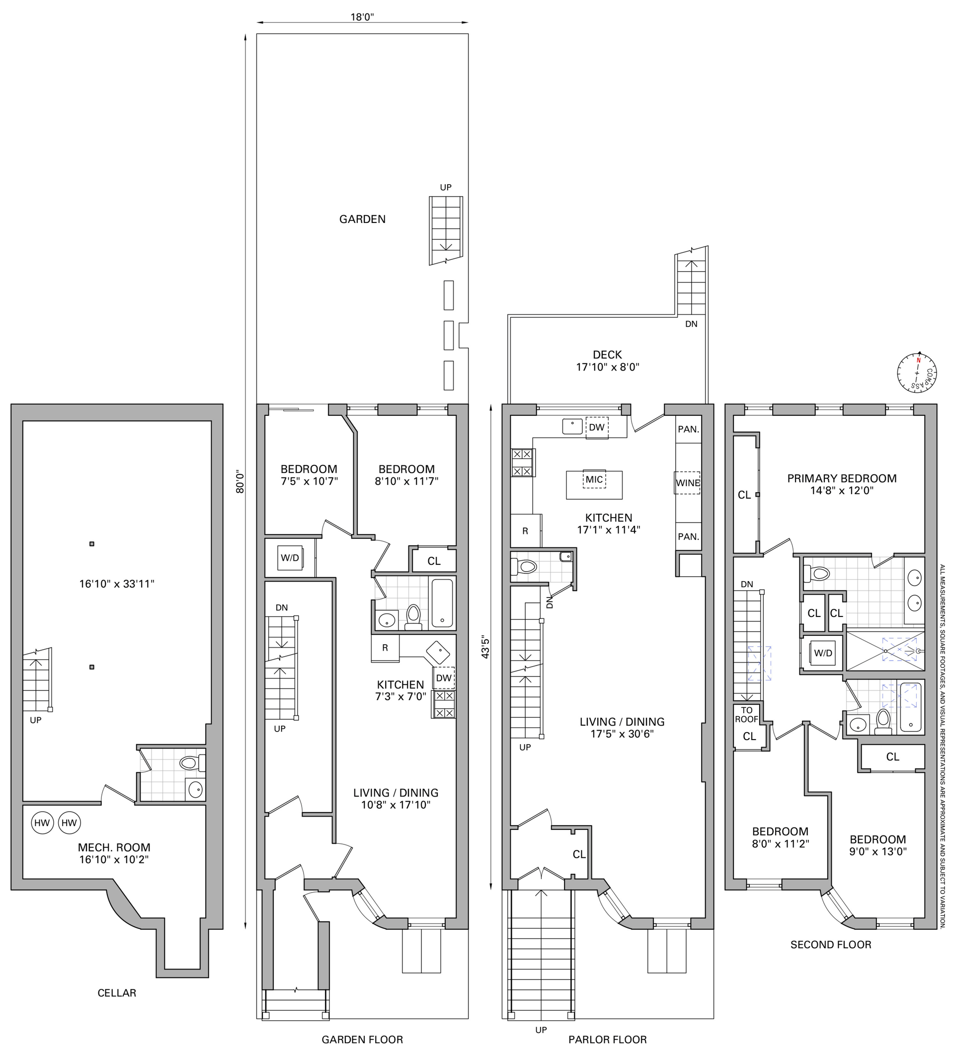
DescriptionNestled on a tree-lined block in Bedford-Stuyvesant, 707 Macon Street has been thoughtfully gut-renovated to blend historic charm with a fresh, modern sensibility. This two-story townhouse offers 5 bedrooms across a generous layout, ideal for both everyday living and entertaining.
Inside, natural light floods through oversized windows, highlighting wide-plank hardwood floors and an open, airy flow. The heart of the home is the designer kitchen, featuring marble countertops, custom cabinetry, and premium Thermador stainless-steel appliances, including a six-burner stove. A Frigidaire wine fridge adds the perfect finishing touch, creating an ideal setting for both cooking and gathering.
Bathrooms are a study in style and craftsmanship: think spa-like walk-in showers clad in striking green tile, skylit soaking tubs, and warm wood vanities topped with stone counters. Each space feels serene, elevated, and designed for daily indulgence.
Upstairs, tranquil bedrooms offer leafy views and flexible use for guests, home office, or creative studio. The garden level hosts a bright two-bedroom, one-bath residence, spacious living room, sleek kitchen outfitted with stainless-steel appliances, a deep soaking tub, in-unit washer and dryer, and direct access to the backyard. Whether used as a stylish guest suite or as an income-generating rental, this space offers remarkable flexibility.
Every detail of this elegant renovation has been meticulously curated — from zoned central air and built-in speakers to custom closets, restored moldings, double-pane windows, and wide-plank oak floors — all coming together to create a home that seamlessly balances luxury, comfort, and modern innovation.
With its restored pre-war façade, high-end finishes, and every modern upgrade, 707 Macon Street delivers a rare opportunity to own a turnkey Brooklyn home that celebrates both heritage and design.
One of the many perks of living here is the proximity to a diverse selection of excellent dining spots. Just minutes away you’ll find local gems like Trad Room, Laziza, Sonara, Bada Boom, Olmo, Dick & Jane’s and Chez Alex. Nearby parks offer courts and playgrounds, while the A/C trains, B26 bus, and a 20-minute drive to JFK ensure effortless connectivity.AmenitiesGarden;- Air Conditioning
- Garden
NeighborhoodMore listings:
Nestled on a tree-lined block in Bedford-Stuyvesant, 707 Macon Street has been thoughtfully gut-renovated to blend historic charm with a fresh, modern sensibility. This two-story townhouse offers 5 bedrooms across a generous layout, ideal for both everyday living and entertaining.
Inside, natural light floods through oversized windows, highlighting wide-plank hardwood floors and an open, airy flow. The heart of the home is the designer kitchen, featuring marble countertops, custom cabinetry, and premium Thermador stainless-steel appliances, including a six-burner stove. A Frigidaire wine fridge adds the perfect finishing touch, creating an ideal setting for both cooking and gathering.
Bathrooms are a study in style and craftsmanship: think spa-like walk-in showers clad in striking green tile, skylit soaking tubs, and warm wood vanities topped with stone counters. Each space feels serene, elevated, and designed for daily indulgence.
Upstairs, tranquil bedrooms offer leafy views and flexible use for guests, home office, or creative studio. The garden level hosts a bright two-bedroom, one-bath residence, spacious living room, sleek kitchen outfitted with stainless-steel appliances, a deep soaking tub, in-unit washer and dryer, and direct access to the backyard. Whether used as a stylish guest suite or as an income-generating rental, this space offers remarkable flexibility.
Every detail of this elegant renovation has been meticulously curated — from zoned central air and built-in speakers to custom closets, restored moldings, double-pane windows, and wide-plank oak floors — all coming together to create a home that seamlessly balances luxury, comfort, and modern innovation.
With its restored pre-war façade, high-end finishes, and every modern upgrade, 707 Macon Street delivers a rare opportunity to own a turnkey Brooklyn home that celebrates both heritage and design.
One of the many perks of living here is the proximity to a diverse selection of excellent dining spots. Just minutes away you’ll find local gems like Trad Room, Laziza, Sonara, Bada Boom, Olmo, Dick & Jane’s and Chez Alex. Nearby parks offer courts and playgrounds, while the A/C trains, B26 bus, and a 20-minute drive to JFK ensure effortless connectivity.
Garden;
- Air Conditioning
- Garden
NeighborhoodMore listings:
Nestled on a tree lined block in Bedford Stuyvesant, 707 Macon Street has been thoughtfully gut renovated to blend historic charm with a fresh, modern sensibility.
DescriptionNestled on a tree-lined block in Bedford-Stuyvesant, 707 Macon Street has been thoughtfully gut-renovated to blend historic charm with a fresh, modern sensibility. This two-story townhouse offers 5 bedrooms across a generous layout, ideal for both everyday living and entertaining.
Inside, natural light floods through oversized windows, highlighting wide-plank hardwood floors and an open, airy flow. The heart of the home is the designer kitchen, featuring marble countertops, custom cabinetry, and premium Thermador stainless-steel appliances, including a six-burner stove. A Frigidaire wine fridge adds the perfect finishing touch, creating an ideal setting for both cooking and gathering.
Bathrooms are a study in style and craftsmanship: think spa-like walk-in showers clad in striking green tile, skylit soaking tubs, and warm wood vanities topped with stone counters. Each space feels serene, elevated, and designed for daily indulgence.
Upstairs, tranquil bedrooms offer leafy views and flexible use for guests, home office, or creative studio. The garden level hosts a bright two-bedroom, one-bath residence, spacious living room, sleek kitchen outfitted with stainless-steel appliances, a deep soaking tub, in-unit washer and dryer, and direct access to the backyard. Whether used as a stylish guest suite or as an income-generating rental, this space offers remarkable flexibility.
Every detail of this elegant renovation has been meticulously curated — from zoned central air and built-in speakers to custom closets, restored moldings, double-pane windows, and wide-plank oak floors — all coming together to create a home that seamlessly balances luxury, comfort, and modern innovation.
With its restored pre-war façade, high-end finishes, and every modern upgrade, 707 Macon Street delivers a rare opportunity to own a turnkey Brooklyn home that celebrates both heritage and design.
One of the many perks of living here is the proximity to a diverse selection of excellent dining spots. Just minutes away you’ll find local gems like Trad Room, Laziza, Sonara, Bada Boom, Olmo, Dick & Jane’s and Chez Alex. Nearby parks offer courts and playgrounds, while the A/C trains, B26 bus, and a 20-minute drive to JFK ensure effortless connectivity.AmenitiesGarden;- Air Conditioning
- Garden
NeighborhoodMore listings:
Nestled on a tree-lined block in Bedford-Stuyvesant, 707 Macon Street has been thoughtfully gut-renovated to blend historic charm with a fresh, modern sensibility. This two-story townhouse offers 5 bedrooms across a generous layout, ideal for both everyday living and entertaining.
Inside, natural light floods through oversized windows, highlighting wide-plank hardwood floors and an open, airy flow. The heart of the home is the designer kitchen, featuring marble countertops, custom cabinetry, and premium Thermador stainless-steel appliances, including a six-burner stove. A Frigidaire wine fridge adds the perfect finishing touch, creating an ideal setting for both cooking and gathering.
Bathrooms are a study in style and craftsmanship: think spa-like walk-in showers clad in striking green tile, skylit soaking tubs, and warm wood vanities topped with stone counters. Each space feels serene, elevated, and designed for daily indulgence.
Upstairs, tranquil bedrooms offer leafy views and flexible use for guests, home office, or creative studio. The garden level hosts a bright two-bedroom, one-bath residence, spacious living room, sleek kitchen outfitted with stainless-steel appliances, a deep soaking tub, in-unit washer and dryer, and direct access to the backyard. Whether used as a stylish guest suite or as an income-generating rental, this space offers remarkable flexibility.
Every detail of this elegant renovation has been meticulously curated — from zoned central air and built-in speakers to custom closets, restored moldings, double-pane windows, and wide-plank oak floors — all coming together to create a home that seamlessly balances luxury, comfort, and modern innovation.
With its restored pre-war façade, high-end finishes, and every modern upgrade, 707 Macon Street delivers a rare opportunity to own a turnkey Brooklyn home that celebrates both heritage and design.
One of the many perks of living here is the proximity to a diverse selection of excellent dining spots. Just minutes away you’ll find local gems like Trad Room, Laziza, Sonara, Bada Boom, Olmo, Dick & Jane’s and Chez Alex. Nearby parks offer courts and playgrounds, while the A/C trains, B26 bus, and a 20-minute drive to JFK ensure effortless connectivity.
Garden;
- Air Conditioning
- Garden
NeighborhoodMore listings:

RLS Data display by Nest Seekers LLC.
All information furnished regarding property for sale, rental or financing is from sources deemed reliable, but no warranty or representation is made as to the accuracy thereof and same is submitted subject to errors, omissions, change of price, rental or other conditions, prior sale, lease or financing or withdrawal without notice. International currency conversions where shown are estimates based on recent exchange rates and are not official asking prices.
All dimensions are approximate. For exact dimensions, you must hire your own architect or engineer.