Property
Type: | Unknown |
---|---|
Pets: | Pets No |
Financials
Listing Courtesy of Winkler Real Estate Inc
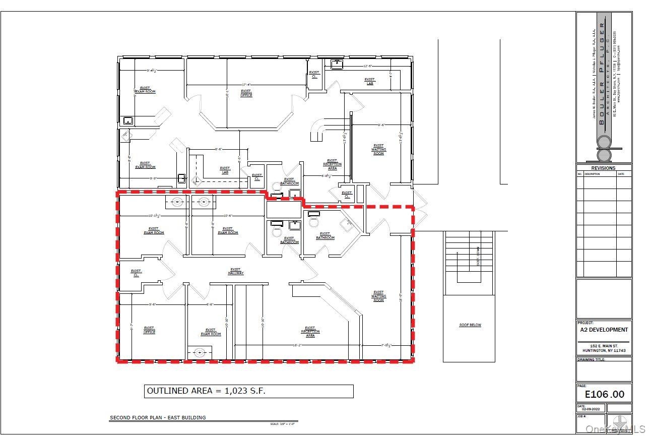
DescriptionRenovated 2 Story Professional Building with 14,000 Square Feet in the Heart of Huntington. Suitable for Office or Medical Tenant. Suite is on 2nd Floor with ADA Compliant Ramp Plus Stairs with 1,023 Square Feet. Rent is $3,580/Month Modified Gross Lease. Tenant to Pay $1.48/SF for CAM Charges and Their Proportionate Share of the Increase in Taxes. See Floor Plan for Lay-Out and Architectural Elevations. 54 Parking Spaces. Tenants Include a Neurologist, Dentist, Mental Health Counselor and Electronics Company.Amenities- Accessible Approach with Ramp
- Cleared
- Electricity Connected
- Level
- Sewer Connected
- Trash Collection Private
- Water Connected
Renovated 2 Story Professional Building with 14,000 Square Feet in the Heart of Huntington. Suitable for Office or Medical Tenant. Suite is on 2nd Floor with ADA Compliant Ramp Plus Stairs with 1,023 Square Feet. Rent is $3,580/Month Modified Gross Lease. Tenant to Pay $1.48/SF for CAM Charges and Their Proportionate Share of the Increase in Taxes. See Floor Plan for Lay-Out and Architectural Elevations. 54 Parking Spaces. Tenants Include a Neurologist, Dentist, Mental Health Counselor and Electronics Company.
- Accessible Approach with Ramp
- Cleared
- Electricity Connected
- Level
- Sewer Connected
- Trash Collection Private
- Water Connected
Renovated 2 Story Professional Building with 14, 000 Square Feet in the Heart of Huntington.

- View of side of property with board and batten siding
- View of room layout
- Bonus room featuring light wood-style floors and baseboards
- Hall featuring light wood-style flooring and a paneled ceiling
- Unfurnished room with a drop ceiling and light wood-style floors
- Bathroom featuring toilet
- Empty room featuring light wood finished floors, a paneled ceiling, and recessed lighting
- Spare room featuring light wood-style floors and a drop ceiling
- Spare room featuring light wood finished floors and a paneled ceiling
- 10
- Spare room with baseboards and light wood-style flooring
- Empty room featuring a paneled ceiling, light wood-style floors, and recessed lighting
- Corridor with light wood-type flooring and a paneled ceiling
- Spare room with light wood-style floors and a paneled ceiling
- View of building exterior
- View of property
- View of property
- Bird's eye view
- Exterior view
DescriptionRenovated 2 Story Professional Building with 14,000 Square Feet in the Heart of Huntington. Suitable for Office or Medical Tenant. Suite is on 2nd Floor with ADA Compliant Ramp Plus Stairs with 1,023 Square Feet. Rent is $3,580/Month Modified Gross Lease. Tenant to Pay $1.48/SF for CAM Charges and Their Proportionate Share of the Increase in Taxes. See Floor Plan for Lay-Out and Architectural Elevations. 54 Parking Spaces. Tenants Include a Neurologist, Dentist, Mental Health Counselor and Electronics Company.Amenities- Accessible Approach with Ramp
- Cleared
- Electricity Connected
- Level
- Sewer Connected
- Trash Collection Private
- Water Connected
Renovated 2 Story Professional Building with 14,000 Square Feet in the Heart of Huntington. Suitable for Office or Medical Tenant. Suite is on 2nd Floor with ADA Compliant Ramp Plus Stairs with 1,023 Square Feet. Rent is $3,580/Month Modified Gross Lease. Tenant to Pay $1.48/SF for CAM Charges and Their Proportionate Share of the Increase in Taxes. See Floor Plan for Lay-Out and Architectural Elevations. 54 Parking Spaces. Tenants Include a Neurologist, Dentist, Mental Health Counselor and Electronics Company.
- Accessible Approach with Ramp
- Cleared
- Electricity Connected
- Level
- Sewer Connected
- Trash Collection Private
- Water Connected

All information furnished regarding property for sale, rental or financing is from sources deemed reliable, but no warranty or representation is made as to the accuracy thereof and same is submitted subject to errors, omissions, change of price, rental or other conditions, prior sale, lease or financing or withdrawal without notice. International currency conversions where shown are estimates based on recent exchange rates and are not official asking prices.
All dimensions are approximate. For exact dimensions, you must hire your own architect or engineer.