Property
Type: | Unknown |
---|---|
Pets: | Pets No |
Financials
Rent:$20,000
Listing Courtesy of All Island Estates Realty Corp
Calling All End Users ! !

- View of uncovered parking lot
- View of workout area
- View of exercise room
- Aerial map of property and surrounding area
- View of sport court
- Map / location
- View of building exterior
- 8
- View of road
- View of room layout
- View of property
- View of asphalt street
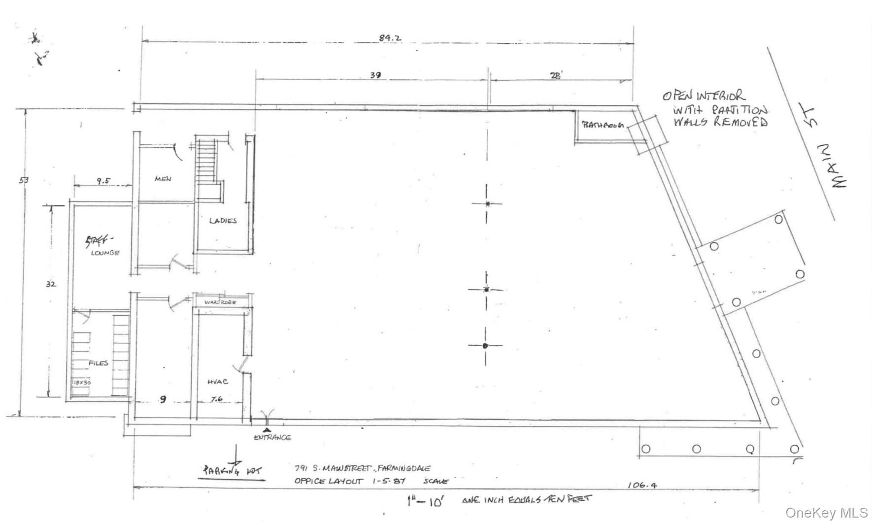
- View of floor plan / room layout
- View of property
- View of property at dusk
- View of building exterior
Description
Calling All End-Users!!! 5,500+ Sqft. Building Situated On A Huge 29,000+ Sqft. Lot With Huge 60 Car Parking Lot For Lease!!! Located In The Heart Of Farmingdale, The Property Offers Frontage On Both Main Street & Staples Street!!! The Building Offers An Open Layout Option Where Non Loadbearing Walls Can Be Taken Out To Create A Huge 4,000 + Sqft. Open Space Making This The Perfect Opportunity For Physical Therapists, Clinics, Contractors, Chiropractors, CrossFit, Gyms, & Was Previously Home To A Restaurant!!! The Space Currently Features A Large Bullpen, Reception Area, Tons Of Natural Light, Multiple Office Spaces, 3 Entrances, Waiting Room With Restrooms, Private Parking Lot, Kitchen, High 14' Ceilings, 3 Large Bathrooms, Move-In Ready, CAC, +++!!! The Property Is Located On Main Street Just Blocks From Route 109 & Route 110!!! The Property Offers Easy Access To The Southern State Pkwy. & Farmingdale's Republic Airport!!! Neighbors Include Starbucks, Marriott Hotels, Walmart, The Home Depot, Public Storage, Extra Space Storage, Dunkin’, Wendy’s, Applebee’s Bar & Grill, Regal Cinemas, UA Cinemas, Panera Bread, Ralph’s Italian Ices, Chili’s, Chipotle, Exxon, +++!!! The Building Can Be Subdivided If Need Be Depending On The Desired Tenant Use!!! Get It While It Lasts This Space Will Go VERY Fast!!!
None OF This Is To be Considered Investment Advice. Always Do Your Own Due Diligence Prior To Making Any Decisions.
Amenities
- Natural Gas Available

All information furnished regarding property for sale, rental or financing is from sources deemed reliable, but no warranty or representation is made as to the accuracy thereof and same is submitted subject to errors, omissions, change of price, rental or other conditions, prior sale, lease or financing or withdrawal without notice. International currency conversions where shown are estimates based on recent exchange rates and are not official asking prices.
All dimensions are approximate. For exact dimensions, you must hire your own architect or engineer.