Property
| Ownership: | For Sale |
|---|---|
| Type: | Unknown |
| Pets: | No Pets Allowed |
Financials
Listing Courtesy of All Island Estates Realty Corp
Calling All Investors, Developers amp ; End Users !
- View of uncovered parking lot
- Map / location featuring property boundaries highlighted
- View of workout area
- View of exercise room
- Aerial map of property and surrounding area
- View of sport court
- View of road
- Map / location
- View of building exterior
- View of street
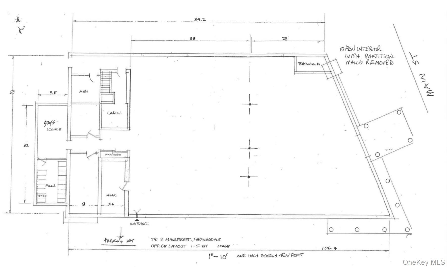
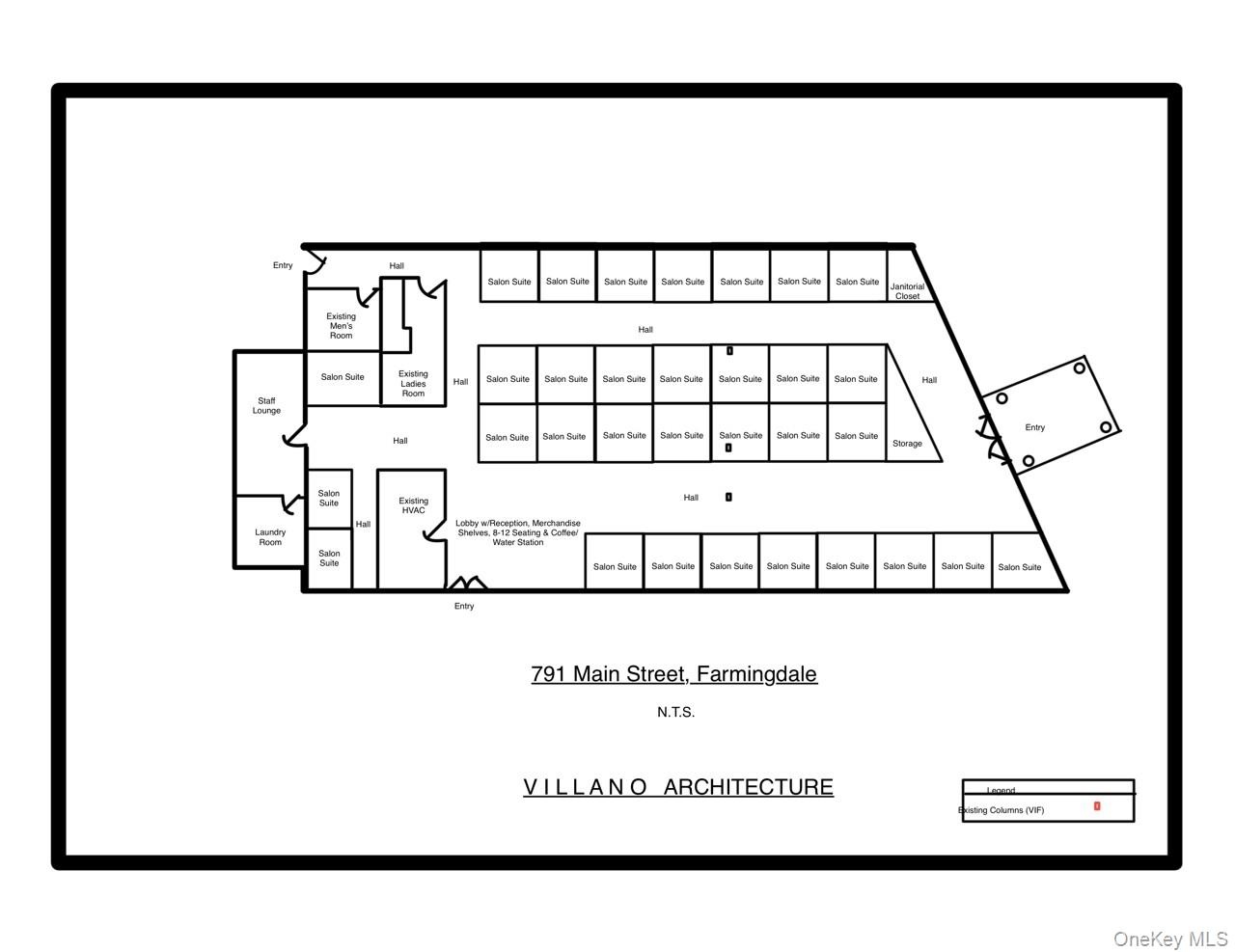
- View of room layout
- View of building exterior
- View of street
- View of asphalt street featuring sidewalks and curbs
- View of building exterior
- View of room layout
Description
Calling All Investors, Developers & End-Users!!! 30,000 Sqft. Development Site With 5,500+ Sqft. Building & Huge Parking Lot & Outdoor Storage For Sale On Main Street!!! The Property Offers Frontage On Both Main Street & Staples Street!!! The building Offers An Open Layout Option Where Non-Loadbearing Walls Can Be Taken Out To Create A Huge 5,000+ Sqft. Open Space Making This The Perfect Opportunity For Physical Therapists, Daycares, Clinics, Contractors, Chiropractors, CrossFit, Gyms, +++!!! The Property Was Previously Home To A Successful Restaurant!!! The Property Features Great Exposure, Excellent Signage, A Large Bullpen, Reception Area, Tons Of Natural Light, Multiple Offices, Waiting Room With Restrooms, Private Parking Lot, Kitchen, High 14’ Ceilings, 3 Large Bathrooms, All New LED Lighting, CAC, +++!!! The Property Is Located In The Heart Of Farmingdale On Main Street Just Blocks From Route 109 & Route 110!!! The Property Offers Easy Access To The Southern State Pkwy. & Farmingdale Republic Airport!!! Neighbors Include Starbucks, Marriott Hotels, Walmart, The Home Depot, Public Storage, Extra Space Storage, Dunkin’, Wendy’s, Applebee’s Bar & Grill, Regal Cinemas, UA Cinemas, Panera Bread, Ralph’s Italian Ices, Chili’s, Chipotle, Exxon, +++!!! The Property Is Zoned For Outdoor Storage Of Both Registered & Unregistered Vehicles!!! This Property Offers HUGE Upside Potential!!! This Could Be Your Next Development Site Or The Next Home For Your Business!!! None Of This Is To Be Considered Investment Advice. Always Do Your Own Due Diligence Prior To Making Any Decisions.
Income:
5,589 Sqft. Building + Yard: $240,000 Ann. NNN (Available)
Gross Income: $240,000 Ann. NNN
Expenses:
Taxes: $62,030.68 Ann.
Amenities
- Natural Gas Available

All information furnished regarding property for sale, rental or financing is from sources deemed reliable, but no warranty or representation is made as to the accuracy thereof and same is submitted subject to errors, omissions, change of price, rental or other conditions, prior sale, lease or financing or withdrawal without notice. International currency conversions where shown are estimates based on recent exchange rates and are not official asking prices.
All dimensions are approximate. For exact dimensions, you must hire your own architect or engineer.