Building
Type: | Mid-rise |
---|---|
Era: | Pre-war |
Floors: | 14 |
Property
Ownership: | Co-op |
---|---|
Rooms: | 5 |
Bedrooms: | 2 BR |
Bathrooms: | 1 |
Pets: | Pets Allowed |
Financials
24-20 Jackson Ave Floor 3
Long Island City, NY 11101, USA
Phone: +1 929-442-2208
Listing Courtesy of Corcoran Group
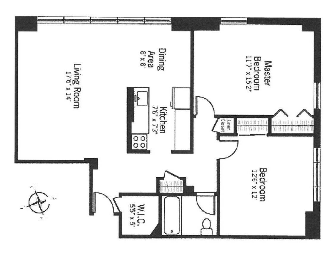
DescriptionPerched on a high floor, this bright and airy 2-bedroom, 1-bath residence offers open views and abundant natural light from its east and north exposures. The expansive living room and open dining area are framed by a wall of oversized, horizontally sliding glass windows that span the full length of both rooms - perfect for soaking in morning light and capturing striking views of the skyline.
The renovated galley kitchen is thoughtfully designed with modern finishes, a dishwasher, and shares the same sweeping views, creating a seamless flow for cooking, dining, and entertaining.
Both generously sized bedrooms easily accommodate king-size beds & furnishings and offer impressive views of the RFK Bridge and beyond. The full-size bathroom is nicely decorated with a white pedestal sink, large vanity mirrors and tiled flooring. Storage is incredible, having an enormous walk-in foyer closet, double closets in each bedroom, and two hallway closets.
Set within an elevator building in North Queensview Homes, Inc, residents enjoy access to a central laundry room, bike and carriage storage, and beautifully landscaped grounds with outdoor seating. The co-op also features a security patrol, live-in superintendent, dedicated maintenance staff, a community room and an outdoor modern playground. Your furry companions are permitted, limit to 2 dogs!
Located in the heart of Astoria, this well-maintained cooperative is within close proximity to multiple subway lines (N, W, F, R, 7), bus routes, and the NYC Ferry. Enjoy easy access to neighborhood favorites like Socrates Sculpture Park, Rainey Park, Astoria Park, The Noguchi Museum, Museum of the Moving Image, vibrant cafes and restaurants, and scenic bicycle paths.
A fantastic opportunity to enjoy space, views, light, and community in one of Queens' most sought-after neighborhoods.
Open Houses by appointment.
AmenitiesBike Room; Outdoor Parking; Garden; Laundry Room; Playground;- Elevator
- Garden
- Laundry Room
- Video Intercom
NeighborhoodMore listings:
Perched on a high floor, this bright and airy 2-bedroom, 1-bath residence offers open views and abundant natural light from its east and north exposures. The expansive living room and open dining area are framed by a wall of oversized, horizontally sliding glass windows that span the full length of both rooms - perfect for soaking in morning light and capturing striking views of the skyline.
The renovated galley kitchen is thoughtfully designed with modern finishes, a dishwasher, and shares the same sweeping views, creating a seamless flow for cooking, dining, and entertaining.
Both generously sized bedrooms easily accommodate king-size beds & furnishings and offer impressive views of the RFK Bridge and beyond. The full-size bathroom is nicely decorated with a white pedestal sink, large vanity mirrors and tiled flooring. Storage is incredible, having an enormous walk-in foyer closet, double closets in each bedroom, and two hallway closets.
Set within an elevator building in North Queensview Homes, Inc, residents enjoy access to a central laundry room, bike and carriage storage, and beautifully landscaped grounds with outdoor seating. The co-op also features a security patrol, live-in superintendent, dedicated maintenance staff, a community room and an outdoor modern playground. Your furry companions are permitted, limit to 2 dogs!
Located in the heart of Astoria, this well-maintained cooperative is within close proximity to multiple subway lines (N, W, F, R, 7), bus routes, and the NYC Ferry. Enjoy easy access to neighborhood favorites like Socrates Sculpture Park, Rainey Park, Astoria Park, The Noguchi Museum, Museum of the Moving Image, vibrant cafes and restaurants, and scenic bicycle paths.
A fantastic opportunity to enjoy space, views, light, and community in one of Queens' most sought-after neighborhoods.
Open Houses by appointment.
The renovated galley kitchen is thoughtfully designed with modern finishes, a dishwasher, and shares the same sweeping views, creating a seamless flow for cooking, dining, and entertaining.
Both generously sized bedrooms easily accommodate king-size beds & furnishings and offer impressive views of the RFK Bridge and beyond. The full-size bathroom is nicely decorated with a white pedestal sink, large vanity mirrors and tiled flooring. Storage is incredible, having an enormous walk-in foyer closet, double closets in each bedroom, and two hallway closets.
Set within an elevator building in North Queensview Homes, Inc, residents enjoy access to a central laundry room, bike and carriage storage, and beautifully landscaped grounds with outdoor seating. The co-op also features a security patrol, live-in superintendent, dedicated maintenance staff, a community room and an outdoor modern playground. Your furry companions are permitted, limit to 2 dogs!
Located in the heart of Astoria, this well-maintained cooperative is within close proximity to multiple subway lines (N, W, F, R, 7), bus routes, and the NYC Ferry. Enjoy easy access to neighborhood favorites like Socrates Sculpture Park, Rainey Park, Astoria Park, The Noguchi Museum, Museum of the Moving Image, vibrant cafes and restaurants, and scenic bicycle paths.
A fantastic opportunity to enjoy space, views, light, and community in one of Queens' most sought-after neighborhoods.
Open Houses by appointment.
Bike Room; Outdoor Parking; Garden; Laundry Room; Playground;
- Elevator
- Garden
- Laundry Room
- Video Intercom
NeighborhoodMore listings:
Perched on a high floor, this bright and airy 2 bedroom, 1 bath residence offers open views and abundant natural light from its east and north exposures.
DescriptionPerched on a high floor, this bright and airy 2-bedroom, 1-bath residence offers open views and abundant natural light from its east and north exposures. The expansive living room and open dining area are framed by a wall of oversized, horizontally sliding glass windows that span the full length of both rooms - perfect for soaking in morning light and capturing striking views of the skyline.
The renovated galley kitchen is thoughtfully designed with modern finishes, a dishwasher, and shares the same sweeping views, creating a seamless flow for cooking, dining, and entertaining.
Both generously sized bedrooms easily accommodate king-size beds & furnishings and offer impressive views of the RFK Bridge and beyond. The full-size bathroom is nicely decorated with a white pedestal sink, large vanity mirrors and tiled flooring. Storage is incredible, having an enormous walk-in foyer closet, double closets in each bedroom, and two hallway closets.
Set within an elevator building in North Queensview Homes, Inc, residents enjoy access to a central laundry room, bike and carriage storage, and beautifully landscaped grounds with outdoor seating. The co-op also features a security patrol, live-in superintendent, dedicated maintenance staff, a community room and an outdoor modern playground. Your furry companions are permitted, limit to 2 dogs!
Located in the heart of Astoria, this well-maintained cooperative is within close proximity to multiple subway lines (N, W, F, R, 7), bus routes, and the NYC Ferry. Enjoy easy access to neighborhood favorites like Socrates Sculpture Park, Rainey Park, Astoria Park, The Noguchi Museum, Museum of the Moving Image, vibrant cafes and restaurants, and scenic bicycle paths.
A fantastic opportunity to enjoy space, views, light, and community in one of Queens' most sought-after neighborhoods.
Open Houses by appointment.
AmenitiesBike Room; Outdoor Parking; Garden; Laundry Room; Playground;- Elevator
- Garden
- Laundry Room
- Video Intercom
NeighborhoodMore listings:
Perched on a high floor, this bright and airy 2-bedroom, 1-bath residence offers open views and abundant natural light from its east and north exposures. The expansive living room and open dining area are framed by a wall of oversized, horizontally sliding glass windows that span the full length of both rooms - perfect for soaking in morning light and capturing striking views of the skyline.
The renovated galley kitchen is thoughtfully designed with modern finishes, a dishwasher, and shares the same sweeping views, creating a seamless flow for cooking, dining, and entertaining.
Both generously sized bedrooms easily accommodate king-size beds & furnishings and offer impressive views of the RFK Bridge and beyond. The full-size bathroom is nicely decorated with a white pedestal sink, large vanity mirrors and tiled flooring. Storage is incredible, having an enormous walk-in foyer closet, double closets in each bedroom, and two hallway closets.
Set within an elevator building in North Queensview Homes, Inc, residents enjoy access to a central laundry room, bike and carriage storage, and beautifully landscaped grounds with outdoor seating. The co-op also features a security patrol, live-in superintendent, dedicated maintenance staff, a community room and an outdoor modern playground. Your furry companions are permitted, limit to 2 dogs!
Located in the heart of Astoria, this well-maintained cooperative is within close proximity to multiple subway lines (N, W, F, R, 7), bus routes, and the NYC Ferry. Enjoy easy access to neighborhood favorites like Socrates Sculpture Park, Rainey Park, Astoria Park, The Noguchi Museum, Museum of the Moving Image, vibrant cafes and restaurants, and scenic bicycle paths.
A fantastic opportunity to enjoy space, views, light, and community in one of Queens' most sought-after neighborhoods.
Open Houses by appointment.
The renovated galley kitchen is thoughtfully designed with modern finishes, a dishwasher, and shares the same sweeping views, creating a seamless flow for cooking, dining, and entertaining.
Both generously sized bedrooms easily accommodate king-size beds & furnishings and offer impressive views of the RFK Bridge and beyond. The full-size bathroom is nicely decorated with a white pedestal sink, large vanity mirrors and tiled flooring. Storage is incredible, having an enormous walk-in foyer closet, double closets in each bedroom, and two hallway closets.
Set within an elevator building in North Queensview Homes, Inc, residents enjoy access to a central laundry room, bike and carriage storage, and beautifully landscaped grounds with outdoor seating. The co-op also features a security patrol, live-in superintendent, dedicated maintenance staff, a community room and an outdoor modern playground. Your furry companions are permitted, limit to 2 dogs!
Located in the heart of Astoria, this well-maintained cooperative is within close proximity to multiple subway lines (N, W, F, R, 7), bus routes, and the NYC Ferry. Enjoy easy access to neighborhood favorites like Socrates Sculpture Park, Rainey Park, Astoria Park, The Noguchi Museum, Museum of the Moving Image, vibrant cafes and restaurants, and scenic bicycle paths.
A fantastic opportunity to enjoy space, views, light, and community in one of Queens' most sought-after neighborhoods.
Open Houses by appointment.
Bike Room; Outdoor Parking; Garden; Laundry Room; Playground;
- Elevator
- Garden
- Laundry Room
- Video Intercom
NeighborhoodMore listings:

RLS Data display by Nest Seekers LLC.
All information furnished regarding property for sale, rental or financing is from sources deemed reliable, but no warranty or representation is made as to the accuracy thereof and same is submitted subject to errors, omissions, change of price, rental or other conditions, prior sale, lease or financing or withdrawal without notice. International currency conversions where shown are estimates based on recent exchange rates and are not official asking prices.
All dimensions are approximate. For exact dimensions, you must hire your own architect or engineer.