Building
Type: | Townhouse |
---|---|
Era: | Post-war |
Floors: | 3 |
Property
Ownership: | Single Family |
---|---|
Rooms: | 11 |
Bedrooms: | Studio |
Pets: | Pets Unknown |
FinancialsPrice:$3,250,000Real estate tax:$4,692
Price:$3,250,000
Real estate tax:$4,692
Listing Courtesy of Compass
DescriptionWelcome to 640 Prospect Place – a rare opportunity to own a stunning single family townhouse in the heart of Crown Heights.
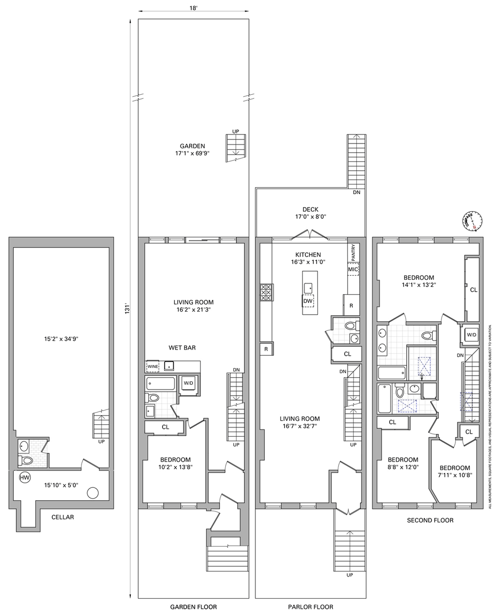
Originally built in 1901, this elegant townhouse sits on a tree-lined block in the heart of Crown Heights. Spanning three stories plus a finished cellar, the home offers a perfect balance of preserved historic detail and modern comfort, creating an inviting space for today’s homeowner.
The parlor level welcomes you through original double doors into a gracious living room adorned with soaring ceilings, ornate crown moldings, and a decorative fireplace that speaks to the home’s historic charm. Flowing seamlessly from the living space, the formal dining area is ideal for family gatherings and entertaining. At the rear, a thoughtfully renovated kitchen features integrated appliances, custom cabinetry, and generous marble counter space. A glass door opens to a private deck that overlooks the lush, extra-deep backyard—perfect for summer dining, play, or quiet retreat.
Upstairs, you will find three bedrooms, each offering its own character and flexibility. The primary bedroom overlooks the garden and is bathed in natural light, with ample closet space and an ensuite bathroom. Additional bedrooms provide room for family, guests, or a home office, and are complemented by a full bathroom with artistic stylish design.
The garden floor offers an inviting extension of the home, with one bedroom, complete with a wet bar, comfortable living area, and direct access to the backyard. This level is perfect for casual entertaining, a media room, or a private guest suite.
The finished cellar offers a versatile space that can function as a recreation room, home gym, or office. With its tall ceilings, powder room, and storage, it adds comfort and convenience to the home’s layout.
Located on Prospect Place, the home is surrounded by the neighborhood’s best dining, cafés, and cultural attractions. Local favorites such as Mayfield, RAS Plant based and Chavela’s are just moments away, and Prospect Park, the Brooklyn Museum, and the Botanic Garden are within easy reach. The 2, 3, 4, 5 and S trains at Franklin Avenue provide a quick commute to Manhattan and beyond.
640 Prospect Place offers the rare opportunity to own a historic Brooklyn townhouse that combines timeless architectural detail, modern updates, and a flexible layout—an ideal setting for refined living in one of Brooklyn’s most vibrant neighborhoods.AmenitiesGarden;- Air Conditioning
- Garden
NeighborhoodMore listings:
Welcome to 640 Prospect Place – a rare opportunity to own a stunning single family townhouse in the heart of Crown Heights.
Originally built in 1901, this elegant townhouse sits on a tree-lined block in the heart of Crown Heights. Spanning three stories plus a finished cellar, the home offers a perfect balance of preserved historic detail and modern comfort, creating an inviting space for today’s homeowner.
The parlor level welcomes you through original double doors into a gracious living room adorned with soaring ceilings, ornate crown moldings, and a decorative fireplace that speaks to the home’s historic charm. Flowing seamlessly from the living space, the formal dining area is ideal for family gatherings and entertaining. At the rear, a thoughtfully renovated kitchen features integrated appliances, custom cabinetry, and generous marble counter space. A glass door opens to a private deck that overlooks the lush, extra-deep backyard—perfect for summer dining, play, or quiet retreat.
Upstairs, you will find three bedrooms, each offering its own character and flexibility. The primary bedroom overlooks the garden and is bathed in natural light, with ample closet space and an ensuite bathroom. Additional bedrooms provide room for family, guests, or a home office, and are complemented by a full bathroom with artistic stylish design.
The garden floor offers an inviting extension of the home, with one bedroom, complete with a wet bar, comfortable living area, and direct access to the backyard. This level is perfect for casual entertaining, a media room, or a private guest suite.
The finished cellar offers a versatile space that can function as a recreation room, home gym, or office. With its tall ceilings, powder room, and storage, it adds comfort and convenience to the home’s layout.
Located on Prospect Place, the home is surrounded by the neighborhood’s best dining, cafés, and cultural attractions. Local favorites such as Mayfield, RAS Plant based and Chavela’s are just moments away, and Prospect Park, the Brooklyn Museum, and the Botanic Garden are within easy reach. The 2, 3, 4, 5 and S trains at Franklin Avenue provide a quick commute to Manhattan and beyond.
640 Prospect Place offers the rare opportunity to own a historic Brooklyn townhouse that combines timeless architectural detail, modern updates, and a flexible layout—an ideal setting for refined living in one of Brooklyn’s most vibrant neighborhoods.
Garden;
- Air Conditioning
- Garden
NeighborhoodMore listings:
Welcome to 640 Prospect Place a rare opportunity to own a stunning single family townhouse in the heart of Crown Heights.
DescriptionWelcome to 640 Prospect Place – a rare opportunity to own a stunning single family townhouse in the heart of Crown Heights.
Originally built in 1901, this elegant townhouse sits on a tree-lined block in the heart of Crown Heights. Spanning three stories plus a finished cellar, the home offers a perfect balance of preserved historic detail and modern comfort, creating an inviting space for today’s homeowner.
The parlor level welcomes you through original double doors into a gracious living room adorned with soaring ceilings, ornate crown moldings, and a decorative fireplace that speaks to the home’s historic charm. Flowing seamlessly from the living space, the formal dining area is ideal for family gatherings and entertaining. At the rear, a thoughtfully renovated kitchen features integrated appliances, custom cabinetry, and generous marble counter space. A glass door opens to a private deck that overlooks the lush, extra-deep backyard—perfect for summer dining, play, or quiet retreat.
Upstairs, you will find three bedrooms, each offering its own character and flexibility. The primary bedroom overlooks the garden and is bathed in natural light, with ample closet space and an ensuite bathroom. Additional bedrooms provide room for family, guests, or a home office, and are complemented by a full bathroom with artistic stylish design.
The garden floor offers an inviting extension of the home, with one bedroom, complete with a wet bar, comfortable living area, and direct access to the backyard. This level is perfect for casual entertaining, a media room, or a private guest suite.
The finished cellar offers a versatile space that can function as a recreation room, home gym, or office. With its tall ceilings, powder room, and storage, it adds comfort and convenience to the home’s layout.
Located on Prospect Place, the home is surrounded by the neighborhood’s best dining, cafés, and cultural attractions. Local favorites such as Mayfield, RAS Plant based and Chavela’s are just moments away, and Prospect Park, the Brooklyn Museum, and the Botanic Garden are within easy reach. The 2, 3, 4, 5 and S trains at Franklin Avenue provide a quick commute to Manhattan and beyond.
640 Prospect Place offers the rare opportunity to own a historic Brooklyn townhouse that combines timeless architectural detail, modern updates, and a flexible layout—an ideal setting for refined living in one of Brooklyn’s most vibrant neighborhoods.AmenitiesGarden;- Air Conditioning
- Garden
NeighborhoodMore listings:
Welcome to 640 Prospect Place – a rare opportunity to own a stunning single family townhouse in the heart of Crown Heights.
Originally built in 1901, this elegant townhouse sits on a tree-lined block in the heart of Crown Heights. Spanning three stories plus a finished cellar, the home offers a perfect balance of preserved historic detail and modern comfort, creating an inviting space for today’s homeowner.
The parlor level welcomes you through original double doors into a gracious living room adorned with soaring ceilings, ornate crown moldings, and a decorative fireplace that speaks to the home’s historic charm. Flowing seamlessly from the living space, the formal dining area is ideal for family gatherings and entertaining. At the rear, a thoughtfully renovated kitchen features integrated appliances, custom cabinetry, and generous marble counter space. A glass door opens to a private deck that overlooks the lush, extra-deep backyard—perfect for summer dining, play, or quiet retreat.
Upstairs, you will find three bedrooms, each offering its own character and flexibility. The primary bedroom overlooks the garden and is bathed in natural light, with ample closet space and an ensuite bathroom. Additional bedrooms provide room for family, guests, or a home office, and are complemented by a full bathroom with artistic stylish design.
The garden floor offers an inviting extension of the home, with one bedroom, complete with a wet bar, comfortable living area, and direct access to the backyard. This level is perfect for casual entertaining, a media room, or a private guest suite.
The finished cellar offers a versatile space that can function as a recreation room, home gym, or office. With its tall ceilings, powder room, and storage, it adds comfort and convenience to the home’s layout.
Located on Prospect Place, the home is surrounded by the neighborhood’s best dining, cafés, and cultural attractions. Local favorites such as Mayfield, RAS Plant based and Chavela’s are just moments away, and Prospect Park, the Brooklyn Museum, and the Botanic Garden are within easy reach. The 2, 3, 4, 5 and S trains at Franklin Avenue provide a quick commute to Manhattan and beyond.
640 Prospect Place offers the rare opportunity to own a historic Brooklyn townhouse that combines timeless architectural detail, modern updates, and a flexible layout—an ideal setting for refined living in one of Brooklyn’s most vibrant neighborhoods.
Garden;
- Air Conditioning
- Garden
NeighborhoodMore listings:

RLS Data display by Nest Seekers LLC.
All information furnished regarding property for sale, rental or financing is from sources deemed reliable, but no warranty or representation is made as to the accuracy thereof and same is submitted subject to errors, omissions, change of price, rental or other conditions, prior sale, lease or financing or withdrawal without notice. International currency conversions where shown are estimates based on recent exchange rates and are not official asking prices.
All dimensions are approximate. For exact dimensions, you must hire your own architect or engineer.