Building
Type: | Apartment |
---|---|
Era: | Post-war |
Property
Ownership: | Unknown |
---|---|
Rooms: | 10 |
Bedrooms: | Studio |
Pets: | Pets Unknown |
FinancialsPrice:$4,399,000
Price:$4,399,000
Listing Courtesy of Compass
DescriptionWelcome to 286 Dekalb Avenue — where historic detail meets modern luxury.
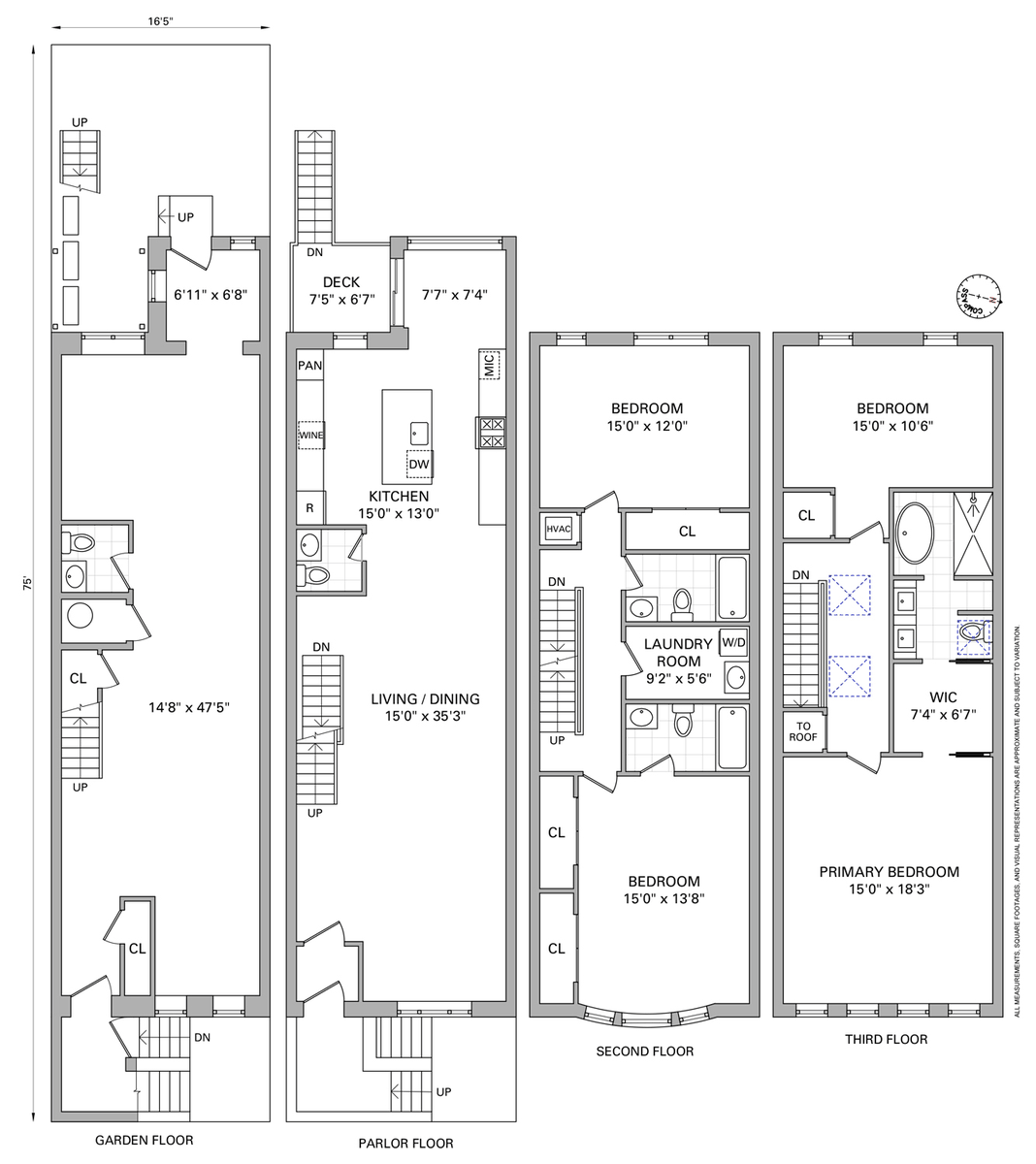
Originally built in 1901, this Queen Anne–style townhouse is a thoughtfully reimagined single-family residence offering four bedrooms, three full bathrooms, and two half bathrooms. Designed for both elegant entertaining and everyday living, the home masterfully balances preserved architectural charm with contemporary upgrades.
The parlor level greets you with nearly 10-foot ceilings, stained glass windows, and herringbone white oak floors. An open layout flows seamlessly into the chef’s kitchen, appointed with marble countertops, custom cabinetry, and a premium appliance suite that includes a Wolf six-burner range, integrated Bosch 36” refrigerator, integrated Bosch dishwasher, Sharp microwave drawer, pot filler, and Summit wine cooler. A stylish powder room and a rear extension—ideal for a breakfast nook or home office—complete this level.
The second floor hosts two well-proportioned bedrooms, one with a private en-suite bath, a second hallway bathroom, and a conveniently placed laundry room that enhances everyday ease. The top floor is dedicated to the serene primary suite, featuring a walk-through closet, and a spa-like en-suite bathroom with a double vanity, soaking tub, and tiled shower. An additional bedroom offers flexibility for guests or as a home office.
The finished cellar provides additional living space with a powder room and modern security system—perfect for a media room, gym, or playroom.
Throughout the residence, warm wood flooring, brass hardware, custom millwork, and designer lighting elevate the interiors, while stained glass details add a timeless artistic touch.
Located on a tree-lined block in Clinton Hill and just moments from Fort Greene Park, 286 Dekalb is surrounded by neighborhood favorites including Place des Fêtes, Saraghina, Sailor, Aita, Evelina, and Izzy Rose. With easy access to the C and G trains, multiple bus lines, and nearby bike lanes, the home offers both convenience and connectivity in one of Brooklyn’s most storied neighborhoods.Amenities- Air Conditioning
- Laundry Room
NeighborhoodMore listings:
Welcome to 286 Dekalb Avenue — where historic detail meets modern luxury.
Originally built in 1901, this Queen Anne–style townhouse is a thoughtfully reimagined single-family residence offering four bedrooms, three full bathrooms, and two half bathrooms. Designed for both elegant entertaining and everyday living, the home masterfully balances preserved architectural charm with contemporary upgrades.
The parlor level greets you with nearly 10-foot ceilings, stained glass windows, and herringbone white oak floors. An open layout flows seamlessly into the chef’s kitchen, appointed with marble countertops, custom cabinetry, and a premium appliance suite that includes a Wolf six-burner range, integrated Bosch 36” refrigerator, integrated Bosch dishwasher, Sharp microwave drawer, pot filler, and Summit wine cooler. A stylish powder room and a rear extension—ideal for a breakfast nook or home office—complete this level.
The second floor hosts two well-proportioned bedrooms, one with a private en-suite bath, a second hallway bathroom, and a conveniently placed laundry room that enhances everyday ease. The top floor is dedicated to the serene primary suite, featuring a walk-through closet, and a spa-like en-suite bathroom with a double vanity, soaking tub, and tiled shower. An additional bedroom offers flexibility for guests or as a home office.
The finished cellar provides additional living space with a powder room and modern security system—perfect for a media room, gym, or playroom.
Throughout the residence, warm wood flooring, brass hardware, custom millwork, and designer lighting elevate the interiors, while stained glass details add a timeless artistic touch.
Located on a tree-lined block in Clinton Hill and just moments from Fort Greene Park, 286 Dekalb is surrounded by neighborhood favorites including Place des Fêtes, Saraghina, Sailor, Aita, Evelina, and Izzy Rose. With easy access to the C and G trains, multiple bus lines, and nearby bike lanes, the home offers both convenience and connectivity in one of Brooklyn’s most storied neighborhoods.
- Air Conditioning
- Laundry Room
NeighborhoodMore listings:
Welcome to 286 Dekalb Avenue where historic detail meets modern luxury.
DescriptionWelcome to 286 Dekalb Avenue — where historic detail meets modern luxury.
Originally built in 1901, this Queen Anne–style townhouse is a thoughtfully reimagined single-family residence offering four bedrooms, three full bathrooms, and two half bathrooms. Designed for both elegant entertaining and everyday living, the home masterfully balances preserved architectural charm with contemporary upgrades.
The parlor level greets you with nearly 10-foot ceilings, stained glass windows, and herringbone white oak floors. An open layout flows seamlessly into the chef’s kitchen, appointed with marble countertops, custom cabinetry, and a premium appliance suite that includes a Wolf six-burner range, integrated Bosch 36” refrigerator, integrated Bosch dishwasher, Sharp microwave drawer, pot filler, and Summit wine cooler. A stylish powder room and a rear extension—ideal for a breakfast nook or home office—complete this level.
The second floor hosts two well-proportioned bedrooms, one with a private en-suite bath, a second hallway bathroom, and a conveniently placed laundry room that enhances everyday ease. The top floor is dedicated to the serene primary suite, featuring a walk-through closet, and a spa-like en-suite bathroom with a double vanity, soaking tub, and tiled shower. An additional bedroom offers flexibility for guests or as a home office.
The finished cellar provides additional living space with a powder room and modern security system—perfect for a media room, gym, or playroom.
Throughout the residence, warm wood flooring, brass hardware, custom millwork, and designer lighting elevate the interiors, while stained glass details add a timeless artistic touch.
Located on a tree-lined block in Clinton Hill and just moments from Fort Greene Park, 286 Dekalb is surrounded by neighborhood favorites including Place des Fêtes, Saraghina, Sailor, Aita, Evelina, and Izzy Rose. With easy access to the C and G trains, multiple bus lines, and nearby bike lanes, the home offers both convenience and connectivity in one of Brooklyn’s most storied neighborhoods.Amenities- Air Conditioning
- Laundry Room
NeighborhoodMore listings:
Welcome to 286 Dekalb Avenue — where historic detail meets modern luxury.
Originally built in 1901, this Queen Anne–style townhouse is a thoughtfully reimagined single-family residence offering four bedrooms, three full bathrooms, and two half bathrooms. Designed for both elegant entertaining and everyday living, the home masterfully balances preserved architectural charm with contemporary upgrades.
The parlor level greets you with nearly 10-foot ceilings, stained glass windows, and herringbone white oak floors. An open layout flows seamlessly into the chef’s kitchen, appointed with marble countertops, custom cabinetry, and a premium appliance suite that includes a Wolf six-burner range, integrated Bosch 36” refrigerator, integrated Bosch dishwasher, Sharp microwave drawer, pot filler, and Summit wine cooler. A stylish powder room and a rear extension—ideal for a breakfast nook or home office—complete this level.
The second floor hosts two well-proportioned bedrooms, one with a private en-suite bath, a second hallway bathroom, and a conveniently placed laundry room that enhances everyday ease. The top floor is dedicated to the serene primary suite, featuring a walk-through closet, and a spa-like en-suite bathroom with a double vanity, soaking tub, and tiled shower. An additional bedroom offers flexibility for guests or as a home office.
The finished cellar provides additional living space with a powder room and modern security system—perfect for a media room, gym, or playroom.
Throughout the residence, warm wood flooring, brass hardware, custom millwork, and designer lighting elevate the interiors, while stained glass details add a timeless artistic touch.
Located on a tree-lined block in Clinton Hill and just moments from Fort Greene Park, 286 Dekalb is surrounded by neighborhood favorites including Place des Fêtes, Saraghina, Sailor, Aita, Evelina, and Izzy Rose. With easy access to the C and G trains, multiple bus lines, and nearby bike lanes, the home offers both convenience and connectivity in one of Brooklyn’s most storied neighborhoods.
- Air Conditioning
- Laundry Room
NeighborhoodMore listings:

RLS Data display by Nest Seekers LLC.
All information furnished regarding property for sale, rental or financing is from sources deemed reliable, but no warranty or representation is made as to the accuracy thereof and same is submitted subject to errors, omissions, change of price, rental or other conditions, prior sale, lease or financing or withdrawal without notice. International currency conversions where shown are estimates based on recent exchange rates and are not official asking prices.
All dimensions are approximate. For exact dimensions, you must hire your own architect or engineer.