Building
Type: | Townhouse |
---|---|
Era: | Post-war |
Floors: | 4 |
Property
Ownership: | Multi-Family |
---|---|
Rooms: | 10 |
Bedrooms: | Studio |
Pets: | Pets Unknown |
FinancialsPrice:$4,199,000Real estate tax:$6,455
Price:$4,199,000
Real estate tax:$6,455
Listing Courtesy of Compass
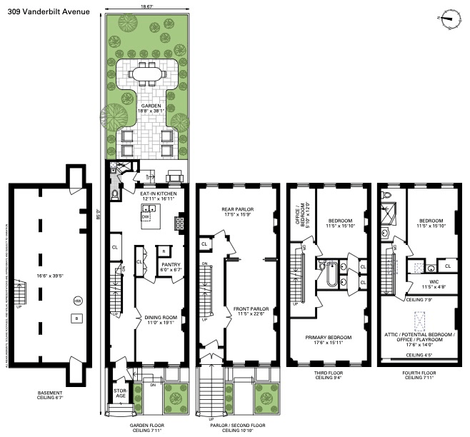
Description309 Vanderbilt Avenue is a classic & historic four story Neo-Grec style brownstone located in Prime Clinton Hill/Fort Greene. From the street it looks like a three story but the top floor is set back so it cannot be seen from the street. Built in the 1877 by the developer Benjamin Linikin, it has the classic exterior details such as a high stoop, enormous double doors, round-arched reveals, and pediments on incised brackets. Owned by this family for over 50 years, everything is in good working order and has been well maintained. There are tons of original architectural details in the interior, Many of the rooms have marble mantles & fireplaces ( nonworking).The interior reads as it was in 1877, all the details remain: parlor pocket doors, wedding cake plaster ceiling detail, all the original entry way doors and interior doors, and stairway bannisters to name a few. Some of the original light fixtures date back to before electricity and were gas. 309 has been used as a single family although it is a two family legally. It would be easy to use as a two family and create a first floor rental. The building measures 18.7x45 feet and the lot is 85 feet. Size wise it is about 3200 interior square feet with 4 bedrooms and a potential 5th bedroom, 3 baths and a large rear yard.The first floor is the garden level and has a formal dining room and large eat in kitchen with a door to the garden. The kitchen has an enormous island and plenty of room for a large sized table too and also worthy of note, a huge walk in pantry. The dining room is in the front looking out to Vanderbilt Avenue and has a marble mantel fireplace. There is a small but full bath off the kitchen with a shower. The second floor is the parlor floor which has a front and rear parlor. Both have lots of period details with lavish plaster ceiling detail, huge pocket doors and fretting, two marble mantel fireplaces (not working) and face east and west. The third floor has three bedrooms and a hallway bathroom with a classic Waterworks-esque clawfoot bath tub with a chrome exposed shower and rainhead. In true Victorian fashion, the marble topped vanities and sinks are separate from the hallway bath and are in their original location, the hallway behind the bath. If one wanted to redo the bath and enlarge,/reorganize it, there are several closets that back onto the bath, making a redesign pretty accessible. The fourth floor has a large tiled and windowed bath with a shower stall and an east facing bedroom. There is the potential for the 5th bedroom/playroom/office in the sloped ceilinged front room used as an attic. While it has a peaked ceiling as a result of the aforementioned set back, It has a skylight and could easily converted into a bedroom, office or playroom. 309 is located on one of the most ideal blocks, midway between Dekalb Ave and Lafayette. It is close to everything including, shopping, stores, and the areas reknown restaurants. It is also very close to the historic Fort Greene Park and all the weekend activities like the Farmers Market.
Layout Per Floor:
First floor kitchen, powder room/full bath , dining room , yard
Second floor: Double parlor
Third floor: 2 bedrooms and office/bedroom, hallway bath with claw foot tub
Fourth floor: bath with shower, large bedroom & Attic with skylight,
potential 5th bedroom.
Building Info:
Building dimensions 18.7 x 45
Lot dimensions. 18.7 x85
Approx SF 3200
Direction: east/west
Block: between Dekalb and Lafayette
Floors 4 ,(Top floor not visable from street)
Families 2
Garden length 40FT
Taxes $6455
Landmarked yes
Mechanicals: goodAmenitiesGarden;- Garden
NeighborhoodMore listings:
309 Vanderbilt Avenue is a classic & historic four story Neo-Grec style brownstone located in Prime Clinton Hill/Fort Greene. From the street it looks like a three story but the top floor is set back so it cannot be seen from the street. Built in the 1877 by the developer Benjamin Linikin, it has the classic exterior details such as a high stoop, enormous double doors, round-arched reveals, and pediments on incised brackets. Owned by this family for over 50 years, everything is in good working order and has been well maintained. There are tons of original architectural details in the interior, Many of the rooms have marble mantles & fireplaces ( nonworking).The interior reads as it was in 1877, all the details remain: parlor pocket doors, wedding cake plaster ceiling detail, all the original entry way doors and interior doors, and stairway bannisters to name a few. Some of the original light fixtures date back to before electricity and were gas. 309 has been used as a single family although it is a two family legally. It would be easy to use as a two family and create a first floor rental. The building measures 18.7x45 feet and the lot is 85 feet. Size wise it is about 3200 interior square feet with 4 bedrooms and a potential 5th bedroom, 3 baths and a large rear yard.The first floor is the garden level and has a formal dining room and large eat in kitchen with a door to the garden. The kitchen has an enormous island and plenty of room for a large sized table too and also worthy of note, a huge walk in pantry. The dining room is in the front looking out to Vanderbilt Avenue and has a marble mantel fireplace. There is a small but full bath off the kitchen with a shower. The second floor is the parlor floor which has a front and rear parlor. Both have lots of period details with lavish plaster ceiling detail, huge pocket doors and fretting, two marble mantel fireplaces (not working) and face east and west. The third floor has three bedrooms and a hallway bathroom with a classic Waterworks-esque clawfoot bath tub with a chrome exposed shower and rainhead. In true Victorian fashion, the marble topped vanities and sinks are separate from the hallway bath and are in their original location, the hallway behind the bath. If one wanted to redo the bath and enlarge,/reorganize it, there are several closets that back onto the bath, making a redesign pretty accessible. The fourth floor has a large tiled and windowed bath with a shower stall and an east facing bedroom. There is the potential for the 5th bedroom/playroom/office in the sloped ceilinged front room used as an attic. While it has a peaked ceiling as a result of the aforementioned set back, It has a skylight and could easily converted into a bedroom, office or playroom. 309 is located on one of the most ideal blocks, midway between Dekalb Ave and Lafayette. It is close to everything including, shopping, stores, and the areas reknown restaurants. It is also very close to the historic Fort Greene Park and all the weekend activities like the Farmers Market.
Layout Per Floor:
First floor kitchen, powder room/full bath , dining room , yard
Second floor: Double parlor
Third floor: 2 bedrooms and office/bedroom, hallway bath with claw foot tub
Fourth floor: bath with shower, large bedroom & Attic with skylight,
potential 5th bedroom.
Building Info:
Building dimensions 18.7 x 45
Lot dimensions. 18.7 x85
Approx SF 3200
Direction: east/west
Block: between Dekalb and Lafayette
Floors 4 ,(Top floor not visable from street)
Families 2
Garden length 40FT
Taxes $6455
Landmarked yes
Mechanicals: good
Garden;
- Garden
NeighborhoodMore listings:
309 Vanderbilt Avenue is a classic amp ; historic four story Neo Grec style brownstone located in Prime Clinton Hill Fort Greene.
Description309 Vanderbilt Avenue is a classic & historic four story Neo-Grec style brownstone located in Prime Clinton Hill/Fort Greene. From the street it looks like a three story but the top floor is set back so it cannot be seen from the street. Built in the 1877 by the developer Benjamin Linikin, it has the classic exterior details such as a high stoop, enormous double doors, round-arched reveals, and pediments on incised brackets. Owned by this family for over 50 years, everything is in good working order and has been well maintained. There are tons of original architectural details in the interior, Many of the rooms have marble mantles & fireplaces ( nonworking).The interior reads as it was in 1877, all the details remain: parlor pocket doors, wedding cake plaster ceiling detail, all the original entry way doors and interior doors, and stairway bannisters to name a few. Some of the original light fixtures date back to before electricity and were gas. 309 has been used as a single family although it is a two family legally. It would be easy to use as a two family and create a first floor rental. The building measures 18.7x45 feet and the lot is 85 feet. Size wise it is about 3200 interior square feet with 4 bedrooms and a potential 5th bedroom, 3 baths and a large rear yard.The first floor is the garden level and has a formal dining room and large eat in kitchen with a door to the garden. The kitchen has an enormous island and plenty of room for a large sized table too and also worthy of note, a huge walk in pantry. The dining room is in the front looking out to Vanderbilt Avenue and has a marble mantel fireplace. There is a small but full bath off the kitchen with a shower. The second floor is the parlor floor which has a front and rear parlor. Both have lots of period details with lavish plaster ceiling detail, huge pocket doors and fretting, two marble mantel fireplaces (not working) and face east and west. The third floor has three bedrooms and a hallway bathroom with a classic Waterworks-esque clawfoot bath tub with a chrome exposed shower and rainhead. In true Victorian fashion, the marble topped vanities and sinks are separate from the hallway bath and are in their original location, the hallway behind the bath. If one wanted to redo the bath and enlarge,/reorganize it, there are several closets that back onto the bath, making a redesign pretty accessible. The fourth floor has a large tiled and windowed bath with a shower stall and an east facing bedroom. There is the potential for the 5th bedroom/playroom/office in the sloped ceilinged front room used as an attic. While it has a peaked ceiling as a result of the aforementioned set back, It has a skylight and could easily converted into a bedroom, office or playroom. 309 is located on one of the most ideal blocks, midway between Dekalb Ave and Lafayette. It is close to everything including, shopping, stores, and the areas reknown restaurants. It is also very close to the historic Fort Greene Park and all the weekend activities like the Farmers Market.
Layout Per Floor:
First floor kitchen, powder room/full bath , dining room , yard
Second floor: Double parlor
Third floor: 2 bedrooms and office/bedroom, hallway bath with claw foot tub
Fourth floor: bath with shower, large bedroom & Attic with skylight,
potential 5th bedroom.
Building Info:
Building dimensions 18.7 x 45
Lot dimensions. 18.7 x85
Approx SF 3200
Direction: east/west
Block: between Dekalb and Lafayette
Floors 4 ,(Top floor not visable from street)
Families 2
Garden length 40FT
Taxes $6455
Landmarked yes
Mechanicals: goodAmenitiesGarden;- Garden
NeighborhoodMore listings:
309 Vanderbilt Avenue is a classic & historic four story Neo-Grec style brownstone located in Prime Clinton Hill/Fort Greene. From the street it looks like a three story but the top floor is set back so it cannot be seen from the street. Built in the 1877 by the developer Benjamin Linikin, it has the classic exterior details such as a high stoop, enormous double doors, round-arched reveals, and pediments on incised brackets. Owned by this family for over 50 years, everything is in good working order and has been well maintained. There are tons of original architectural details in the interior, Many of the rooms have marble mantles & fireplaces ( nonworking).The interior reads as it was in 1877, all the details remain: parlor pocket doors, wedding cake plaster ceiling detail, all the original entry way doors and interior doors, and stairway bannisters to name a few. Some of the original light fixtures date back to before electricity and were gas. 309 has been used as a single family although it is a two family legally. It would be easy to use as a two family and create a first floor rental. The building measures 18.7x45 feet and the lot is 85 feet. Size wise it is about 3200 interior square feet with 4 bedrooms and a potential 5th bedroom, 3 baths and a large rear yard.The first floor is the garden level and has a formal dining room and large eat in kitchen with a door to the garden. The kitchen has an enormous island and plenty of room for a large sized table too and also worthy of note, a huge walk in pantry. The dining room is in the front looking out to Vanderbilt Avenue and has a marble mantel fireplace. There is a small but full bath off the kitchen with a shower. The second floor is the parlor floor which has a front and rear parlor. Both have lots of period details with lavish plaster ceiling detail, huge pocket doors and fretting, two marble mantel fireplaces (not working) and face east and west. The third floor has three bedrooms and a hallway bathroom with a classic Waterworks-esque clawfoot bath tub with a chrome exposed shower and rainhead. In true Victorian fashion, the marble topped vanities and sinks are separate from the hallway bath and are in their original location, the hallway behind the bath. If one wanted to redo the bath and enlarge,/reorganize it, there are several closets that back onto the bath, making a redesign pretty accessible. The fourth floor has a large tiled and windowed bath with a shower stall and an east facing bedroom. There is the potential for the 5th bedroom/playroom/office in the sloped ceilinged front room used as an attic. While it has a peaked ceiling as a result of the aforementioned set back, It has a skylight and could easily converted into a bedroom, office or playroom. 309 is located on one of the most ideal blocks, midway between Dekalb Ave and Lafayette. It is close to everything including, shopping, stores, and the areas reknown restaurants. It is also very close to the historic Fort Greene Park and all the weekend activities like the Farmers Market.
Layout Per Floor:
First floor kitchen, powder room/full bath , dining room , yard
Second floor: Double parlor
Third floor: 2 bedrooms and office/bedroom, hallway bath with claw foot tub
Fourth floor: bath with shower, large bedroom & Attic with skylight,
potential 5th bedroom.
Building Info:
Building dimensions 18.7 x 45
Lot dimensions. 18.7 x85
Approx SF 3200
Direction: east/west
Block: between Dekalb and Lafayette
Floors 4 ,(Top floor not visable from street)
Families 2
Garden length 40FT
Taxes $6455
Landmarked yes
Mechanicals: good
Garden;
- Garden
NeighborhoodMore listings:

RLS Data display by Nest Seekers LLC.
All information furnished regarding property for sale, rental or financing is from sources deemed reliable, but no warranty or representation is made as to the accuracy thereof and same is submitted subject to errors, omissions, change of price, rental or other conditions, prior sale, lease or financing or withdrawal without notice. International currency conversions where shown are estimates based on recent exchange rates and are not official asking prices.
All dimensions are approximate. For exact dimensions, you must hire your own architect or engineer.