Property
Ownership: | For Sale |
---|---|
Type: | mixed-use |
Bedrooms: | Studio |
Pets: | Pets No |
Lot Size: | 0.19 Acres |
Financials
Listing Courtesy of Elite Realty of USA Inc
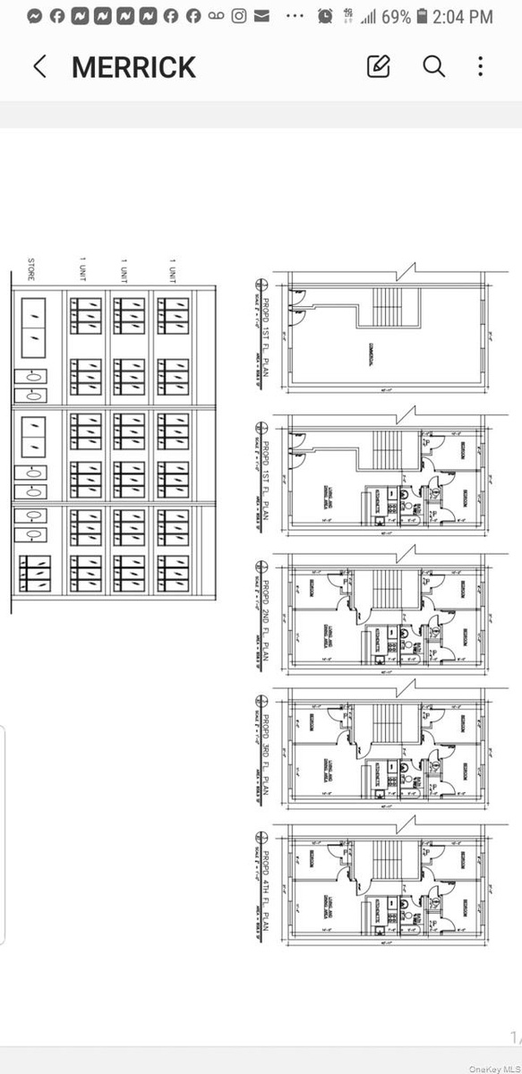
DescriptionGreat Development Opportunity – Residential & Commercial Mixed-Use - This is an excellent opportunity to develop a mixed-use property with significant potential. The site includes a proposed plan for four (4) three-family residential buildings and four (4) commercial spaces, offering a strong return on investment in a high-demand area.
Zoning: R5B / C1-3 - FAR: 2.0 - With approved plans - Property will be delivered vacant at closing. This project is ideal for developers looking to build multifamily residences with street-level commercial units in a well-zoned, growing neighborhood.Amenities- Electricity Available
- Natural Gas Available
Great Development Opportunity – Residential & Commercial Mixed-Use - This is an excellent opportunity to develop a mixed-use property with significant potential. The site includes a proposed plan for four (4) three-family residential buildings and four (4) commercial spaces, offering a strong return on investment in a high-demand area.
Zoning: R5B / C1-3 - FAR: 2.0 - With approved plans - Property will be delivered vacant at closing. This project is ideal for developers looking to build multifamily residences with street-level commercial units in a well-zoned, growing neighborhood.
- Electricity Available
- Natural Gas Available
Great Development Opportunity Residential amp ; Commercial Mixed Use This is an excellent opportunity to develop a mixed use property with significant potential.

DescriptionGreat Development Opportunity – Residential & Commercial Mixed-Use - This is an excellent opportunity to develop a mixed-use property with significant potential. The site includes a proposed plan for four (4) three-family residential buildings and four (4) commercial spaces, offering a strong return on investment in a high-demand area.
Zoning: R5B / C1-3 - FAR: 2.0 - With approved plans - Property will be delivered vacant at closing. This project is ideal for developers looking to build multifamily residences with street-level commercial units in a well-zoned, growing neighborhood.Amenities- Electricity Available
- Natural Gas Available
Great Development Opportunity – Residential & Commercial Mixed-Use - This is an excellent opportunity to develop a mixed-use property with significant potential. The site includes a proposed plan for four (4) three-family residential buildings and four (4) commercial spaces, offering a strong return on investment in a high-demand area.
Zoning: R5B / C1-3 - FAR: 2.0 - With approved plans - Property will be delivered vacant at closing. This project is ideal for developers looking to build multifamily residences with street-level commercial units in a well-zoned, growing neighborhood.
- Electricity Available
- Natural Gas Available

All information furnished regarding property for sale, rental or financing is from sources deemed reliable, but no warranty or representation is made as to the accuracy thereof and same is submitted subject to errors, omissions, change of price, rental or other conditions, prior sale, lease or financing or withdrawal without notice. International currency conversions where shown are estimates based on recent exchange rates and are not official asking prices.
All dimensions are approximate. For exact dimensions, you must hire your own architect or engineer.